4-længet nedlagt landbrug i flot natur
Super flot og veldisponeret hyggeligt 4-længet nedlagt landbrug beliggende mellem Solbjerg og Bjergby på en 8.679 m2 stor grund med kort afstand til friskole i Bjergby inden for 2 km og skole/indkøb og sport  i Ø. Jølby inden for 4 - 5 km.
 
Her er masser af ro og mange gode spots på grunden med udsigt til skøn natur. 
 
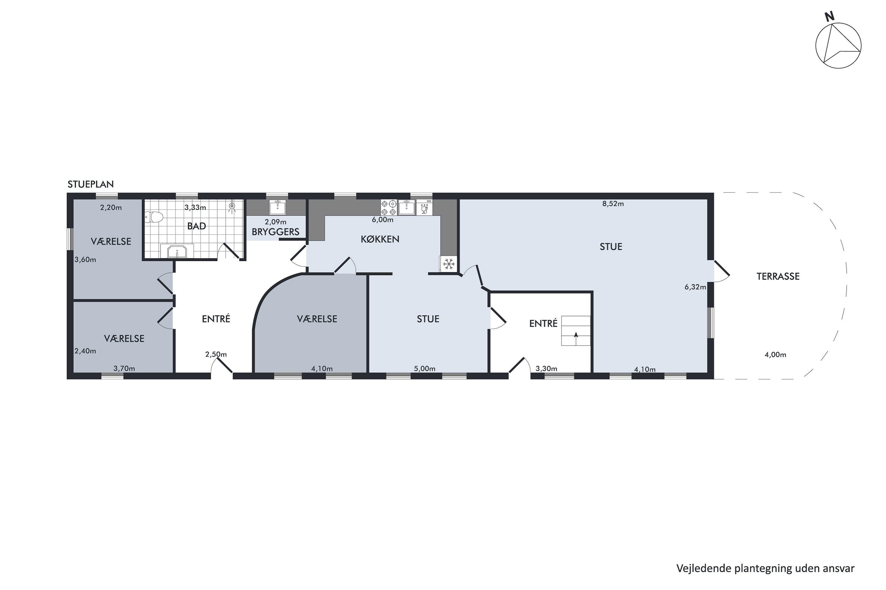
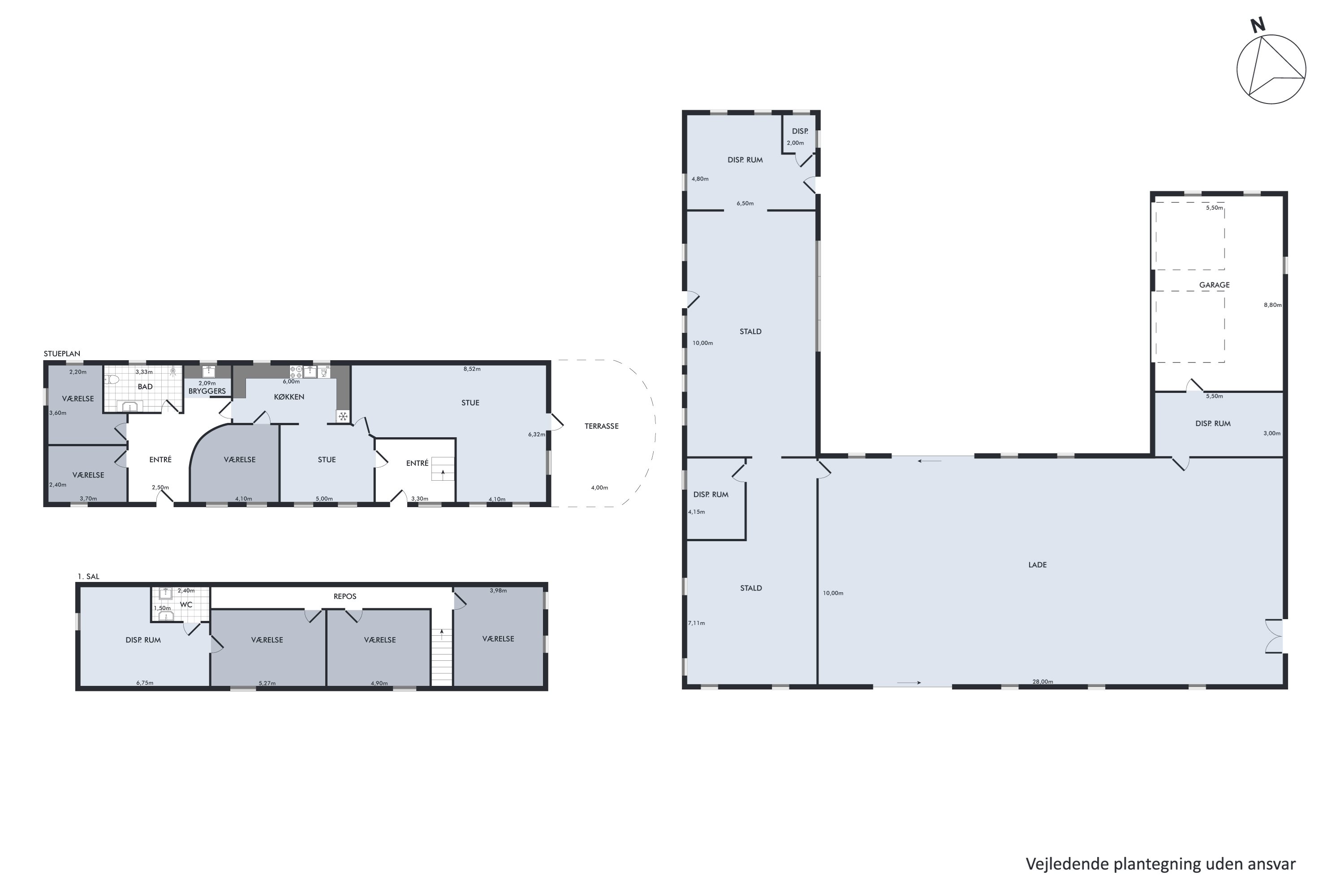
Stuehuset er Entre med trappe, Bryggers/grovkøkken med gulvvarme, moderniseret badeværelse med bruseniche og gulvvarme, 2 værelser, flot renoveret køkken med låger og bordplade og gulvvarme, soveværelse, alrum/stue med gulvvarme og bue til køkken, indrettet vinkelstue med gulvvvarme og udgang til sydøstvendt terrasse og flot udsigt over landskabet.
 
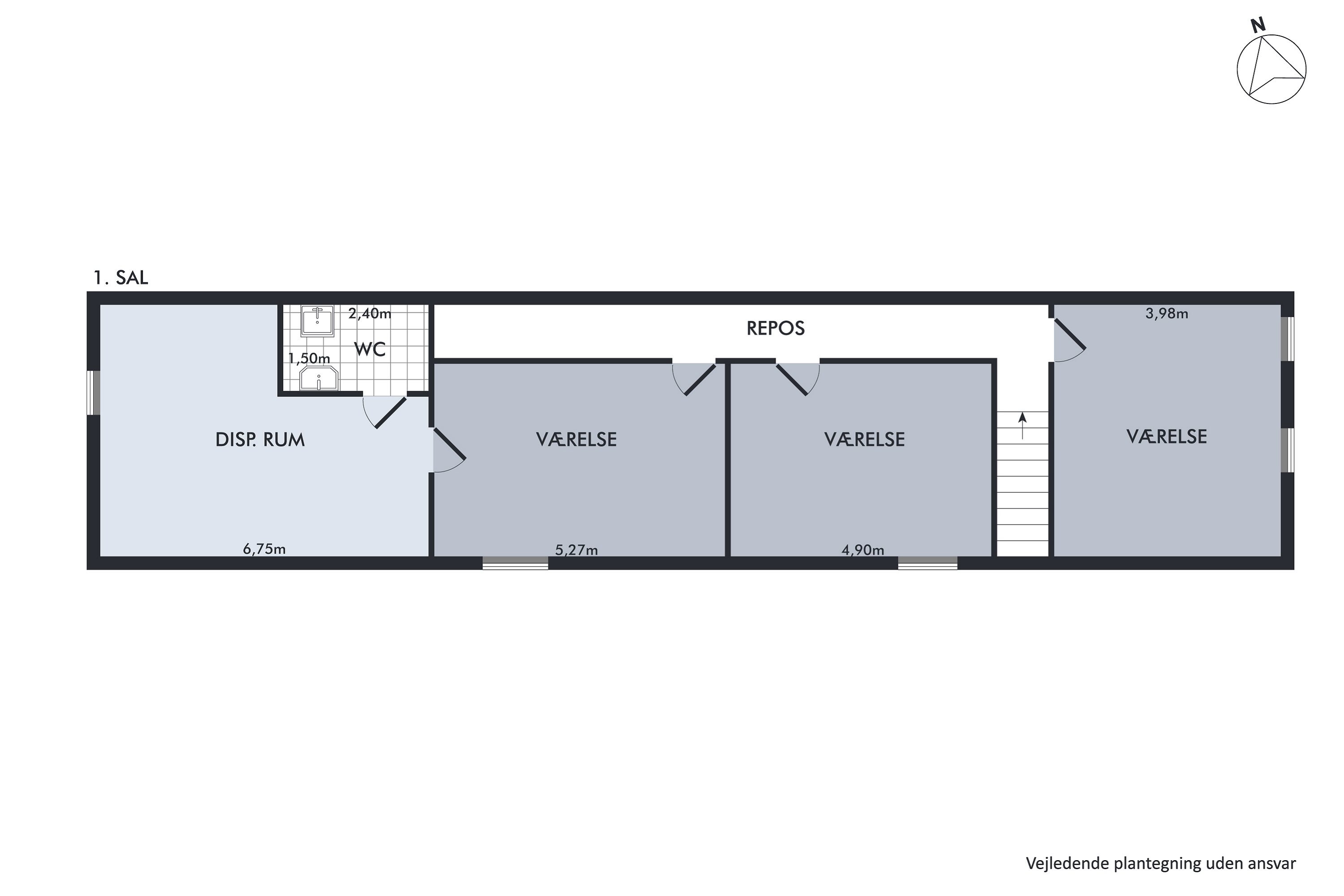
På 1. sal er der 3 værelser og et toilet samt yderligere et værelse der ikke er godkendt.
 
De 3 længer er indrettet med dobbelt garage og værksted, ladebygning og ældre staldbygning med fyrum, hvor pillefyret stå.
 
Velanlagt have med fleregode kroge og sti mellem træerne hvor haven og udsigten kan nydes.
 
Et rigtig super sted til en børnefamilie, der gerne vil have god plads til alle i familien kan have en hobby og evt. lidt hobbydyr.
 
Kom og kig og du vil hurtig blive forelsket!
Økonomien i boligen
Skal Nykredit Bank ringe for en snak om din boligøkonomi?
Fortæl os, hvornår det passer dig, så ringer en rådgiver fra Nykredit Bank dig op til en uforpligtende snak om dine lånemuligheder. Så er du et skridt tættere på din nye bolig.
Vi bruger dine oplysninger til at forberede samtalen. Læs mere i Nykredit Banks privatlivspolitik
Kontakt
 
                Kontakt
Christian Nielsen
Skal du også sælge?
Kontakt os og få en salgsvurdering, så ved du hvad din bolig er værd.
- Få et hurtigt estimat af salgspris eller en grundig vurdering.
- Få et indblik i, hvad din ejendom er værd på markedet lige nu.
- Find ud af, hvor meget du selv kan købe for, hvis du ønsker at skifte bolig.
Hvor langt er der til nærmeste?
Se hvor lang tid der er mellem denne bolig og en anden adresse
Fakta om Morsø Kommune
INDBYGGERE
GRUNDSKYLD
KOMMUNESKAT
SKOLER
BØRNEPASNING
Opret dig i køberkartoteket og få besked om lignende boliger.
Få direkte besked, når der kommer relevante nye boliger til salg, der matcher dine ønsker. Du ser også de boliger, vi får til salg, som vi ikke viser på Nybolig.dk.
Tilpas filtre og opret