Jagt - og naturejendom med 27 ha.
Denne ejendom, beliggende i naturskønne omgivelser, byder på ro og fred med en smuk udsigt over landskabet. Ejendommen er ideel for dem, der ønsker at bo i et roligt miljø, tæt på naturen. Stuehuset er rummeligt med masser af kvadratmeter og mange muligheder for forskellige indretninger og anvendelser.
Ejendommen fremstår pæn og velholdt, hvilket gør den indflytningsklar og attraktiv for en bred vifte af købere. Til ejendommen hører også gode udhusbygninger, som kan bruges til opbevaring, værksted eller hobbyaktiviteter. Den charmerende stenbygning og de velplejede grønne arealer skaber en idyllisk atmosfære, perfekt til udendørs aktiviteter og afslapning.
Beliggenheden tæt på et landsbysamfund giver mulighed for at blive en del af et lokalt fællesskab, mens Aalestrup by, med dens indkøbsmuligheder, skoler og andre faciliteter, ligger inden for kort afstand (ca. 15 min. i bil), hvilket gør dagligdagen nem og bekvem.
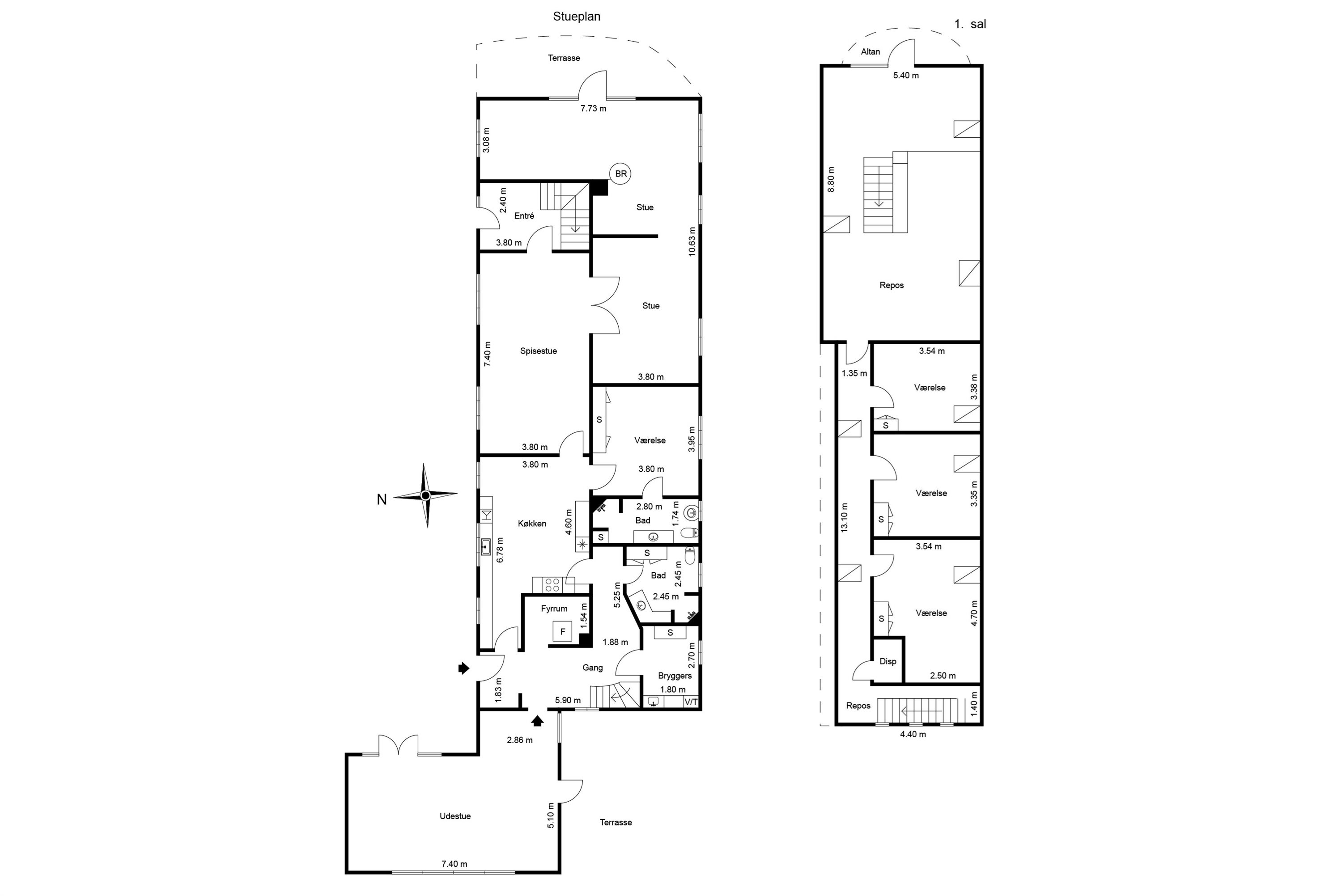
Velindrettet stuehus indrettet med fordelingsgang til fyrrum, flot badeværelse med bruseniche og bryggers. Funktionelt køkken med alt til hverdagens fornødenheder, masser af skabs- og bordplads samt spiseplads. Stor, hyggelig spisestue, master bedroom med direkte adgang til eget badeværelse med både bruseniche og hjørne badekar. Entré med trappe til 1. salen, stor, hyggelig vinkelstue med masser af plads til hele familien og vennerne, her er der udgang til dejlig terrasse. 1. salen er indrettet med repos/fordelingsgang til tre fine værelser, i forlængelse af gangen er der en flot repos/stue med udgang til fin altan, fra stuen er en trappe ned i stueplan.
Der er også terrasser og en udestue, som forlænger boligens anvendelsesmuligheder til udendørs ophold.
Udhusbygningerne er praktisk placeret og giver yderligere anvendelsesmuligheder.
Samlet set er dette en ejendom, der tilbyder en perfekt balance mellem landlig idyl og moderne bekvemmeligheder.
Lyder dette som jeres fremtidige hjem? Så kontakt os for en fremvisning.
Økonomien i boligen
Skal Nykredit Bank ringe for en snak om din boligøkonomi?
Fortæl os, hvornår det passer dig, så ringer en rådgiver fra Nykredit Bank dig op til en uforpligtende snak om dine lånemuligheder. Så er du et skridt tættere på din nye bolig.
Vi bruger dine oplysninger til at forberede samtalen. Læs mere i Nykredit Banks privatlivspolitik
Kontakt

Kontakt
Tina Sondrup
Skal du også sælge?
Kontakt os og få en gratis salgsvurdering, så ved du hvad din bolig er værd.
- Få et hurtigt estimat af salgspris eller en grundig vurdering.
- Få et indblik i, hvad din ejendom er værd på markedet lige nu.
- Find ud af, hvor meget du selv kan købe for, hvis du ønsker at skifte bolig.
Hvor langt er der til nærmeste?
Se hvor lang tid der er mellem denne bolig og en anden adresse
Fakta om Vesthimmerland Kommune
INDBYGGERE
GRUNDSKYLD
KOMMUNESKAT
SKOLER
BØRNEPASNING
Opret dig i køberkartoteket og få besked om lignende boliger.
Få direkte besked, når der kommer relevante nye boliger til salg, der matcher dine ønsker. Du ser også de boliger, vi får til salg, som vi ikke viser på Nybolig.dk.
Tilpas filtre og opret