Nydelig bolig med stort værksted lidt udenfor Sindal
Omgivet af natur og smukke landskaber lidt uden for Sindal ligger denne fine ejendom, der kombinerer bolig og erhverv på en rummelig grund. Huset byder på 190 m2, fordelt over halvandet plan, og der er gulvvarme i hele stueetagen. Udenfor får I glæde af en stor grund på hele 1,4 hektar.
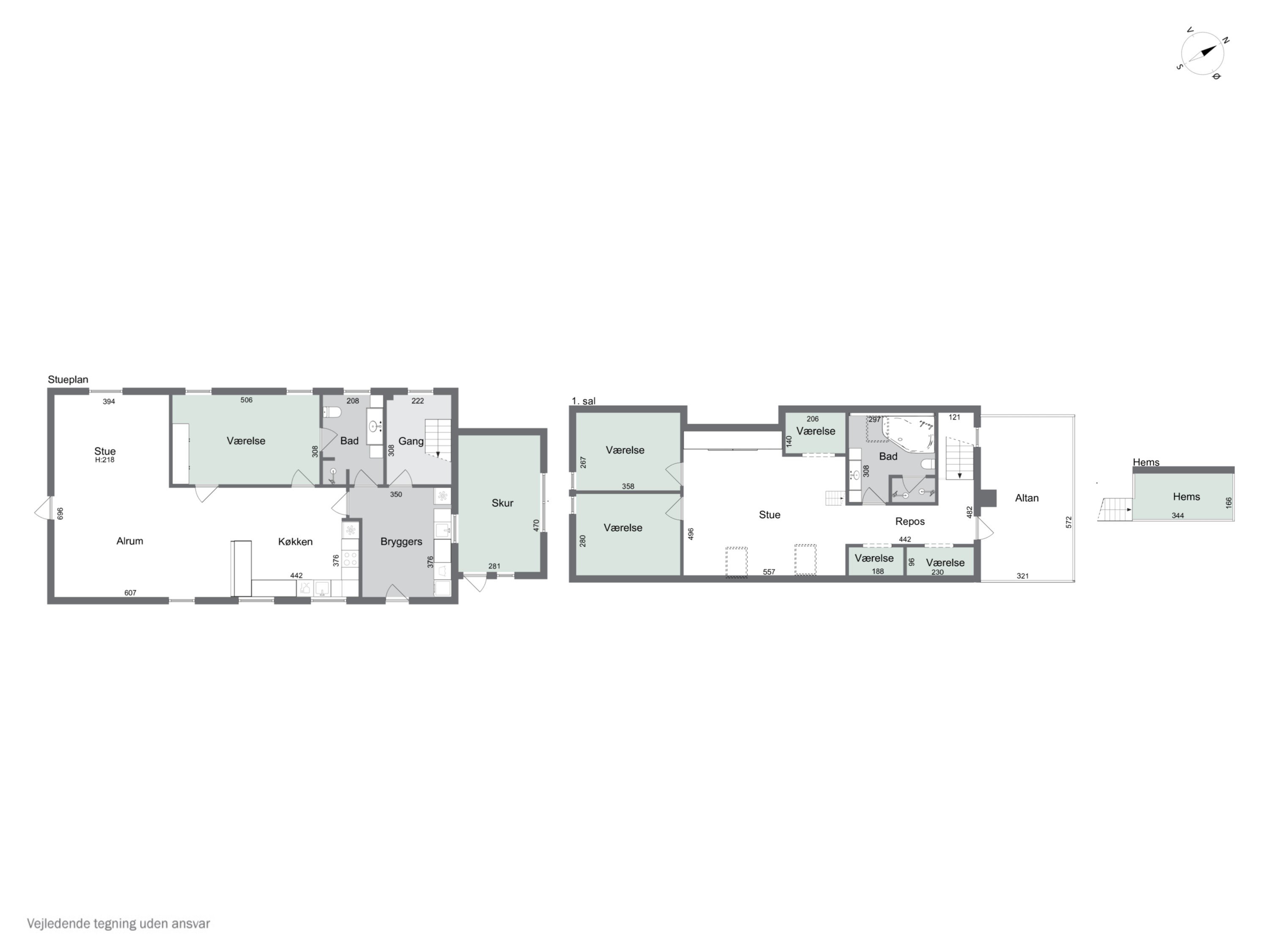
Boligens stueplan råder over en funktionel planløsning med fokus på dagligdagens behov. Her findes et åbent opholdsrum med køkken-alrum og stue i én herlig forening, hvor flere vinduespartier sørger for et naturligt lysindfald. Køkkenet fremstår flot og funktionelt med gode skabsløsninger og de nødvendige hvidevarer, så I har ideelle rammer, når maden skal tilberedes. Nær køkkenet indrettes spisepladsen, mens stuen kan arrangeres med de bløde møbler. Stueetagen har desuden et praktisk bryggers, et brusebadeværelse samt et rummeligt værelse med faste skabe.
Fra stueplan leder trappen op til førstesalen, hvor I får endnu en stue. Her er loftet ført til kip, og de synlige, mørke bjælker skaber masser af karakter og atmosfære. Fra stuen er der opgang til en hyggelig hems, og etagen indeholder desuden fire værelser samt et badeværelse med spabad.
Fra stuen på førstesalen er der udgang til en skøn altan, hvorfra I kan nyde udsigten til de naturrige omgivelser og det omkringliggende landskab. Grunden er trods sin størrelse anlagt i en vedligeholdelsesnem stil og byder desuden på en garage. Derudover bør I bemærke det isolerede værksted på hele 544 m2, som foruden værkstedet også indeholder et ekstra rum, et fyrrum og et toilet – perfekt til mindre erhvervsdrift.
Ejendommen ligger i rolige omgivelser med god plads omkring sig. Fra adressen er der ikke langt til de daglige fornødenheder, og inden for en radius af blot tre kilometer finder I både indkøbsmuligheder, Sindal Station, skole og daginstitution.
Økonomien i boligen
Skal Nykredit Bank ringe for en snak om din boligøkonomi?
Fortæl os, hvornår det passer dig, så ringer en rådgiver fra Nykredit Bank dig op til en uforpligtende snak om dine lånemuligheder. Så er du et skridt tættere på din nye bolig.
Vi bruger dine oplysninger til at forberede samtalen. Læs mere i Nykredit Banks privatlivspolitik
Kontakt

Kontakt
Bo Falk
Skal du også sælge?
Kontakt os og få en salgsvurdering, så ved du hvad din bolig er værd.
- Få et hurtigt estimat af salgspris eller en grundig vurdering.
- Få et indblik i, hvad din ejendom er værd på markedet lige nu.
- Find ud af, hvor meget du selv kan købe for, hvis du ønsker at skifte bolig.
Hvor langt er der til nærmeste?
Se hvor lang tid der er mellem denne bolig og en anden adresse
Fakta om Hjørring Kommune
INDBYGGERE
GRUNDSKYLD
KOMMUNESKAT
SKOLER
BØRNEPASNING
Opret dig i køberkartoteket og få besked om lignende boliger.
Få direkte besked, når der kommer relevante nye boliger til salg, der matcher dine ønsker. Du ser også de boliger, vi får til salg, som vi ikke viser på Nybolig.dk.
Tilpas filtre og opret