- Parkering
Moderne rækkehus med plads til familien
Her har vi fornøjelsen af at tilbyde dette store 2-plans rækkehus i gode materialer.
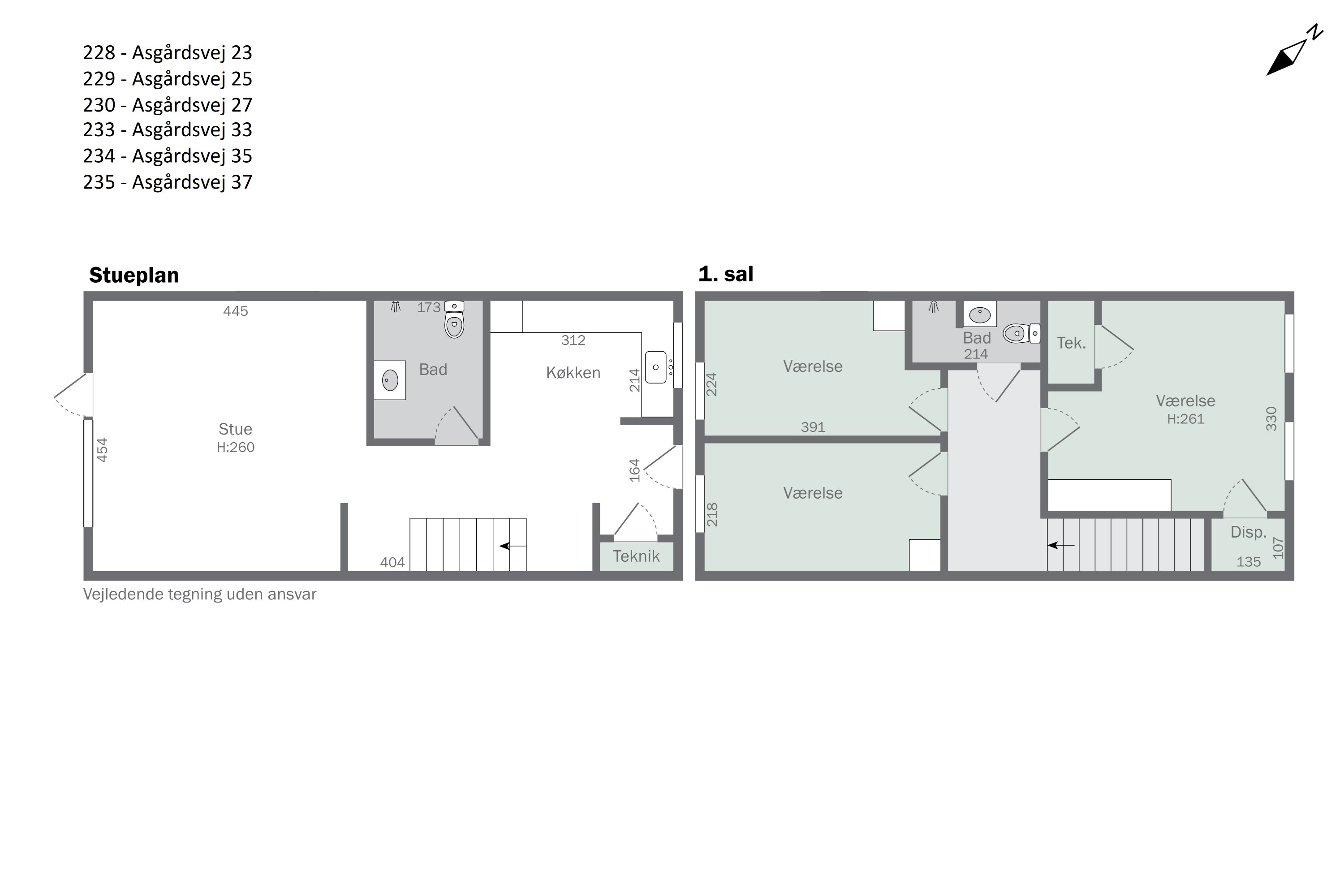
Boligen byder på mange gode kvadratmeter, som fordeler sig over entré, separat køkken med alt i hårde hvidevarer og elementer fra Designa. Fra fordelingsgangen finder du adgang til boligens fuldt udnyttede førstesal, som byder på hele 3 store soveværelser. Til værelserne følger indbyggede skabe og mulighed for etablering af Walk-in-Closet. På 1. salen finder du ligeledes boligens andet badeværelse. Tilbage i stueplan møder du boligens største badeværelse med vaskesøjle. For enden af fordelingsgangen finder du boligens store stue med direkte adgang til den store sydvendte terrasse.
Boligen kommer med gulvvarme i alle rum og temperaturen kan indstilles fra rum til rum.
Til boligen kommer ligeledes indbyggede skabe, alt i hårde hvidevare og nummeret privat p-plads, forberedt til ladestander.
Thors Have er Odense V’s nye naturrige boligprojekt, hvor du finder moderne boliger i gode materialer med direkte adgang til det store naturområde Højstrup Øvelsesterræn. Fra projektet har du kort afstand til supermarked, samt letbane med få stop til Tarup Center eller Odense Centrum. Går du tur i området vil du finde adgang til hele Odenses Sportsbydel, hvor professionel idræt kan nydes indenfor både fodbold, håndbold, svømning, cykling og atletik.
Projektsalg
Thors Have
Omkranset af skov og skøn natur finder du Odenses nye bykvarter, Thors Have. Hyggelige gårdmiljøer, grønne rekreative områder, som indbyder til gå-, løbe- eller cykelture med skønne naturoplevelser og en central placering. En kort gåtur fra dagvarebutikker, et stort udvalg af handlemuligheder i Tarup Centeret og blot få minutters gang til Letbanen. Alt dette bliver en del af hverdagen, når du bor i Thors Have.
Mere om Thors HaveKontakt

Kontakt
Rasmus Flindt
Skal du også sælge?
Kontakt os og få en gratis salgsvurdering, så ved du hvad din bolig er værd.
- Få et hurtigt estimat af salgspris eller en grundig vurdering.
- Få et indblik i, hvad din ejendom er værd på markedet lige nu.
- Find ud af, hvor meget du selv kan købe for, hvis du ønsker at skifte bolig.
Økonomien i boligen
Skal Nykredit Bank ringe for en snak om din boligøkonomi?
Fortæl os, hvornår det passer dig, så ringer en rådgiver fra Nykredit Bank dig op til en uforpligtende snak om dine lånemuligheder. Så er du et skridt tættere på din nye bolig.
Vi bruger dine oplysninger til at forberede samtalen. Læs mere i Nykredit Banks privatlivspolitik
Hvor langt er der til nærmeste?
Se hvor lang tid der er mellem denne bolig og en anden adresse
Fakta om Odense Kommune
INDBYGGERE
GRUNDSKYLD
KOMMUNESKAT
SKOLER
BØRNEPASNING
Opret dig i køberkartoteket og få besked om lignende boliger.
Få direkte besked, når der kommer relevante nye boliger til salg, der matcher dine ønsker. Du ser også de boliger, vi får til salg, som vi ikke viser på Nybolig.dk.
Tilpas filtre og opret