Indflytningsklart og lyst rækkehus med to soveværelser i Odense N
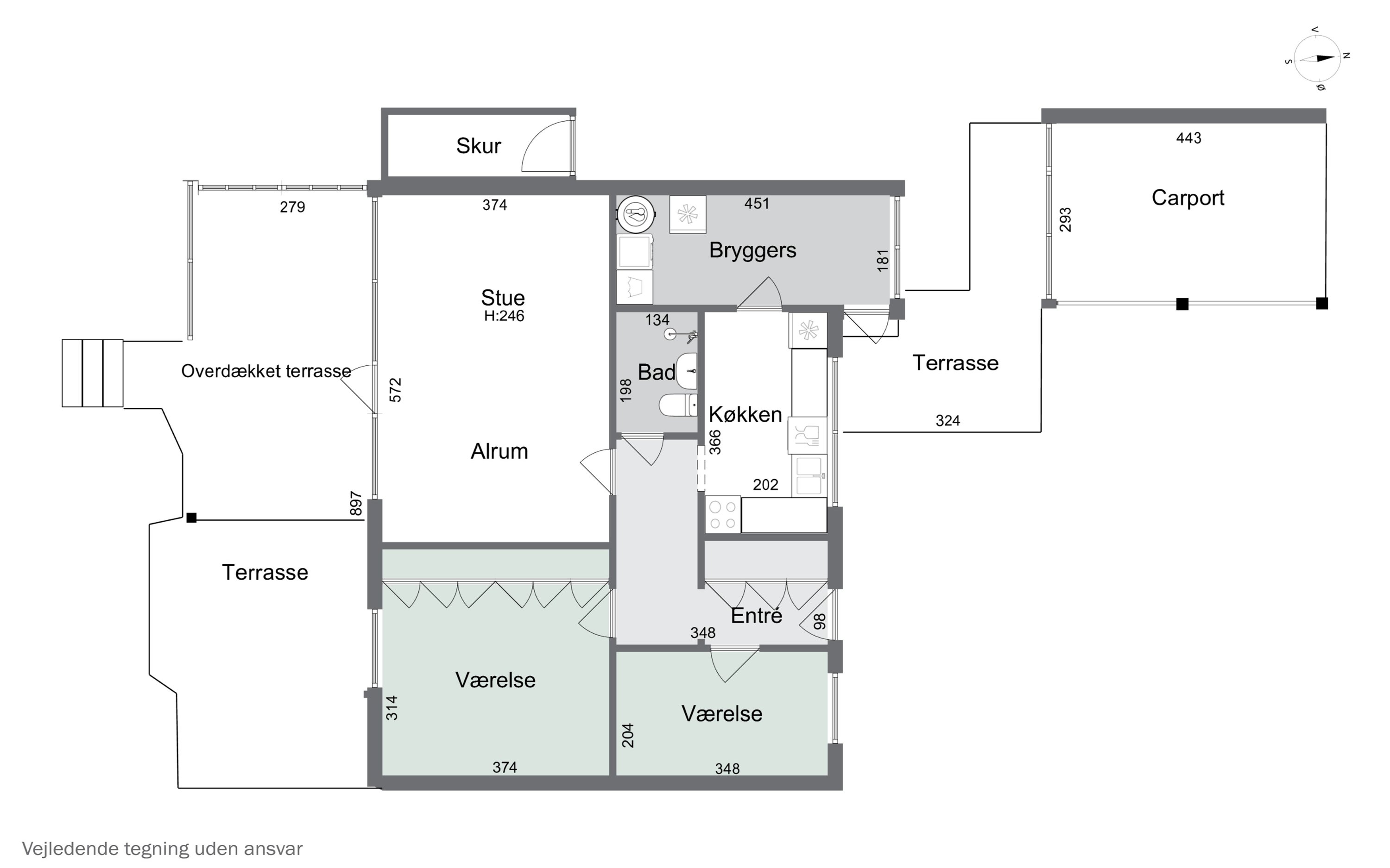
Velkommen til Ingrid Marie Vænget 21 – et skønt og velindrettet enderækkehus på 80 kvm beliggende i det attraktive og familievenlige Søhus i Odense N.
Her får du en indbydende bolig med en funktionel planløsning, egen have og carport – alt sammen i et roligt kvarter tæt på både natur og hverdagens bekvemmeligheder.
Boligen byder velkommen i en entré med god plads til overtøj og sko.
Herfra er der adgang til det lyse køkken, som ligger centralt i hjemmet og har en praktisk sammenhæng med husets øvrige rum.
I forlængelse heraf finder du et rummeligt bryggers med vaskefaciliteter og ekstra opbevaringsplads.
Det store opholdsrum fungerer som stue og alrum med plads til både spisebord og sofahjørne.
Her strømmer lyset ind, og fra stuen er der direkte udgang til en dejlig, overdækket terrasse – perfekt til sommeraftener og hyggelige stunder i læ.
Den tilhørende have er overskuelig, nem at holde og samtidig privat og hyggelig.
Boligen rummer to gode værelser med mange indretningsmuligheder – ideelt til børnefamilien eller den der ønsker et ekstra værelse til gæster eller hjemmekontor.
Badeværelset er lyst og funktionelt.
I den fine forhave er en carport til parkering af bil.
Som enderækkehus får boligen god plads, lys og en åben atmosfære.
Søhus er et fredeligt område med gode stisystemer, grønne områder og kort afstand til skole, daginstitutioner og indkøb.
Lyder dette interessant? Giv os et kald allerede i dag for en fremvisning!
Økonomien i boligen
Skal Nykredit Bank ringe for en snak om din boligøkonomi?
Fortæl os, hvornår det passer dig, så ringer en rådgiver fra Nykredit Bank dig op til en uforpligtende snak om dine lånemuligheder. Så er du et skridt tættere på din nye bolig.
Vi bruger dine oplysninger til at forberede samtalen. Læs mere i Nykredit Banks privatlivspolitik
Kontakt

Kontakt
Abdallah W. Alhashimi
Skal du også sælge?
Kontakt os og få en gratis salgsvurdering, så ved du hvad din bolig er værd.
- Få et hurtigt estimat af salgspris eller en grundig vurdering.
- Få et indblik i, hvad din ejendom er værd på markedet lige nu.
- Find ud af, hvor meget du selv kan købe for, hvis du ønsker at skifte bolig.
Hvor langt er der til nærmeste?
Se hvor lang tid der er mellem denne bolig og en anden adresse
Fakta om Odense Kommune
INDBYGGERE
GRUNDSKYLD
KOMMUNESKAT
SKOLER
BØRNEPASNING
Opret dig i køberkartoteket og få besked om lignende boliger.
Få direkte besked, når der kommer relevante nye boliger til salg, der matcher dine ønsker. Du ser også de boliger, vi får til salg, som vi ikke viser på Nybolig.dk.
Tilpas filtre og opret