Beliggende i Svendborgs østlige bydel, på adressen Kobberbæksvej 75A, finder vi dette rækkehus, der med en størrelse på 57 m² fordelt på entré/vindfang, to værelser, køkken/alrum og badeværelse. Attraktiv mulighed for den der ønsker, at bosætte sig i et bynært område. Området er populært og eftertragtet, med rolig atmosfære, og let adgang til byens faciliteter.
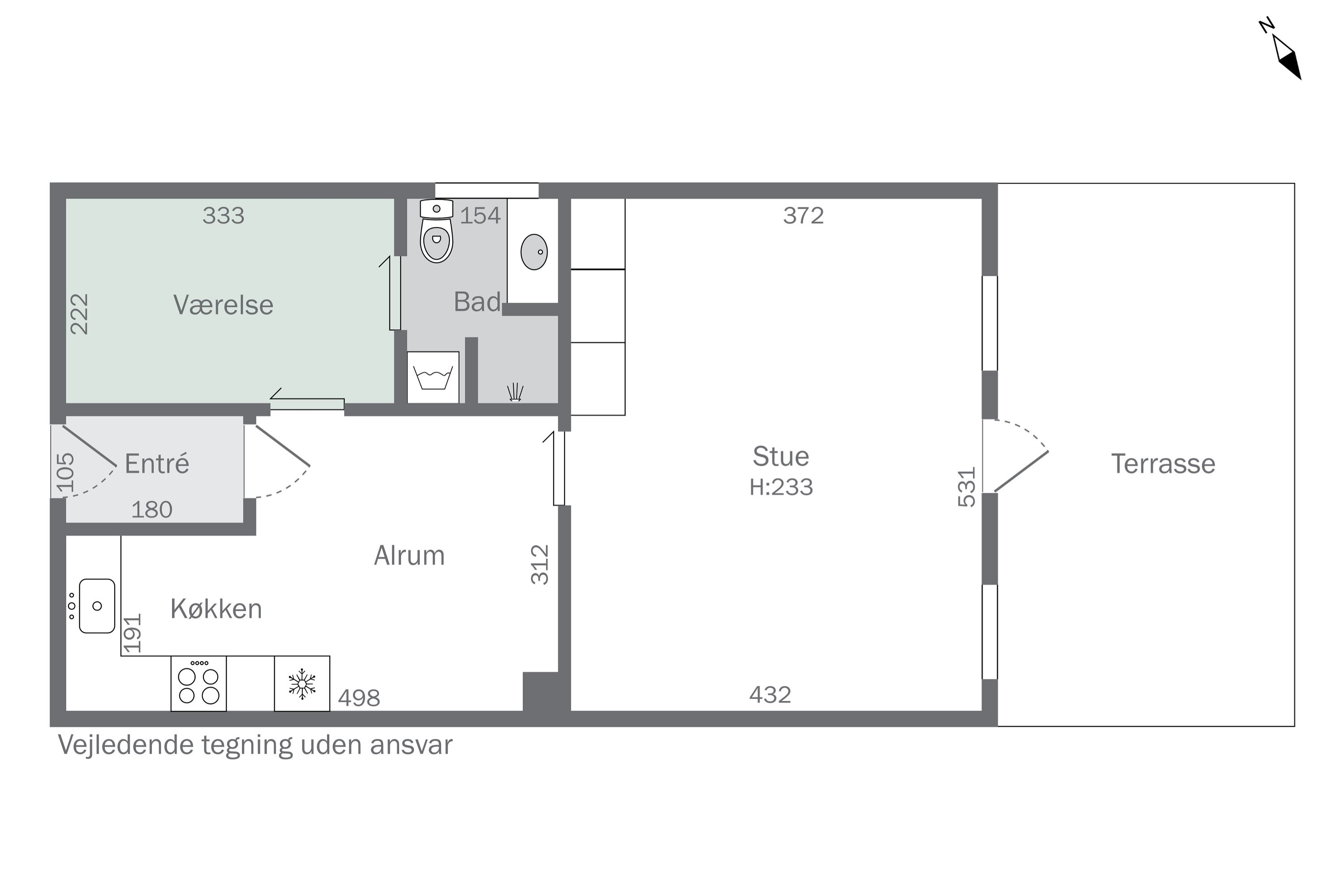
Rækkehuset fremstår velholdt og er nem at indrette sig i. Rumfordelingen er klassisk og funktionel, hvilket vil sige, at de pladsmæssige forhold kan imødekomme de flestes basisbehov. Der er skydedøre mellem køkken/alrum, værelse, toilet/bad og stue, hvilket er en rigtig god løsning.
Stuen som har udgang til terrasse og have, udgør ejendommens naturlige samlingspunkt, med plads til sofaarrangement, og har indbygningsskabe til opbevaring.
Værelset kan eksempelvis bruges som soveværelse og/eller hjemmekontor, afhængigt af de personlige behov.
Køkken/alrummet er praktisk indrettet, med rummeligt layout som giver fin plads til madlavning, og har et hyggeligt spiseområde. Her kan man nyde måltider i et lyst og indbydende miljø, hvor der er god plads til både madlavning og hyggelige sammenkomster. Køkken/alrummet har nedtagelig trappestige til loftrum for opbevaring.
Badeværelset er funktionelt og lever op til dagligdagens forventninger med brusebad, toilet og vaskemaskine.
Udenfor inviterer den lukkede have til privatliv og afslapning, og her er der mulighed for at nyde solrige dage på det flotte flisebelagte terrasseområde. Terrassen udgør en forlængelse af boligens rum, og er det ideelle sted til udendørs spisning, afslapning eller sociale sammenkomster. Haven kræver ikke den store vedligeholdelse og er ideel for dem, der sætter pris på udendørsliv uden, at være bebyrdet med omfattende havearbejde.
Yderligere tilføjer den egen carport med redskabsrum, en væsentlig funktionel værdi til ejendommen. Her kan den næste ejer nyde godt af en tør og beskyttet plads til bilen, samtidig med at det tilføjer et ekstra lag af komfort og bekvemmelighed til hverdagen.
Under 75 D er der fælles kælderrum med varmeinstallation for opbevaring, som udgør ca. 50 m².
Husdyr tilladt.
Økonomien i boligen
Skal Nykredit Bank ringe for en snak om din boligøkonomi?
Fortæl os, hvornår det passer dig, så ringer en rådgiver fra Nykredit Bank dig op til en uforpligtende snak om dine lånemuligheder. Så er du et skridt tættere på din nye bolig.
Vi bruger dine oplysninger til at forberede samtalen. Læs mere i Nykredit Banks privatlivspolitik
Kontakt

Kontakt
Thomas M. Thomsen
Skal du også sælge?
Kontakt os og få en gratis salgsvurdering, så ved du hvad din bolig er værd.
- Få et hurtigt estimat af salgspris eller en grundig vurdering.
- Få et indblik i, hvad din ejendom er værd på markedet lige nu.
- Find ud af, hvor meget du selv kan købe for, hvis du ønsker at skifte bolig.
Hvor langt er der til nærmeste?
Se hvor lang tid der er mellem denne bolig og en anden adresse
Fakta om Svendborg Kommune
INDBYGGERE
GRUNDSKYLD
KOMMUNESKAT
SKOLER
BØRNEPASNING
Opret dig i køberkartoteket og få besked om lignende boliger.
Få direkte besked, når der kommer relevante nye boliger til salg, der matcher dine ønsker. Du ser også de boliger, vi får til salg, som vi ikke viser på Nybolig.dk.
Tilpas filtre og opret