Se muligheder og færdiggør projektet...
Vi skriver 2023 - dette er nemlig året, hvor dette hus fik den helt store renovering fra stueetage til 1.sal - men inden det stod færdigt, gik projektet i stå og står nu delvist 'usamlet'.
Du behøver ikke nødvendigvis være håndværker for at kunne løse denne opgave - men det hjælper at have tid, lyst og lidt fingersnilde med værktøj.
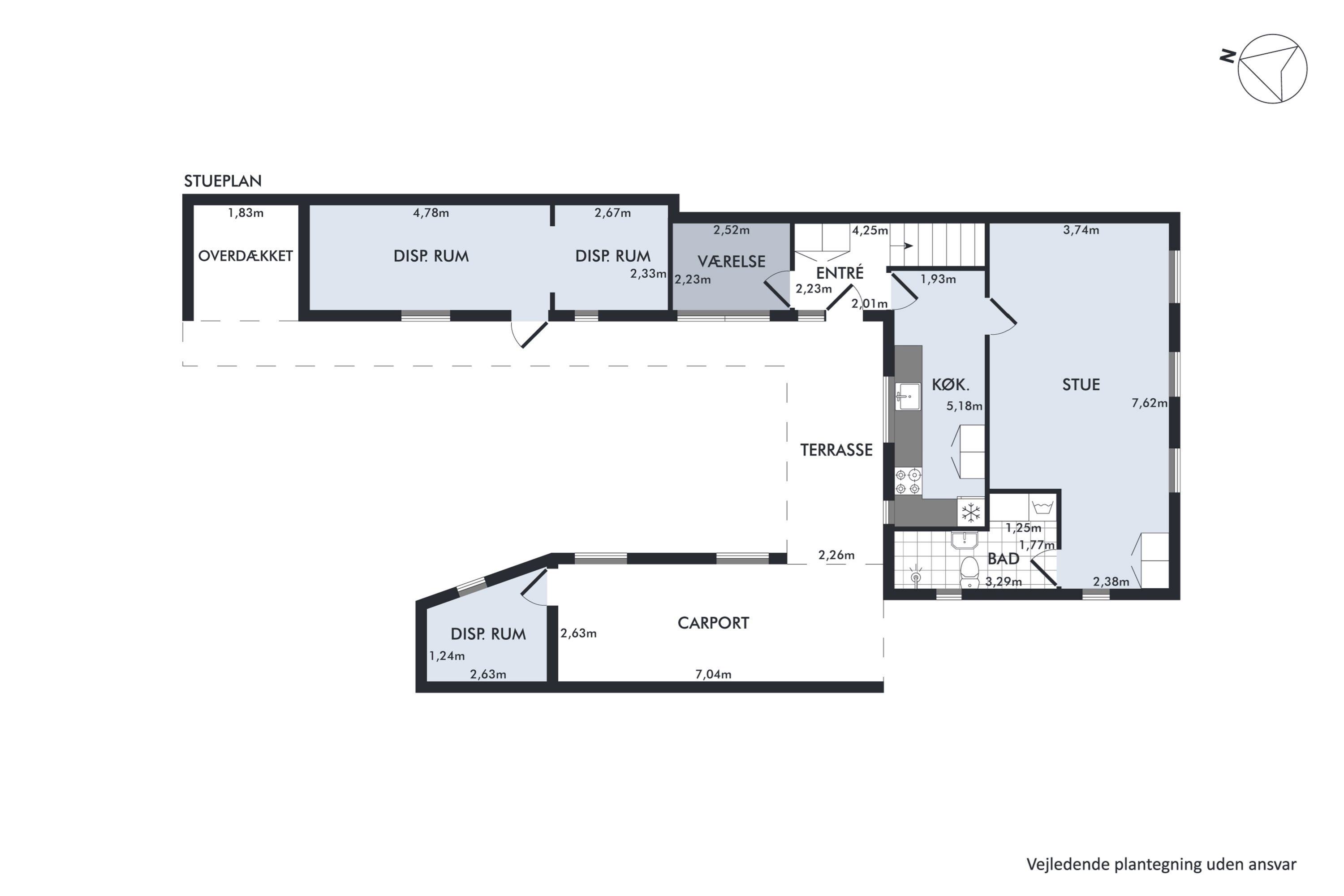
Boligarealet udgør 89 m2 fordelt på 2 plan og bagved er en potentiale til en dejlig ugeneret gårdhave, som du vil elske om sommeren.
Huset er stort set totalrenoveret efter en forsikringsskade. Listen tæller bl.a. nyt tag, nye PVC vinduer - nyt køkken, ny badeværelse, nye gulve, lofter m.m.. Der er i køkken, stue og på badeværelset klargjort til gulvvarme.
På 1 sal er indrettet 2 værelser og der er endnu et værelse i stueplan.Pga. den igangværende renovering står huset uden tilsluttet varmeanlæg. Naturgasanlæg fra 1998 er installeret i huset.
Grunden er kun 285 m2, så der er ikke en masse at holde. Her kan du skabe dit eget 'uderum' med grillområde, loungemøbler, solterrasse, græsplæne m.m.
Indgang i huset er fra bagsiden af huset via smøgen og carporten. Det er en forholdsvis smal passage og egner bedst til en ikke for stor bil.
Foruden carport med et disp. rum får du også udhus med 2 disp. rum (værksted / opbevaring) samt en mindre overdækning.
Bagerst i haven er opført 'drivhus' (ikke reg. i BBR og i dårlig stand.
Kort afstand til centrum, indkøb, skole, sport, uddannelse, busstop og meget andet.
Kunne være et godt bud på et udlejningshus, hvis du går i de tanker.
Udbudsprisen er selvfølgelig afspejlet af, hvordan huset står i dag men har du tiden og kan se dig selv, som den, der binde de løse ender sammen, så tror vi også, at resultatet bliver godt.
Økonomien i boligen
Skal Nykredit Bank ringe for en snak om din boligøkonomi?
Fortæl os, hvornår det passer dig, så ringer en rådgiver fra Nykredit Bank dig op til en uforpligtende snak om dine lånemuligheder. Så er du et skridt tættere på din nye bolig.
Vi bruger dine oplysninger til at forberede samtalen. Læs mere i Nykredit Banks privatlivspolitik
Kontakt

Kontakt
Ole Gørtler Laustsen
Skal du også sælge?
Kontakt os og få en gratis salgsvurdering, så ved du hvad din bolig er værd.
- Få et hurtigt estimat af salgspris eller en grundig vurdering.
- Få et indblik i, hvad din ejendom er værd på markedet lige nu.
- Find ud af, hvor meget du selv kan købe for, hvis du ønsker at skifte bolig.
Hvor langt er der til nærmeste?
Se hvor lang tid der er mellem denne bolig og en anden adresse
Fakta om Morsø Kommune
INDBYGGERE
GRUNDSKYLD
KOMMUNESKAT
SKOLER
BØRNEPASNING
Opret dig i køberkartoteket og få besked om lignende boliger.
Få direkte besked, når der kommer relevante nye boliger til salg, der matcher dine ønsker. Du ser også de boliger, vi får til salg, som vi ikke viser på Nybolig.dk.
Tilpas filtre og opret