Beliggenhed, beliggenhed, beliggenhed
Grib drømmen og flyt ind i en stor, fleksibel familievilla, der løbende er moderniseret og fremstår særdeles velholdt i eksklusive materialer. Her får I masser af kvadratmeter at udfolde jer på – både som familie og individuelt – hvilket giver en enestående frihed i forhold til indretning og anvendelse.
Beliggenheden er helt fantastisk og uforstyrret for enden af en blind stikvej til Borgager, direkte op til fredet skov og med kort afstand til både skoler, daginstitutioner, indkøb. Ligeledes ligger Albertslund Stadion, golf-, tennis- og padelklub samt den populære badesø tæt på – alt sammen forbundet af sikre stisystemer.
Huset er løbende opdateret med bl.a. nyt køkken, bad og toiletter fra 2022, nye gulve, vinduer, døre, tag og facader. Alt sammen med en flot, rød tråd i udtrykket.
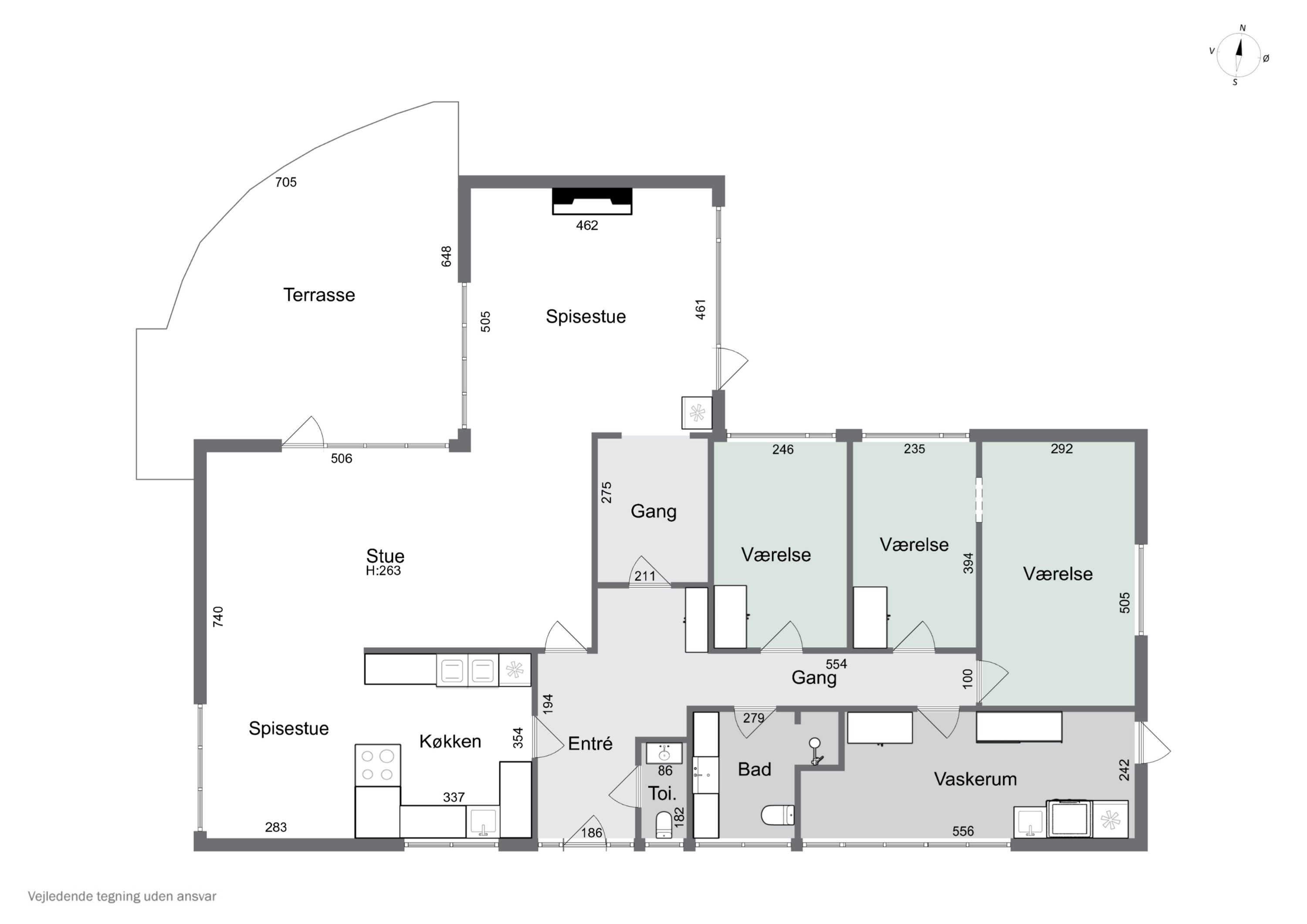
Fra den rummelige entré med skab til tøjet er der adgang til det toplækre HTH-køkken med eksklusive løsninger – bl.a. slid- og varmerestistent keramisk Billeschou-bordplade, Miele ovne og et elektrisk hjørneskab. Dertil kommer dæmpbare spots i loftet og panelbelysning i soklen, der giver en eksklusiv stemning.
I forlængelse af køkkenet ligger spise- og opholdsstue med store vinduer på flere sider og et fantastisk lysindfald. Derudover er her en flot pejsestue med masser af plads til at familien kan samles og hygge sig.
Tre gode værelser og et fleksibelt disponibelt rum kan danne ramme om både børn, gæster og hjemmekontor. Lækkert badeværelse, gæstetoilet og stort bryggers fuldender planløsningen.
Haven er arkitekttegnet og velanlagt med stor solrig terrasse, og den fredelige placering gør udelivet ekstra attraktivt. Carport og udhus/garage rummer både cykler og opbevaring.
Økonomien i boligen
Skal Nykredit Bank ringe for en snak om din boligøkonomi?
Fortæl os, hvornår det passer dig, så ringer en rådgiver fra Nykredit Bank dig op til en uforpligtende snak om dine lånemuligheder. Så er du et skridt tættere på din nye bolig.
Vi bruger dine oplysninger til at forberede samtalen. Læs mere i Nykredit Banks privatlivspolitik
Kontakt

Kontakt
Kim Borum
Skal du også sælge?
Kontakt os og få en gratis salgsvurdering, så ved du hvad din bolig er værd.
- Få et hurtigt estimat af salgspris eller en grundig vurdering.
- Få et indblik i, hvad din ejendom er værd på markedet lige nu.
- Find ud af, hvor meget du selv kan købe for, hvis du ønsker at skifte bolig.
Hvor langt er der til nærmeste?
Se hvor lang tid der er mellem denne bolig og en anden adresse
Fakta om Albertslund Kommune
INDBYGGERE
GRUNDSKYLD
KOMMUNESKAT
SKOLER
BØRNEPASNING
Opret dig i køberkartoteket og få besked om lignende boliger.
Få direkte besked, når der kommer relevante nye boliger til salg, der matcher dine ønsker. Du ser også de boliger, vi får til salg, som vi ikke viser på Nybolig.dk.
Tilpas filtre og opret