Villa med historisk sjæl og masser af plads til udeliv
Familievilla med plads til udeliv og fællesskab under 10 km fra Kongens Nytorv – Totalrenoveret i 2025
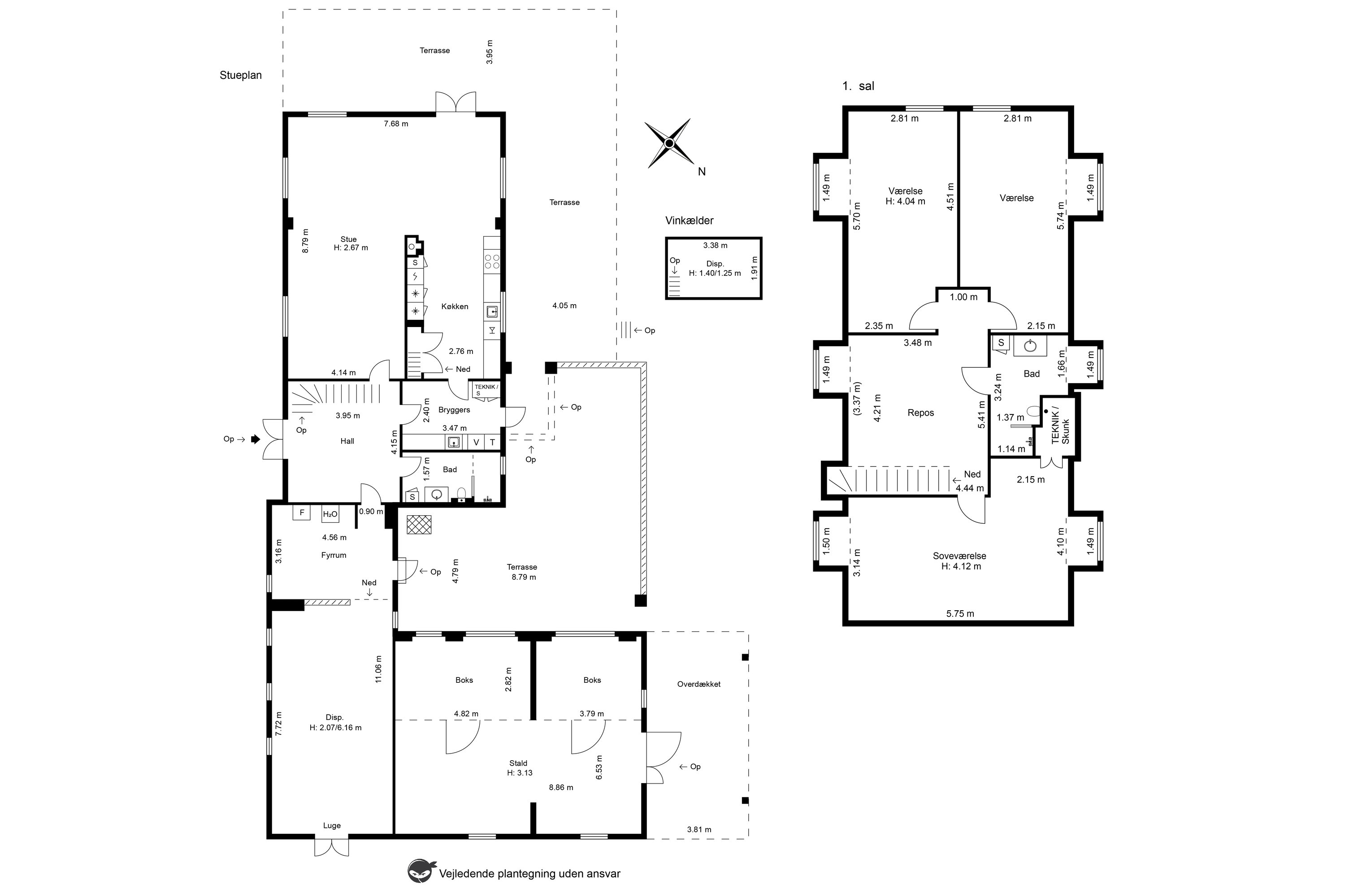
Velkommen til denne enestående villa på 208 m², hvor historisk charme og moderne luksus forenes i perfekt balance. Oprindeligt opført i 1927 og nænsomt gennemgribende renoveret i 2025, fremstår ejendommen som et sandt liebhaverhjem, der både emmer af elegance og funktionalitet.
Indenfor mødes du af en lys og generøs bolig med i alt syv værelser, der giver rigelig plads til både privatliv, fællesskab og gæstfrihed. Stuerne er præget af højt til loftet, smukke lysindfald og en indbydende atmosfære, der indrammer hverdagens og festens øjeblikke. Køkkenet er skabt til den kvalitetsbevidste madelsker – et moderne samlingspunkt med stilrent design, eksklusive materialer og praktiske arbejdsflader, der gør madlavningen til en fornøjelse.
De to badeværelser er udført i tidssvarende stil med eksklusive løsninger, hvor komfort og æstetik går hånd i hånd. Boligen er desuden opgraderet med en ny Bosch luft/vand-varmepumpe installeret i 2025, som sikrer energieffektiv opvarmning i mange år frem.
Ejendommen hviler på en 2.888 m² stor grund, hvor du kan nyde privatlivets ro omgivet af en frodig have. Her er rig mulighed for leg, afslapning og udeliv – hvad enten det er morgenkaffen på terrassen eller børnenes leg på plænen. Til ejendommen hører også en nylagt vej op til huset, som fuldender helhedsindtrykket af kvalitet og gennemført stil.
Beliggenheden er attraktiv og familievenlig med grønne områder, legepladser og indkøb tæt på. Samtidig er der gode forbindelser til byen, hvilket gør det nemt at kombinere et liv i rolige omgivelser med hverdagens praktiske behov.
Denne villa er ikke blot et hjem – det er en livsstil. Et sted hvor historie møder nutid, og hvor der er skabt de ideelle rammer for både nærvær og luksus.
Book en fremvisning allerede i dag, og oplev hvordan denne eksklusive villa kan blive din næste drømmebolig.
Økonomien i boligen
Skal Nykredit Bank ringe for en snak om din boligøkonomi?
Fortæl os, hvornår det passer dig, så ringer en rådgiver fra Nykredit Bank dig op til en uforpligtende snak om dine lånemuligheder. Så er du et skridt tættere på din nye bolig.
Vi bruger dine oplysninger til at forberede samtalen. Læs mere i Nykredit Banks privatlivspolitik
Kontakt

Kontakt
Mads Bengtsson
Skal du også sælge?
Kontakt os og få en gratis salgsvurdering, så ved du hvad din bolig er værd.
- Få et hurtigt estimat af salgspris eller en grundig vurdering.
- Få et indblik i, hvad din ejendom er værd på markedet lige nu.
- Find ud af, hvor meget du selv kan købe for, hvis du ønsker at skifte bolig.
Hvor langt er der til nærmeste?
Se hvor lang tid der er mellem denne bolig og en anden adresse
Fakta om Tårnby Kommune
INDBYGGERE
GRUNDSKYLD
KOMMUNESKAT
SKOLER
BØRNEPASNING
Opret dig i køberkartoteket og få besked om lignende boliger.
Få direkte besked, når der kommer relevante nye boliger til salg, der matcher dine ønsker. Du ser også de boliger, vi får til salg, som vi ikke viser på Nybolig.dk.
Tilpas filtre og opret