Smuk murermestervilla med rolig beliggenhed
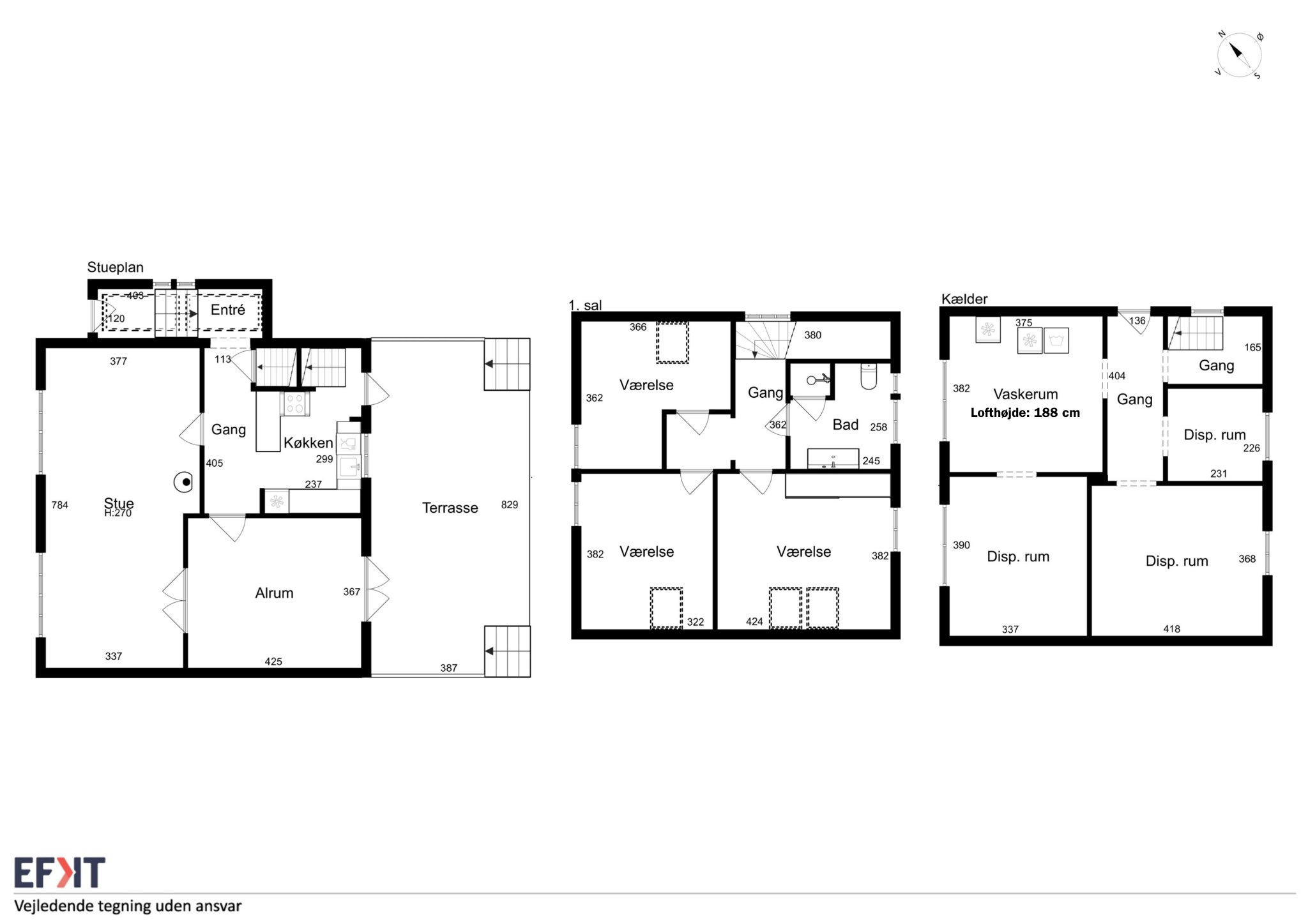
Det er på en rolig vej centralt i Slagelse, at I finder denne fine og velholdte murermestervilla, der byder på plads til familielivet både ude og inde. Huset rummer 198 etagemeter, der fordeler sig over en kælder, en stueetage og en første sal, mens der udenfor venter jer en hyggelig og solrig have.
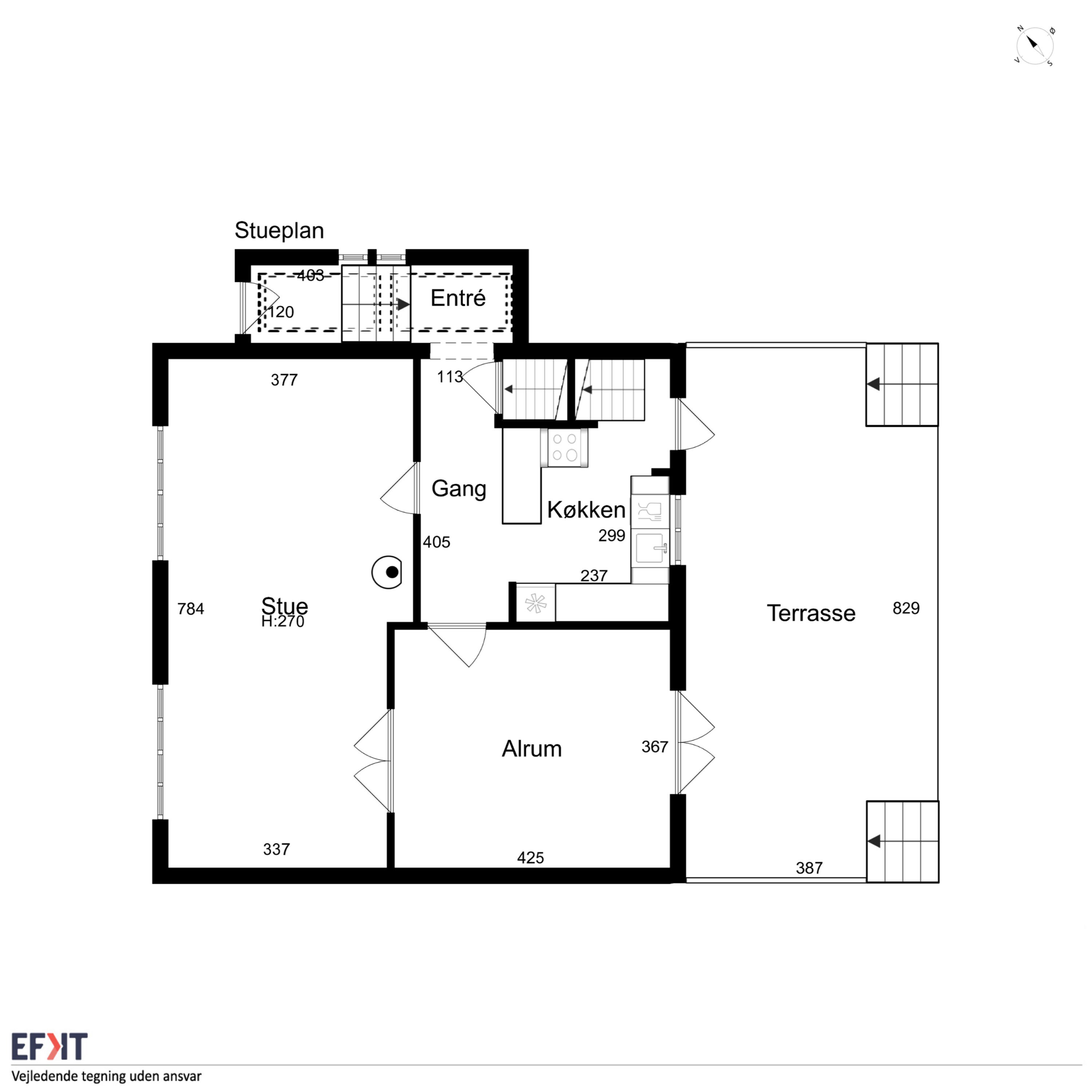
Ejendommen fremtræder yderst charmerende med sin røde murstensfacade og hvide, sprossede vinduespartier og døre. I 2023 blev vinduerne i kælderen desuden udskiftet. Indenfor træder I ind i stueetagen, hvor I føres til det funktionelle køkken med fine skabsløsninger og de nødvendige hvidevarer. Ved siden af køkkenet ligger de to stuer, som begge har fået nye gulve i 2021. Stuen nær køkkenet er oplagt at indrette som spiseafdeling, mens den anden stue – som har brændeovn – er perfekt til sofaen og de øvrige bløde møbler.
Tager I trappen op til førstesalen, får I her gavn af tre værelser, som alle er i fornuftige størrelser og kan indrettes, som I har behov for. Sammen med værelserne ligger badeværelset, som er udstyret med bruseniche og gulvvarme. Slutteligt har I kælderen, der byder ind med tre disponible rum samt et praktisk vaskerum.
Udenfor nydes de solrige sommerdage på den skønne terrasse fra 2023. Her er der rigeligt med plads til havemøbler, grill og parasol, så I har de bedste rammer, når I opholder jer udendørs. Haven er anlagt i en nem stil med græsplæne, der giver masser af plads til børnenes leg.
Endelig skal den helt suveræne beliggenhed fremhæves, da I med adresse her bosætter jer både fredeligt og samtidig med ganske kort afstand til centrum og de daglige gøremål. Der er gåafstand til både skole, daginstitution og indkøb, mens pendleren ligeledes tilgodeses med under halvanden kilometer til Slagelse Station og ideelle tilkørselsmuligheder til motorvejsnettet.
Økonomien i boligen
Skal Nykredit Bank ringe for en snak om din boligøkonomi?
Fortæl os, hvornår det passer dig, så ringer en rådgiver fra Nykredit Bank dig op til en uforpligtende snak om dine lånemuligheder. Så er du et skridt tættere på din nye bolig.
Vi bruger dine oplysninger til at forberede samtalen. Læs mere i Nykredit Banks privatlivspolitik
Kontakt

Kontakt
Peter Valentin
Skal du også sælge?
Kontakt os og få en gratis salgsvurdering, så ved du hvad din bolig er værd.
- Få et hurtigt estimat af salgspris eller en grundig vurdering.
- Få et indblik i, hvad din ejendom er værd på markedet lige nu.
- Find ud af, hvor meget du selv kan købe for, hvis du ønsker at skifte bolig.
Hvor langt er der til nærmeste?
Se hvor lang tid der er mellem denne bolig og en anden adresse
Fakta om Slagelse Kommune
INDBYGGERE
GRUNDSKYLD
KOMMUNESKAT
SKOLER
BØRNEPASNING
Opret dig i køberkartoteket og få besked om lignende boliger.
Få direkte besked, når der kommer relevante nye boliger til salg, der matcher dine ønsker. Du ser også de boliger, vi får til salg, som vi ikke viser på Nybolig.dk.
Tilpas filtre og opret