Flot villa med god beliggenhed i roligt område tæt på alt
I denne indbydende rødstensvilla er der mange højdepunkter at glæde sig til. De 150 velindrettede kvm er fordelagtigt fordelt og udnyttet til fulde på tværs af dejlige opholdsrum og tre værelser samt mulighed for 4, og hertil får I en brugbar kælder med fine muligheder. Udelivet får også fortrinlige betingelser i den nemme, solrige have, og så kommer I endda til at bo nær indkøb og stationen.
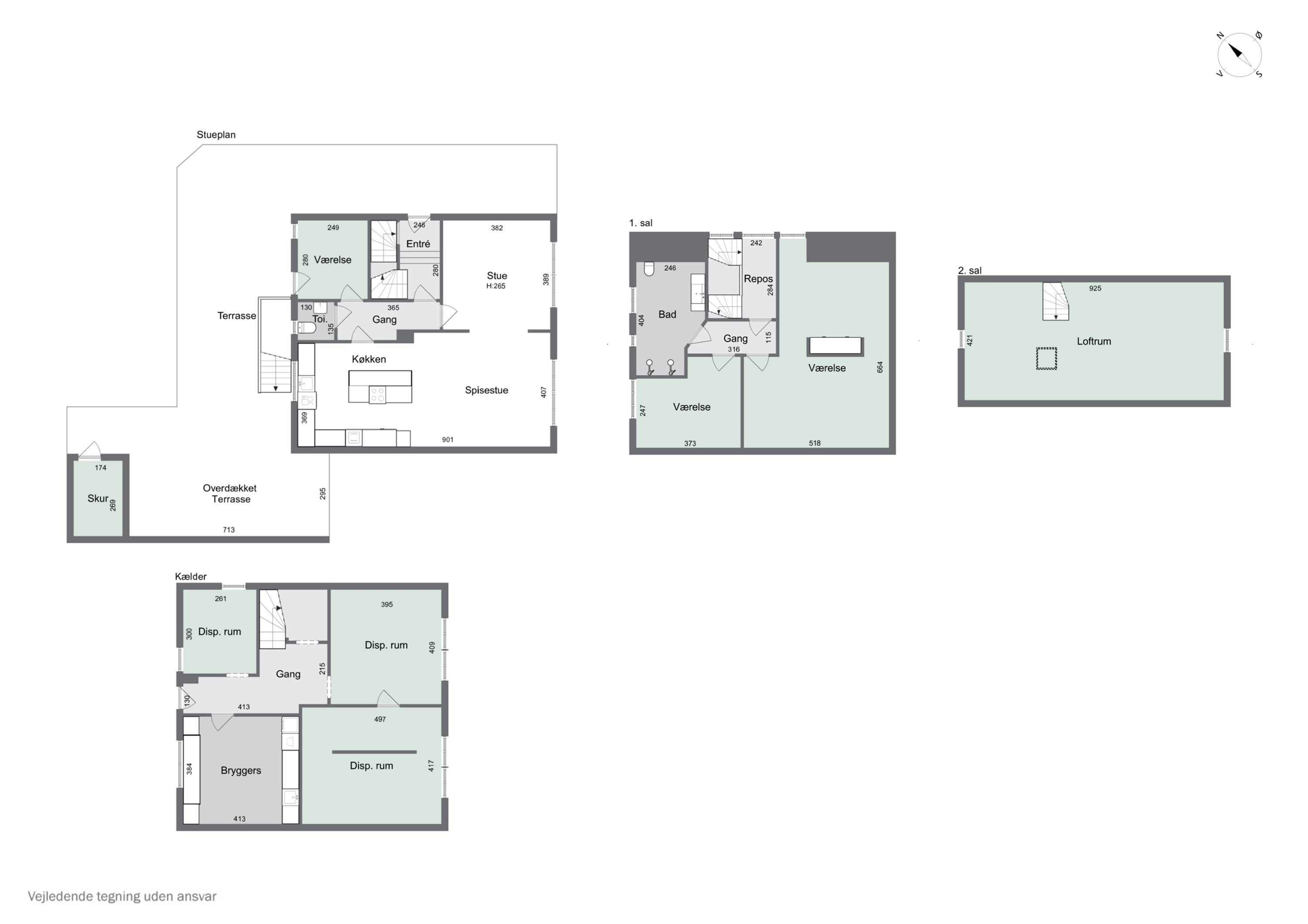
Villaen har et overskueligt areal, der i stueplanet centrerer sig om køkken-alrummet og stuen i forlængelse. Ind gennem de småsprossede vinduespartier strømmer solen uhindret, og atmosfæren er både let og imødekommende. Det smagfulde køkken har køkkenø og god skabsplads, og mens spisebordet arrangeres i alrummet, indretter I sofagruppen i den tilstødende stue.
Etagen fuldendes af et toilet, inden turen går til de to værelser på førstesalen, hvor det er muligt at omdanne det største til to separate værelser ved behov. Derudover er her et stilfuldt badeværelse med dobbeltbruser, og så får I desuden en uudnyttet anden sal. Læg også mærke til de flotte gulve og den rå murstensvæg langs trappen mellem etagerne. Kælderen føjer et bryggers med ekstra opbevaringsløsninger samt tre praktiske, disponible rum til det samlede brugsareal.
Udenfor bliver den store terrasse et kærkomment helle til sommerdagene, hvor I nyder enten morgen- eller aftensolens skær. Haven er behageligt indrammet og består primært af græsplæne, så den er dejligt nem at vedligeholde. Til huset hører der også en carport med skur i forlængelse.
I bosætter jer i et roligt område, hvorfra der er gåafstand til Slagelse Station, indkøb, pasningsordning og skole, mens cyklen fragter jer til sportshallen og Lystskovens naturskønne arealer. Pendlerlivet tilgodeses også af hurtig adgang til motorvejen.
Økonomien i boligen
Skal Nykredit Bank ringe for en snak om din boligøkonomi?
Fortæl os, hvornår det passer dig, så ringer en rådgiver fra Nykredit Bank dig op til en uforpligtende snak om dine lånemuligheder. Så er du et skridt tættere på din nye bolig.
Vi bruger dine oplysninger til at forberede samtalen. Læs mere i Nykredit Banks privatlivspolitik
Kontakt

Kontakt
Nich Demant Bagger
Skal du også sælge?
Kontakt os og få en gratis salgsvurdering, så ved du hvad din bolig er værd.
- Få et hurtigt estimat af salgspris eller en grundig vurdering.
- Få et indblik i, hvad din ejendom er værd på markedet lige nu.
- Find ud af, hvor meget du selv kan købe for, hvis du ønsker at skifte bolig.
Hvor langt er der til nærmeste?
Se hvor lang tid der er mellem denne bolig og en anden adresse
Fakta om Slagelse Kommune
INDBYGGERE
GRUNDSKYLD
KOMMUNESKAT
SKOLER
BØRNEPASNING
Opret dig i køberkartoteket og få besked om lignende boliger.
Få direkte besked, når der kommer relevante nye boliger til salg, der matcher dine ønsker. Du ser også de boliger, vi får til salg, som vi ikke viser på Nybolig.dk.
Tilpas filtre og opret