Helt tæt på skov og strand
Ikke mere end 100 meter fra Storebælt står denne overordentligt charmerende villa, hvor en smuk beliggenhed får selskab af en nydeligt istandsat og ganske velindrettet bolig. I får god plads at boltre jer på, hvad end I opholder jer inden døre eller foretrækker den hyggelige have.
Det er især den korte afstand til vandet, der kendetegner jeres kommende bopæl. Det tager under to minutter at gå, og stranden er tilmed virkelig lækker med fin sandbund. Endnu nærmere huset ligger Bildsø Skov, hvor I kan gå ture under trækronerne, og hvis I fortsætter videre i samme retning, når I hurtigt Stillinge Strand centrum med købmand, caféer og mere endnu. Bemærk desuden, at den nærmeste skole ligger i Kirke Stillinge.
Husets facade får fint selskab af nye vinduer og døre fra 2022. Vinduerne er hvide og sprossede, og de matcher perfekt den hyggelige stil. En anden tilføjelse fra samme år er belægningen rundt om huset, ligesom altanen tilhørende reposet på førstesalen også er fra 2022. Inden døre er der desuden lagt nye gulve og installeret et nyt køkken i 2020.
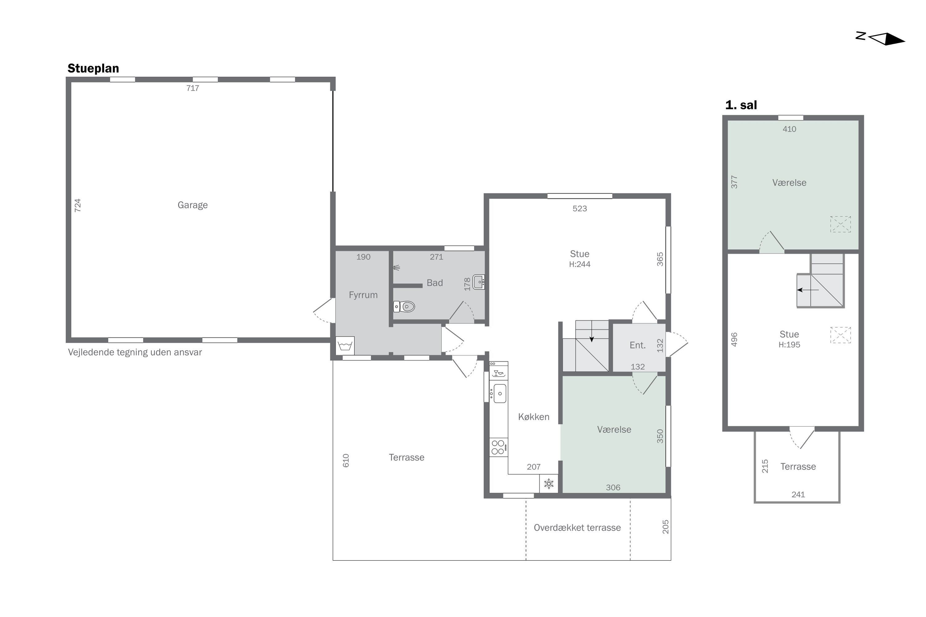
Rumfordelingen er i stueplan centreret omkring et lyst opholdsrum med stue og køkken i forening. Køkkenet toner frem med et flot design, der stemmer overens med den klassiske charme og de landlige omgivelser. Videre råder I over et værelse, et badeværelse og et fyrrum, og på overetagen er der det nævnte repos og et regulært soveværelse.
Fra altanen har I en fantastisk udsigt, og nedenfor kan I se jeres dejlige have. Den er veltilrettelagt med flere terrasser, hvoraf en er overdækket, og slutteligt skal I se den meget rummelige og multianvendelige garage. Den nås direkte fra huset.
Lyder det som noget for jer? Ring til os allerede i dag.
Økonomien i boligen
Skal Nykredit Bank ringe for en snak om din boligøkonomi?
Fortæl os, hvornår det passer dig, så ringer en rådgiver fra Nykredit Bank dig op til en uforpligtende snak om dine lånemuligheder. Så er du et skridt tættere på din nye bolig.
Vi bruger dine oplysninger til at forberede samtalen. Læs mere i Nykredit Banks privatlivspolitik
Kontakt

Kontakt
Peter Valentin
Skal du også sælge?
Kontakt os og få en gratis salgsvurdering, så ved du hvad din bolig er værd.
- Få et hurtigt estimat af salgspris eller en grundig vurdering.
- Få et indblik i, hvad din ejendom er værd på markedet lige nu.
- Find ud af, hvor meget du selv kan købe for, hvis du ønsker at skifte bolig.
Hvor langt er der til nærmeste?
Se hvor lang tid der er mellem denne bolig og en anden adresse
Fakta om Slagelse Kommune
INDBYGGERE
GRUNDSKYLD
KOMMUNESKAT
SKOLER
BØRNEPASNING
Opret dig i køberkartoteket og få besked om lignende boliger.
Få direkte besked, når der kommer relevante nye boliger til salg, der matcher dine ønsker. Du ser også de boliger, vi får til salg, som vi ikke viser på Nybolig.dk.
Tilpas filtre og opret