Velindrettet villa med udsigt over åbne marker
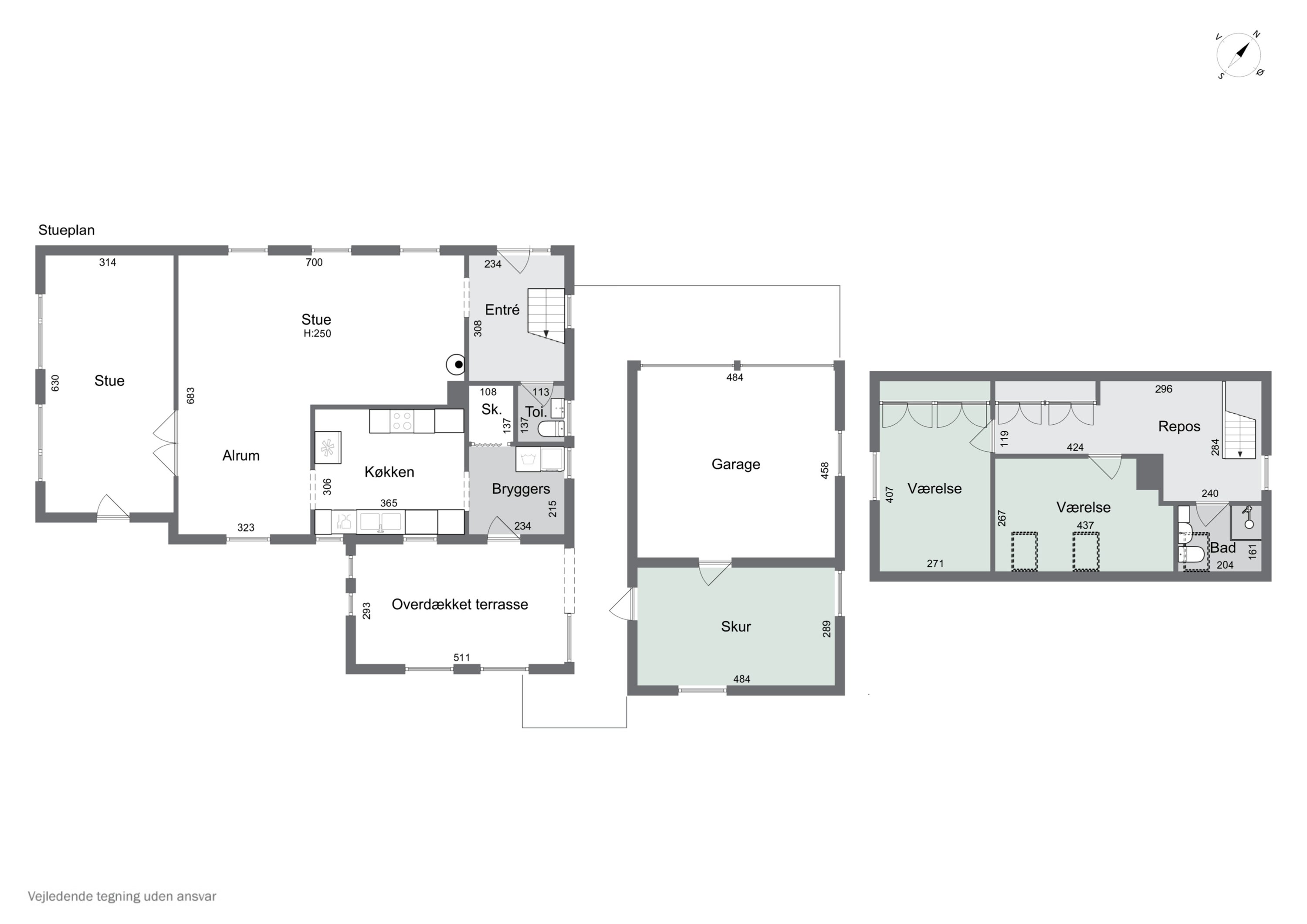
En veldisponeret bolig, en hyggelig have og flot udsigt over åbne marker – det kort fortalt, hvad I kan se frem til, hvis I erhverver jer denne ejendom i Eggeslevmagle. Her er tale om en villa fra 1937, der er opført i halvandet plan. Huset indeholder blandt andet to soveværelser og en rummelig vinkelstue, som suppleres af en nyere helårsudestue. Villaen fremtræder med gul facade, charmerende sprossevinduer og sadeltag. Den tilhørende dobbeltgarage er også muret og har indbygget værksted. Inden døre byder boligen på en klassisk planløsning med opholdsrum i stueplan og værelsesafdeling på førstesalen. Såvel køkkenet som stuen har trægulv, og i køkkenet er der klargjort til gulvvarme. Det funktionelle køkken er udført med lyse skabs- og skuffeelementer, og det har fine opbevaringsforhold. Den tilstødende vinkelstue er nem at indrette, og I får glæde af en pilleovn, der er fra 2023. Fra stuen er der dobbeltdør ud til den dejlige udestue, som føjer 20 bonuskvadratmeter til hjemmet. Udestuen er ombygget i 2021, og der blev i denne forbindelse monteret brede vinduespartier med trelagsruder. Stueplanet inkluderer endvidere en entré, et gæstetoilet og et bryggers, og på førstesalen finder I de to gode soveværelser og et badeværelse. Sidstnævnte har bruseniche, og både her og på gæstetoilettet er der gulvvarme. Ejendommens have er af en overkommelig størrelse, og herude kan I nyde solen, roen og udsigten over landskabet. Haven er anlagt med frodige bede, en lille havedam og to terrasser, hvoraf den ene er overdækket og delvist lukket. I bosætter jer i et fredeligt område lige uden for landsbyen. Naboerne er søde, og lokalmiljøet afholder flere fællesarrangementer i løbet af året. Fra adressen er der bekvem cykelafstand til Skælskør, som huser alle hverdagens nødvendigheder.
Økonomien i boligen
Skal Nykredit Bank ringe for en snak om din boligøkonomi?
Fortæl os, hvornår det passer dig, så ringer en rådgiver fra Nykredit Bank dig op til en uforpligtende snak om dine lånemuligheder. Så er du et skridt tættere på din nye bolig.
Vi bruger dine oplysninger til at forberede samtalen. Læs mere i Nykredit Banks privatlivspolitik
Kontakt

Kontakt
Mads Merrild Hansen
Skal du også sælge?
Kontakt os og få en gratis salgsvurdering, så ved du hvad din bolig er værd.
- Få et hurtigt estimat af salgspris eller en grundig vurdering.
- Få et indblik i, hvad din ejendom er værd på markedet lige nu.
- Find ud af, hvor meget du selv kan købe for, hvis du ønsker at skifte bolig.
Hvor langt er der til nærmeste?
Se hvor lang tid der er mellem denne bolig og en anden adresse
Fakta om Slagelse Kommune
INDBYGGERE
GRUNDSKYLD
KOMMUNESKAT
SKOLER
BØRNEPASNING
Opret dig i køberkartoteket og få besked om lignende boliger.
Få direkte besked, når der kommer relevante nye boliger til salg, der matcher dine ønsker. Du ser også de boliger, vi får til salg, som vi ikke viser på Nybolig.dk.
Tilpas filtre og opret