Villa 193 m² på 791 m² grund nær skole, daginstitution og grønne områder
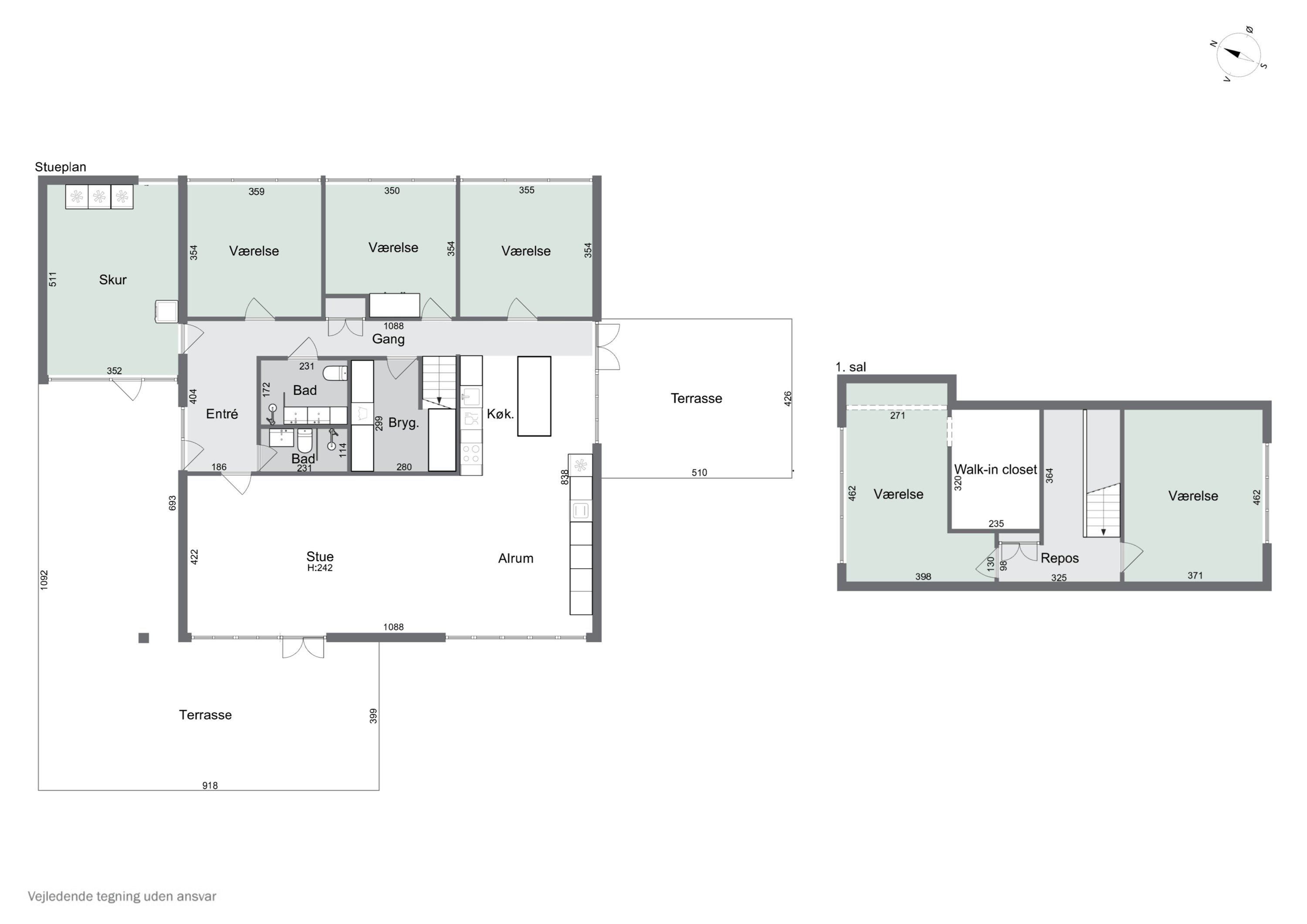
Børnefamilien: Villa på 193 m² med plads til hverdagens aktiviteter og gode udearealer. Her får I et hjem fra 1975, placeret på en grund på 791 m², med i alt 6 værelser og 2 badeværelser. Første indtryk er et lyst og åbent stueplan, hvor store vinduespartier og terrassedøre skaber en tydelig forbindelse til haven. Husets facade i kombination af mursten og vertikal træbeklædning giver et robust udtryk og god visuel tyngde.  Indretningen er veldisponeret med et stort stue-/alrum i åben forbindelse til køkkenet, som fungerer som hjemmets naturlige samlingspunkt. Køkkenet er opført med mørke fronter, stor ø og integrerede løsninger, der giver både arbejdsplads og siddeplads. På stueplan findes tre værelser, entre, bryggers og to badeværelser – det ene med dobbeltspejl og god opbevaring. På 1. sal er der yderligere to rummelige værelser og en walk-in closet, som binder overetagen sammen og skaber mulighed for privatliv.  Særlige fordele ved ejendommen er de brede glaspartier, der lader dagslyset strømme ind, og de direkte udgange til terrasserne, så ude- og inderum spiller sammen på en enkel måde. Haven er afskærmet med hæk og byder på plæneareal til leg samt flere flisebelagte opholdszoner til morgenkaffe eller aftensmad udenfor. Der er desuden et skur/garage-område til opbevaring og hobby, hvilket giver ekstra funktionalitet i hverdagen.  Beliggenheden understøtter en praktisk hverdag med kort vej til skole, daginstitution, indkøb og offentlig transport, så daglige ærinder klares let. Omgivelserne virker rolige med adgang til grønne områder og stisystemer, som indbyder til gå- og cykelture. Kombinationen af overskuelig grund og et funktionelt indre gør boligen velegnet til familien, som ønsker både plads til samvær og separate rum til arbejde eller teenage-hjørner.  Samlet får I 193 m² fordelt på 6 værelser og 2 badeværelser på en 791 m² grund — et hus med fleksibel planløsning, godt lysindfald og flere udendørs opholdsarealer. Har I brug for plads til familieliv, hobby eller hjemmearbejde, står denne bolig klar til at rumme hverdagen. Kontakt os for privat fremvisning og oplev huset ved selvsyn.
Økonomien i boligen
Skal Nykredit Bank ringe for en snak om din boligøkonomi?
Fortæl os, hvornår det passer dig, så ringer en rådgiver fra Nykredit Bank dig op til en uforpligtende snak om dine lånemuligheder. Så er du et skridt tættere på din nye bolig.
Vi bruger dine oplysninger til at forberede samtalen. Læs mere i Nykredit Banks privatlivspolitik
Kontakt
 
                Kontakt
Kasper Helt Hansen
Skal du også sælge?
Kontakt os og få en gratis salgsvurdering, så ved du hvad din bolig er værd.
- Få et hurtigt estimat af salgspris eller en grundig vurdering.
- Få et indblik i, hvad din ejendom er værd på markedet lige nu.
- Find ud af, hvor meget du selv kan købe for, hvis du ønsker at skifte bolig.
Hvor langt er der til nærmeste?
Se hvor lang tid der er mellem denne bolig og en anden adresse
Fakta om Lejre Kommune
INDBYGGERE
GRUNDSKYLD
KOMMUNESKAT
SKOLER
BØRNEPASNING
Opret dig i køberkartoteket og få besked om lignende boliger.
Få direkte besked, når der kommer relevante nye boliger til salg, der matcher dine ønsker. Du ser også de boliger, vi får til salg, som vi ikke viser på Nybolig.dk.
Tilpas filtre og opret