Lægger I vejen forbi Bonderupvej 11 i Ugerløse, møder I denne velindrettede villa med gode, lyse rum og en familievenlig planløsning, der blandt andet giver jer op til fem værelser, to badeværelser og to stuer. I får også et stort og opvarmet værksted / garage, hvoraf 32 m2 er godkendt til boligformål. Tillige en skøn gårdsplads og en mindre, lukket have. Privart have med rigt dyreliv.
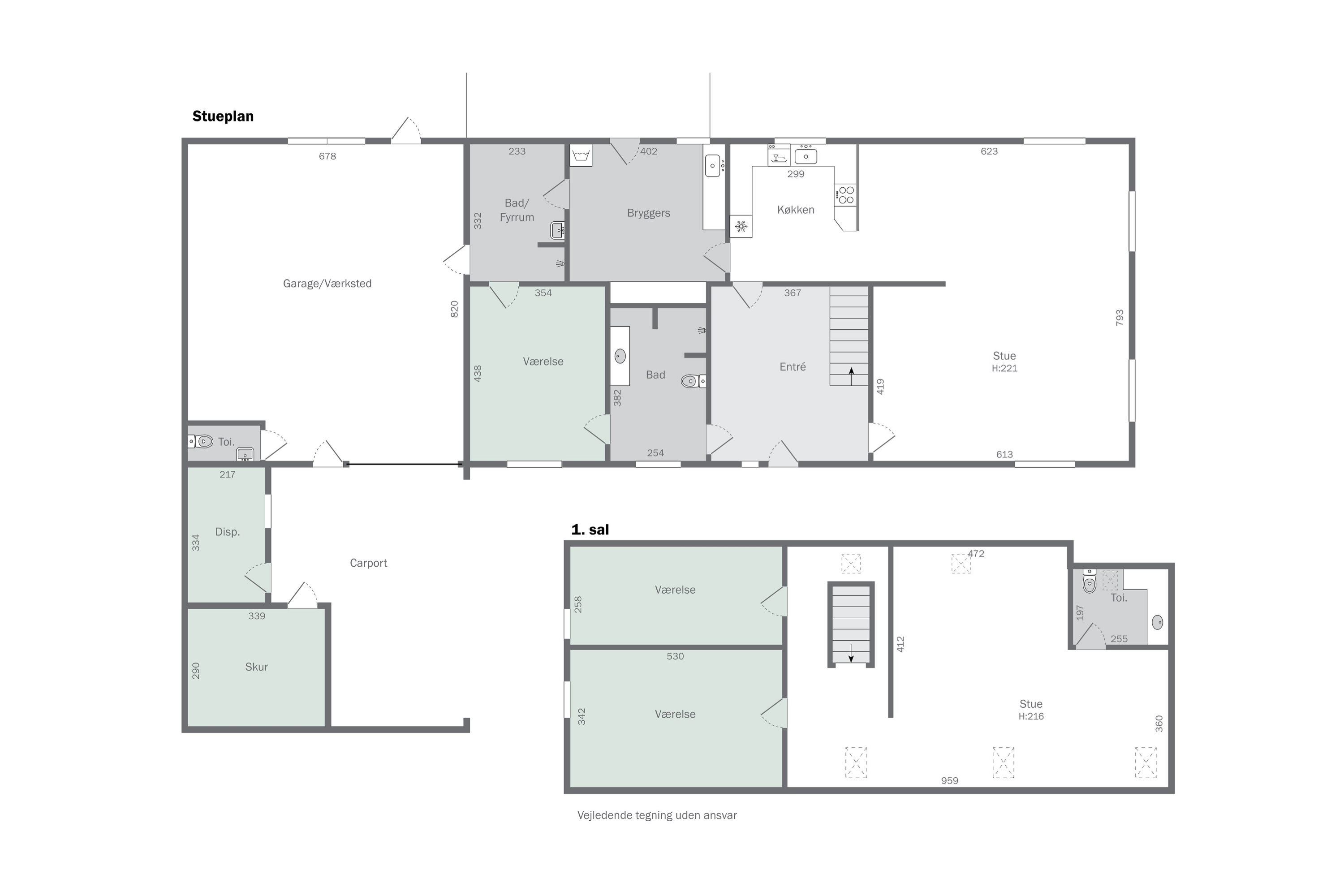
I stueplanet kan I glæde jer til at indrette den rummelige stue, hvor I snart har fundet plads til flere hyggelige sektioner til samværet i dagligdagen. Velplaceredevinduersørgerforetrigtlysindfald,dergørstemningenletogindbydende.Spisesektionen kan I passende etablere i naturlig forlængelse af det pæne, lyse køkken, som der er åben forbindelse til, så samtalerne kan flyde frit, mens I tilbereder aftensmaden. Fra køkkenet er der direkte adgang til bryggerset, hvorfra I også tilgår det ene badeværelse med dør ud til garagen. Etagen fuldendes af et regulært værelse med eget bad. På førstesalen venter yderligere to værelser foruden et toilet og en stue, der også kan indrettes som et kontor, et alrum eller et ekstra værelse ved behov. Alternativt som en selvstændig afdeling, til teenagere eller bedsteforældre.
Fortil på grunden har I den skønne gårdsplads i forlængelse af carporten med et disponibelt rum og et skur tilknyttet. Fra carporten er der adgang til den kombinerede garage og værksted, der er oplagt til hobbyformål eller liberalt erhverv, og desuden har eget toilet. Nuværende ejer har tilladelse til erhverv. Der er særskilt el-måler til værkstedet, samt el-port og stærkstrøm.
I får også en ugeneret baghave med flot beplantning og en pragtfuld terrasse, hvor I kan nyde sommerdagene. Beliggenheden tilgodeser familielivet med små 700 meter til både indkøb, daginstitution og skole. På cykel får I heller ikke langt til naturskønne områder til fritidens udflugter, der eksempelvis kan gå til Sortelyng eller Brorfelde Skov. Endvidere er der gåafstand til områdets svømmebad. Beliggenheden er endvidere praktisk for pendleren, der får nem adgang til motorvejen og hurtigt tilbagelægger afstanden til større byer såsom Holbæk, Ringsted og Sorø.
Stedet er perfekt til den store familie, flere generationer eller til et bosted - kom og se nærmere på dette hyggelige sted.
Økonomien i boligen
Skal Nykredit Bank ringe for en snak om din boligøkonomi?
Fortæl os, hvornår det passer dig, så ringer en rådgiver fra Nykredit Bank dig op til en uforpligtende snak om dine lånemuligheder. Så er du et skridt tættere på din nye bolig.
Vi bruger dine oplysninger til at forberede samtalen. Læs mere i Nykredit Banks privatlivspolitik
Kontakt

Kontakt
Line Friis
Skal du også sælge?
Kontakt os og få en gratis salgsvurdering, så ved du hvad din bolig er værd.
- Få et hurtigt estimat af salgspris eller en grundig vurdering.
- Få et indblik i, hvad din ejendom er værd på markedet lige nu.
- Find ud af, hvor meget du selv kan købe for, hvis du ønsker at skifte bolig.
Hvor langt er der til nærmeste?
Se hvor lang tid der er mellem denne bolig og en anden adresse
Fakta om Holbæk Kommune
INDBYGGERE
GRUNDSKYLD
KOMMUNESKAT
SKOLER
BØRNEPASNING
Opret dig i køberkartoteket og få besked om lignende boliger.
Få direkte besked, når der kommer relevante nye boliger til salg, der matcher dine ønsker. Du ser også de boliger, vi får til salg, som vi ikke viser på Nybolig.dk.
Tilpas filtre og opret