I første række til vandet på nordsiden af Kalundborg Fjord finder I denne indbydende ejendom, som nu kan blive jeres. Der er tale om en udsøgt kvalitetsejendom, tegnet af arkitekt Ole Hemmeth. Her er masser af plads, og til den hører en velanlagt have med udendørs swimmingpool, overdækket terrasse og solrige udemiljøer. Frem for alt får I glæde af den fantastiske panoramaudsigt over fjorden, ligesom I nemt kan tilgå alle hverdagens fornødenheder.
Fremragende fjordudsigt
Grunden er hævet fra Kystvejen og er således også en del højere end vandoverfladen. Det giver et frit udsyn over fjorden både indefra boligen og ude i haven. Terrassen er sydvendt og ligger delvist i læ under husets udhæng. Omkring swimmingpoolen er der pigstensbelægning, og haven er dernæst kendetegnet af græs, veltrimmet buskads og fine bede.
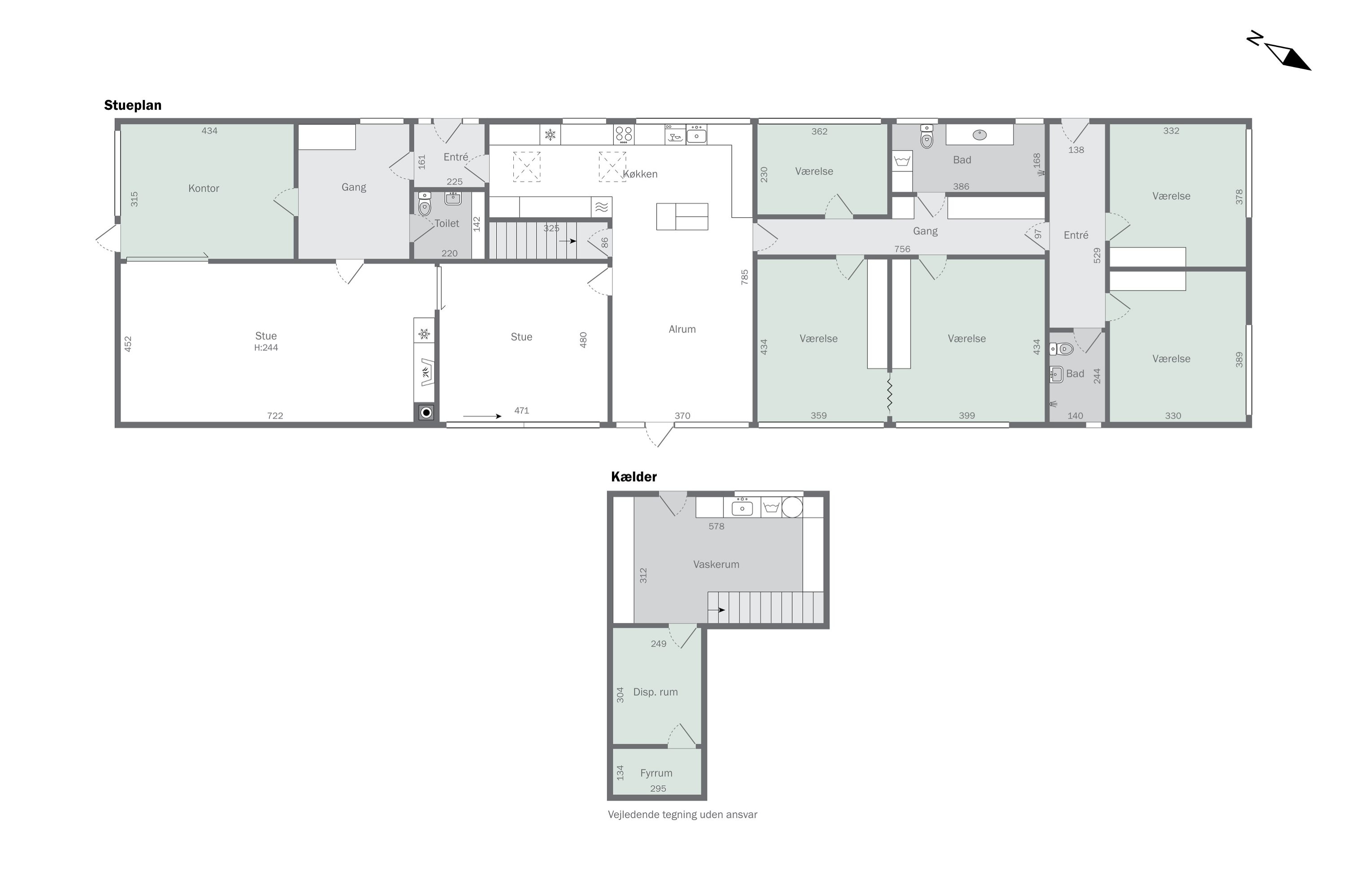
Rummelig villa med god planløsning
Adressen hedder Strandbakken 17, og det er via det lukkede kvarter, at I tilgår ejendommen - et klassisk længehus med hvide facader, sorte detaljer og et valmet, rødt tegltag. Boligen er velholdt og velindrettet, og når I træder inden døre, bemærker I straks de behagelige lysindfald og gennemgående kvalitetsmaterialer. Beboelsen er centreret omkring køkken-alrummet, som knytter sig til en pejsestue, og videre kommer endnu en stor stue. Vældige vinduespartier løfter sløret for udsigten, og der er også adgang til terrassen fra køkken-alrummet og den ene stue.Ydermere rummer villaen seks værelser, to badeværelser og et gæstetoilet, og det hele er hensigtsmæssigt fordelt i hver ende af huset. Der er også en kælder, som supplerer med et vaskerum og to disponible rum.
Tæt på hverdagens fornødenheder
Endelig kan I glæde jer til at bo på tærsklen til både byen og naturen. Børnene kan hurtigt cykle til Nyrupskolen, og der er heller ikke langt til daginstitutioner og fritidstilbud i Røsnæshallen. Ligeledes er der få kilometer til Kalundborg centrum, og i modsatte retning indbyder Røsnæs til udflugter i naturen.
Økonomien i boligen
Skal Nykredit Bank ringe for en snak om din boligøkonomi?
Fortæl os, hvornår det passer dig, så ringer en rådgiver fra Nykredit Bank dig op til en uforpligtende snak om dine lånemuligheder. Så er du et skridt tættere på din nye bolig.
Vi bruger dine oplysninger til at forberede samtalen. Læs mere i Nykredit Banks privatlivspolitik
Kontakt

Kontakt
Steen Huusom
Skal du også sælge?
Kontakt os og få en gratis salgsvurdering, så ved du hvad din bolig er værd.
- Få et hurtigt estimat af salgspris eller en grundig vurdering.
- Få et indblik i, hvad din ejendom er værd på markedet lige nu.
- Find ud af, hvor meget du selv kan købe for, hvis du ønsker at skifte bolig.
Hvor langt er der til nærmeste?
Se hvor lang tid der er mellem denne bolig og en anden adresse
Fakta om Kalundborg Kommune
INDBYGGERE
GRUNDSKYLD
KOMMUNESKAT
SKOLER
BØRNEPASNING
Opret dig i køberkartoteket og få besked om lignende boliger.
Få direkte besked, når der kommer relevante nye boliger til salg, der matcher dine ønsker. Du ser også de boliger, vi får til salg, som vi ikke viser på Nybolig.dk.
Tilpas filtre og opret