Charmerende muremestervilla i dejlige Nykøbing Sjælland
Som porten til Nykøbing Sjælland ligger Bakkehuset – en markant og charmerende muremestervilla fra 1934, der med sin klassiske arkitektur og gennemførte detaljer straks fanger øjet. Her får I ikke bare en bolig, men et hjem, der bliver set. Den synlige placering og det smukke udtryk gør huset til noget helt særligt.
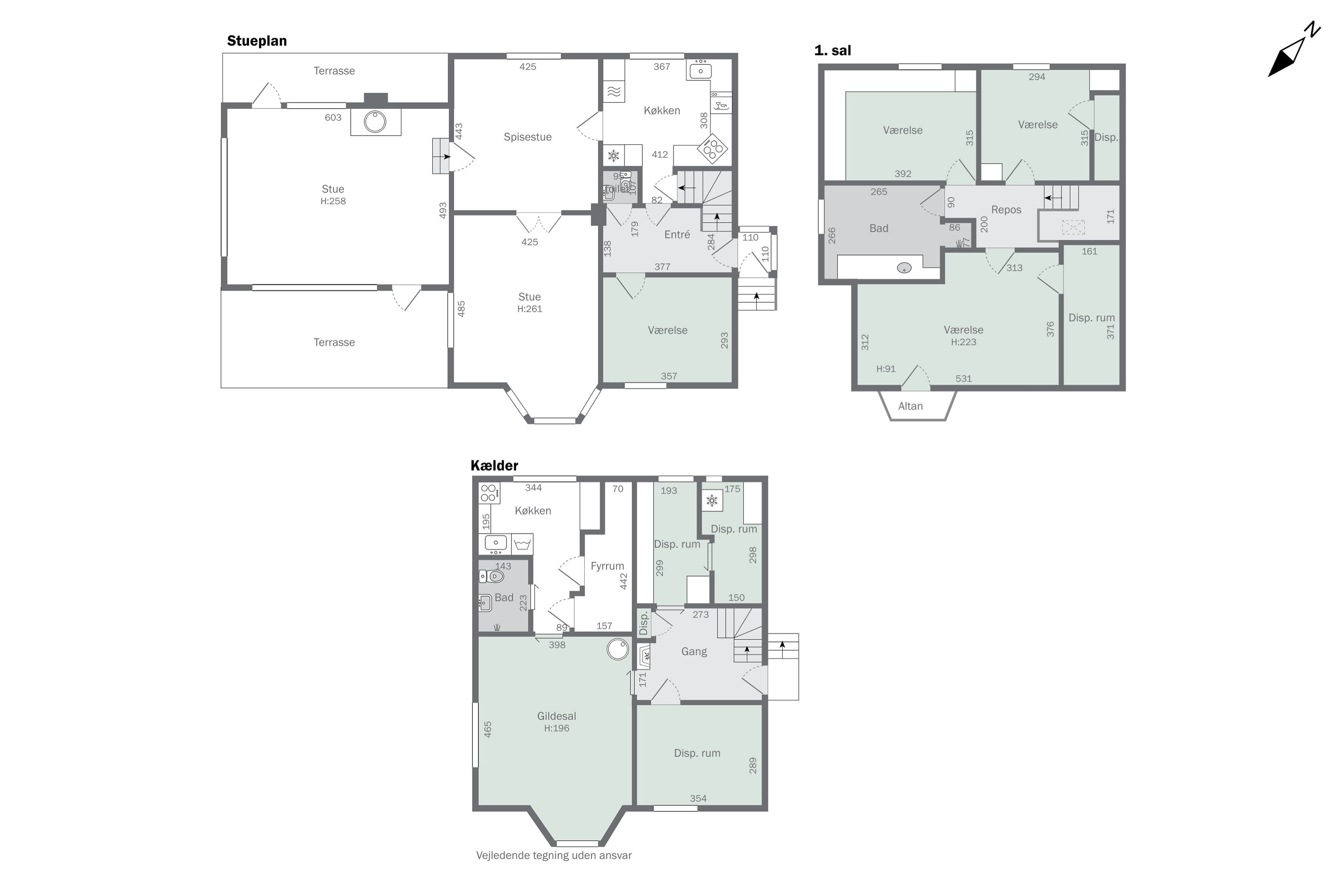
De 152 m² bolig fordelt på to etager samt yderligere 69 m² anvendelig kælder rummer masser af sjæl. Overalt mødes I af fine originale detaljer som fyldningsdøre, stuklofter og et smukt muret indgangsparti. I selve huset og kælderen er der skiftet til nyere energivinduer, nøje udvalgt for at passe til ejendommens stil.
I træder ind i en imponerende hall med en elegant trappe til første sal – et rum, der både fungerer som praktisk fordelingsgang og smuk velkomst til huset. Hjemmets indretning byder på et spisekøkken og hele tre stuer: en dagligstue med indbydende glaskarnap, en spisestue med nedgang til en hyggelig pejsestue med flot stengulv, skønt lysindfald og udgang til to terrasser. Under de nuværende tæpper gemmer sig de originale fernisgulve, der blot venter på at komme til live igen. Dertil kommer et værelse og et gæstetoilet.
På førstesalen finder I tre værelser, hvoraf det ene har adgang til en charmerende altan, samt et lyst badeværelse med stor bruseniche. Den rummelige kælder rummer et ekstra køkken, en gildesal med pejs, endnu et badeværelse og flere disponible rum med mange anvendelsesmuligheder.
Haven er skøn og velholdt med stor parklignende græsplæne, frodige buske, store træer og flere solrige terrasser. Fra grunden er der udsigt til Nykøbings smukke vandtårn – et vartegn, der understreger den historiske atmosfære i området.
Beliggenheden giver nem adgang til hverdagens fornødenheder såsom indkøb, skole, bus og sportsfaciliteter, alt sammen inden for halvanden kilometer. Byen byder på hyggelige caféer, spændende butikker i gågaden samt dejlige oplevelser ved Nykøbing Nordstrand og lystbådehavnen.
Bakkehuset er meget mere end et hus – det er et hjem med sjæl, historie og en iøjnefaldende placering. Her er plads til at drømme stort og sætte sit eget præg. Måske er det her, jeres næste kapitel begynder?
Økonomien i boligen
Skal Nykredit Bank ringe for en snak om din boligøkonomi?
Fortæl os, hvornår det passer dig, så ringer en rådgiver fra Nykredit Bank dig op til en uforpligtende snak om dine lånemuligheder. Så er du et skridt tættere på din nye bolig.
Vi bruger dine oplysninger til at forberede samtalen. Læs mere i Nykredit Banks privatlivspolitik
Kontakt
 
                Kontakt
Mikkel Henriksen
Skal du også sælge?
Kontakt os og få en gratis salgsvurdering, så ved du hvad din bolig er værd.
- Få et hurtigt estimat af salgspris eller en grundig vurdering.
- Få et indblik i, hvad din ejendom er værd på markedet lige nu.
- Find ud af, hvor meget du selv kan købe for, hvis du ønsker at skifte bolig.
Hvor langt er der til nærmeste?
Se hvor lang tid der er mellem denne bolig og en anden adresse
Fakta om Odsherred Kommune
INDBYGGERE
GRUNDSKYLD
KOMMUNESKAT
SKOLER
BØRNEPASNING
Opret dig i køberkartoteket og få besked om lignende boliger.
Få direkte besked, når der kommer relevante nye boliger til salg, der matcher dine ønsker. Du ser også de boliger, vi får til salg, som vi ikke viser på Nybolig.dk.
Tilpas filtre og opret