Hyggelig villa i naturskønt område tæt på Vordingborg
I Bakkebølles naturrige omgivelser, kun fem kilometer fra Vordingborg, træder I ind i denne charmerende gulstensejendom, der imponerer med sin velgennemtænkte planløsning og et pragtfuldt udemiljø. Boligen rummer to dejlige værelser, indbydende opholdsrum, et funktionelt badeværelse og et praktisk bryggers – perfekt til den fleksible hverdag. Herudover er der mulighed for flexbolig, hvilket giver ekstra frihed og potentiale til både hjemmearbejde, udlejning eller gæster.
Beliggenheden er i særklasse: omgivet af natur, men stadig med korte afstande til alle dagligdagens fornødenheder. Indkøb, idrætsaktiviteter og hyggelige ture i det fri er let tilgængelige på cykel, og skov og strand ligger også inden for overkommelig rækkevidde. For pendleren er det værd at fremhæve, at motorvejen nås på under ti minutter – en kombination af ro og nem adgang, som sjældent går hånd i hånd.
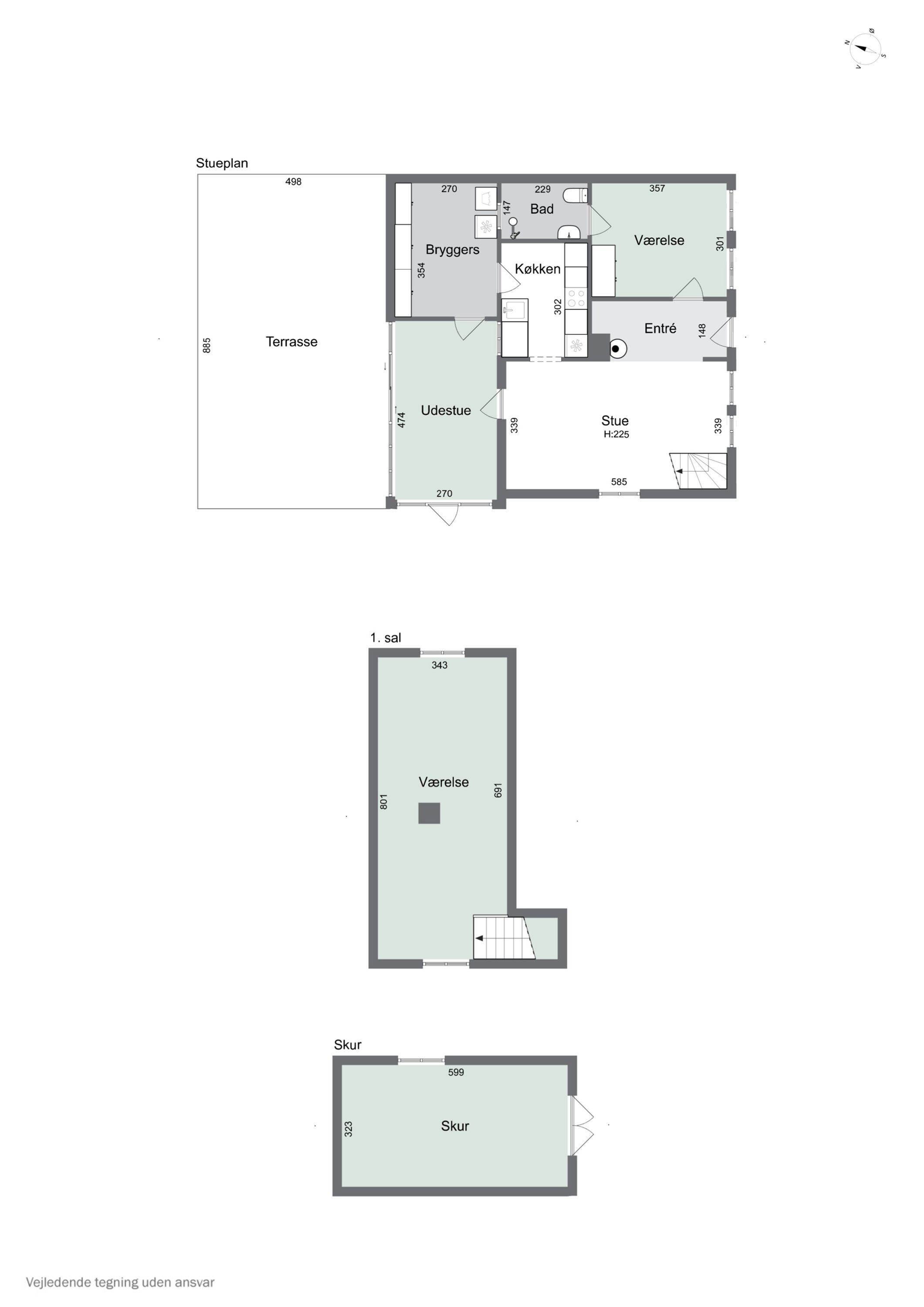
Boligen byder indenfor med en lys og indbydende entré, der åbner op til en rummelig stue, hvor spisebord og sofa straks inviterer til samvær. I forlængelse af stuen finder I et pænt, velholdt køkken – et sted, hvor madlavning bliver en fornøjelse. Den hyggelige udestue bliver hurtigt hjemmets naturlige samlingspunkt fra forår til efterår. Hertil kommer et stort soveværelse med direkte adgang til badeværelse samt et bryggers med ekstra skabsplads, og på førstesalen venter et rummeligt værelse med masser af anvendelsesmuligheder – måske som hjemmekontor, gæsteværelse eller hobbyrum.
Udenfor venter en have, der næsten synes skabt til afslapning og glæde. Den varierede beplantning giver både charme og privatliv, drivhuset indbyder til at dyrke egne grøntsager, og græsplænen ligger smukt omgivet af hæk. På fliseterrassen kan I nyde solen og hinandens selskab, mens garagen fuldender det funktionelle udemiljø.
Kan I se jer selv skrive næste kapitel her – måske med ekstra fleksibilitet takket være flexboligen? Vent ikke – tag første skridt mod drømmeboligen i dag og book en fremvisning.
Økonomien i boligen
Skal Nykredit Bank ringe for en snak om din boligøkonomi?
Fortæl os, hvornår det passer dig, så ringer en rådgiver fra Nykredit Bank dig op til en uforpligtende snak om dine lånemuligheder. Så er du et skridt tættere på din nye bolig.
Vi bruger dine oplysninger til at forberede samtalen. Læs mere i Nykredit Banks privatlivspolitik
Kontakt

Kontakt
Mikkel Heramb
Skal du også sælge?
Kontakt os og få en gratis salgsvurdering, så ved du hvad din bolig er værd.
- Få et hurtigt estimat af salgspris eller en grundig vurdering.
- Få et indblik i, hvad din ejendom er værd på markedet lige nu.
- Find ud af, hvor meget du selv kan købe for, hvis du ønsker at skifte bolig.
Hvor langt er der til nærmeste?
Se hvor lang tid der er mellem denne bolig og en anden adresse
Fakta om Vordingborg Kommune
INDBYGGERE
GRUNDSKYLD
KOMMUNESKAT
SKOLER
BØRNEPASNING
Opret dig i køberkartoteket og få besked om lignende boliger.
Få direkte besked, når der kommer relevante nye boliger til salg, der matcher dine ønsker. Du ser også de boliger, vi får til salg, som vi ikke viser på Nybolig.dk.
Tilpas filtre og opret