Firelænget bygningssæt - med et væld af anvendelsesmuligheder
Velkommen til denne store ejendom med et væld af muligheder, beliggende i skønne landlige omgivelser på Midtlolland. Ejendommen består af et firelænget bygningssæt, der inkluderer hovedhus, garage, stald og lade samt en separat god ladebygning med støbt gulv.
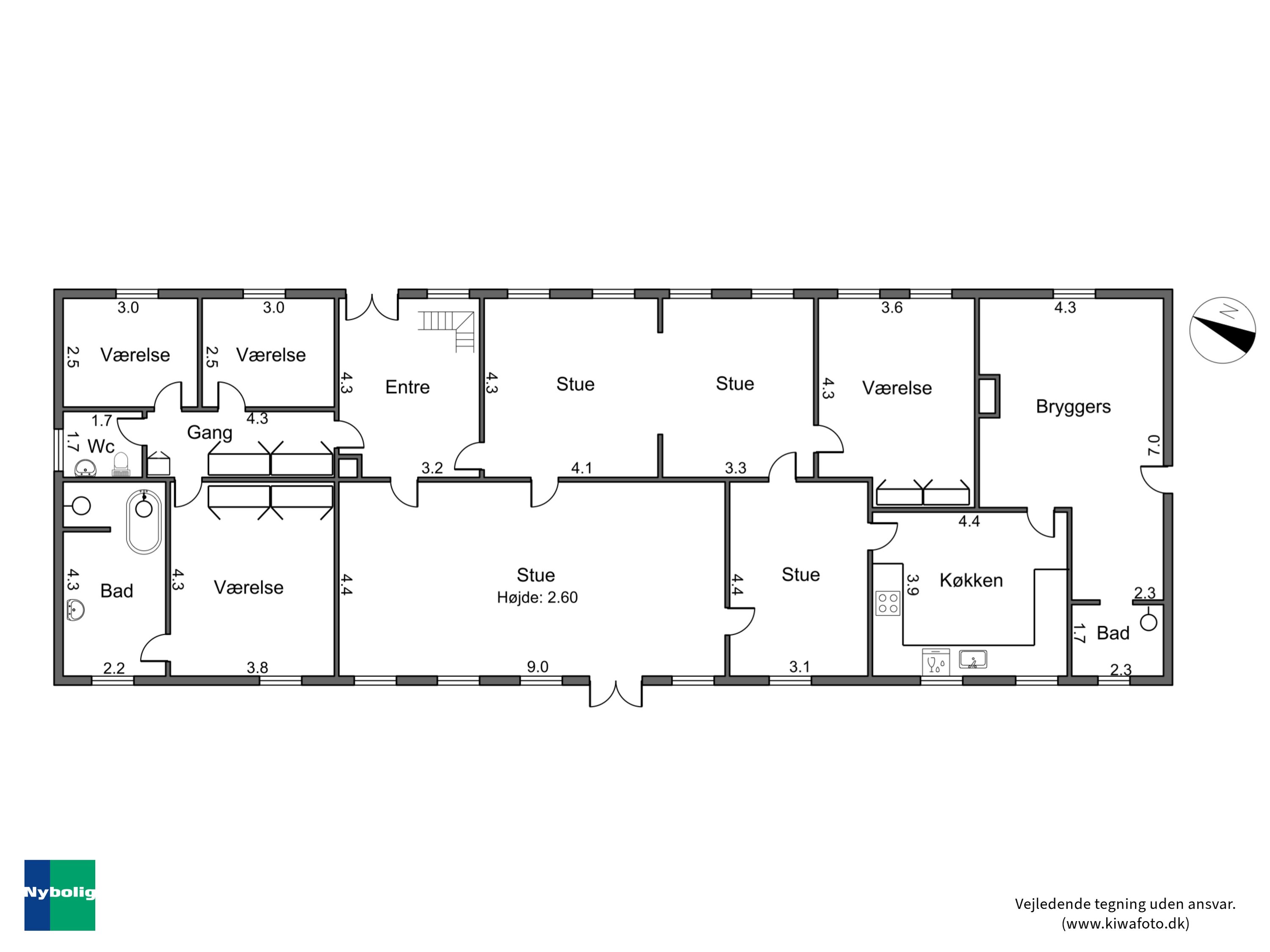
Hovedhuset har påbegyndt renovering, men mangler færdiggørelse enkelte steder, hvilket giver køber mulighed for at sætte sit eget præg på boligen.
Indeholder idag;bryggers, spisekøkken, spisestue, stor stue med udgang til haven, to stuer en-suite, entre med trappe til uudnyttet loft, 4 værelser, og badeværelse og ekstra toilet.
Ejendommen opvarmes med brænde-/træpillefyr, hvilket sikrer en økonomisk opvarmningsform.
Udearealer og beliggenhed; Med et samlet jordareal på hele 1,3 ha. får du masser af plads omkring dig. De naturskønne, rolige og ugenerte omgivelser skaber en ideel ramme for dem, der ønsker fred og privatliv. Der er rig mulighed for dyrehold, hobbylandbrug, værksted eller andre projekter.
Ejendommen er placeret med kort køreafstand til Rødby og Maribo, hvor der er gode indkøbsmuligheder, skoler, herunder International skole, gymnasium, sportshaller, golfbane med mere.
Denne ejendom henvender sig til køberen, der ønsker en rummelig bolig med mulighed for at sætte sit eget præg. Perfekt til familien, der drømmer om landlig idyl, til håndværkeren med store eller små ambitioner eller til dig, der søger et sted med masser af plads og potentiale i rolige omgivelser.
Kontakt os for en fremvisning og oplev ejendommens muligheder!
Der kan forventeligt opnås flexboligstatus ved konkret ansøgning.
#Lollandfalsterlovestorm
Økonomien i boligen
Skal Nykredit Bank ringe for en snak om din boligøkonomi?
Fortæl os, hvornår det passer dig, så ringer en rådgiver fra Nykredit Bank dig op til en uforpligtende snak om dine lånemuligheder. Så er du et skridt tættere på din nye bolig.
Vi bruger dine oplysninger til at forberede samtalen. Læs mere i Nykredit Banks privatlivspolitik
Kontakt

Kontakt
Frank Lynge
Skal du også sælge?
Kontakt os og få en gratis salgsvurdering, så ved du hvad din bolig er værd.
- Få et hurtigt estimat af salgspris eller en grundig vurdering.
- Få et indblik i, hvad din ejendom er værd på markedet lige nu.
- Find ud af, hvor meget du selv kan købe for, hvis du ønsker at skifte bolig.
Hvor langt er der til nærmeste?
Se hvor lang tid der er mellem denne bolig og en anden adresse
Fakta om Lolland Kommune
INDBYGGERE
GRUNDSKYLD
KOMMUNESKAT
SKOLER
BØRNEPASNING
Opret dig i køberkartoteket og få besked om lignende boliger.
Få direkte besked, når der kommer relevante nye boliger til salg, der matcher dine ønsker. Du ser også de boliger, vi får til salg, som vi ikke viser på Nybolig.dk.
Tilpas filtre og opret