Villa med plads, udsigt og natur – 9.582 m² grund med direkte adgang til mark, skov og natur
Denne villa på 172 m² er noget helt særligt: en hvidfacaderet bolig med brede vinduespartier, markant tagkonstruktion og store, lyse opholdsrum. Her får du masser af plads, lys og luft – både ude og inde.
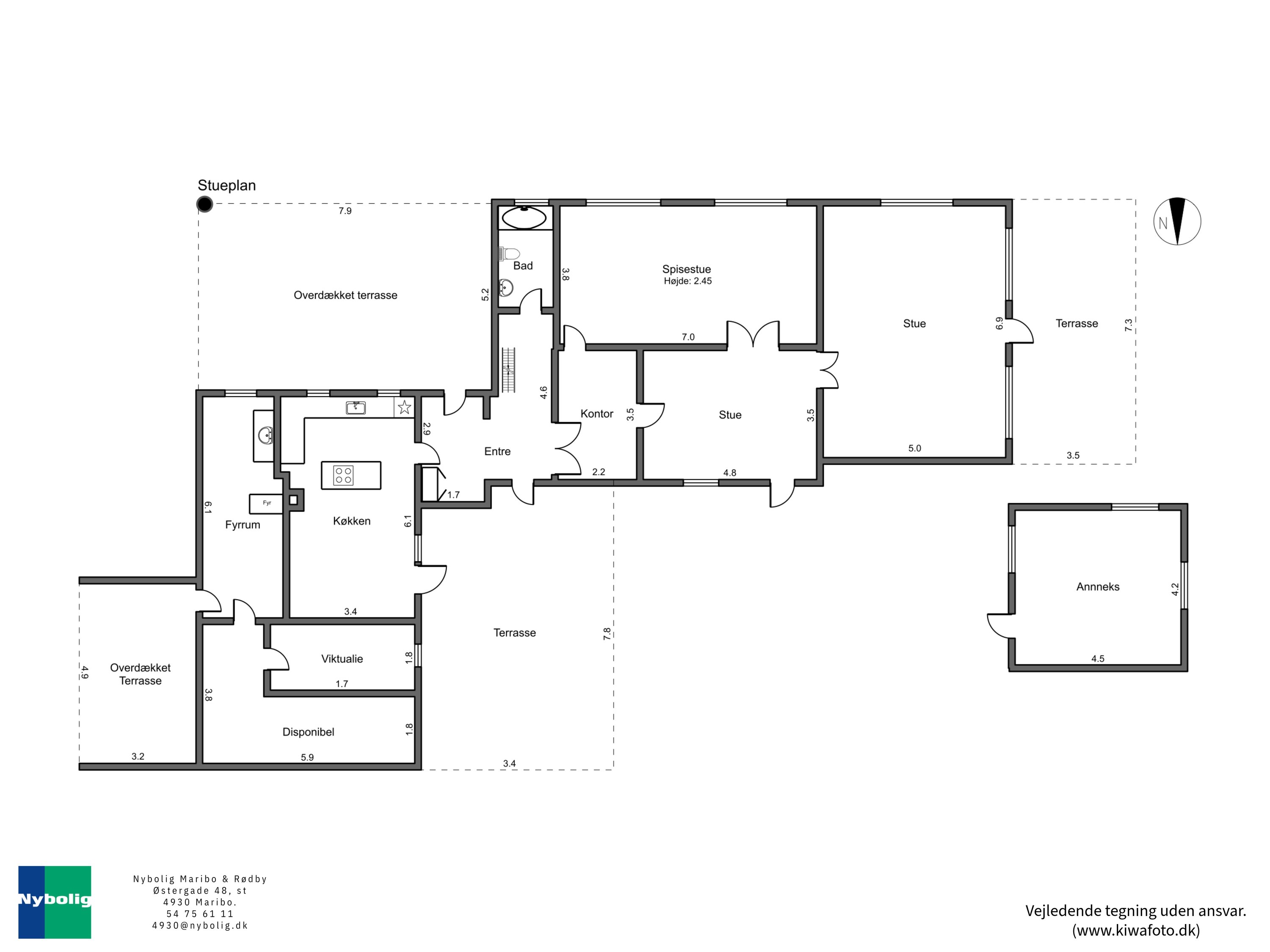
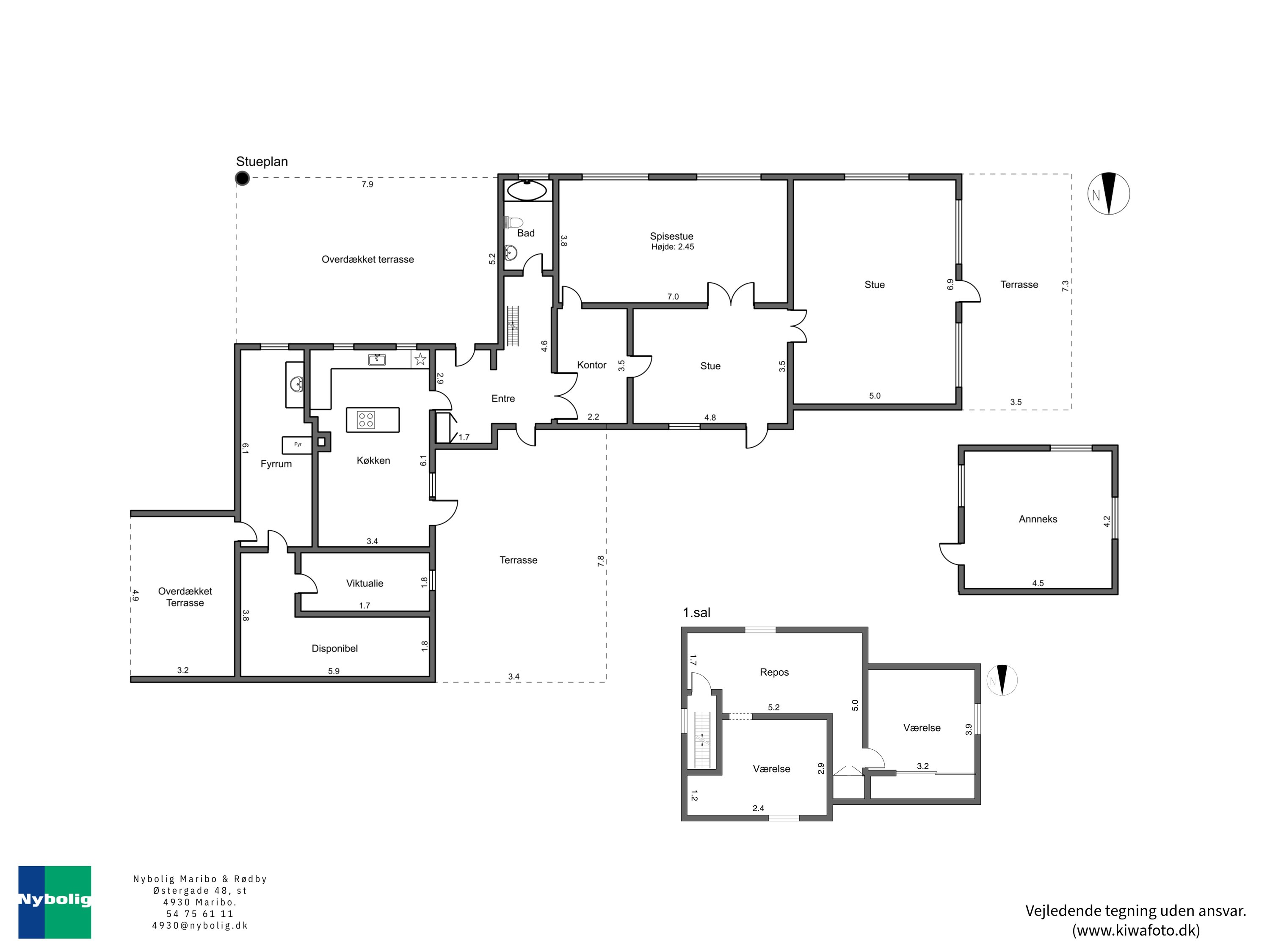
Boligen indeholder i stueplan en indbydende entré med trappe til første sal og adgang til et badeværelse med vask, toilet og badekar. En mellemgang, der også kan bruges som kontor, forbinder til spisestue/slyngelstue, tv-stue samt stor stue med store vinduespartier og flot lysindfald – herfra er der direkte udgang til terrassen.
Det lyse, rummelige og funktionelle spisekøkken har både køkkenø, arbejdsgang og god plads til hverdagens liv. Desuden findes disponibelt rum, viktualierum samt et stort bryggers og fyrrum med træpillefyr af typen Black Star og udgang til overdækket terrasse.
Første sal rummer værelser, repos samt et charmerende loftsrum med synlige bjælker og ovenlys.
Ejendommen er beliggende på en 9.582 m² stor grund med god afstand til naboer og udsigt over marker og skovkant. Her er plads til både køkkenhave, børneleg og hobbyprojekter.
En stor flisegårdhave forbinder til et selvstændigt anneks med godt soverum samt opbevaringsrum – perfekt til gæster eller ekstra opbevaring. Derudover carport, udhusplads, swimmingpool og en bagvedliggende stor dyrefold lige op til skoven.
Denne ejendom er ideel for den store familie, som to-generationshus eller som flexbolig – mulighederne er mange. Her får du super god plads ude som inde, fredelig beliggenhed og direkte adgang til naturen.
Der kan forventeligt opnås flexboligstatus ved konkret ansøgning.
#Lollandfalsterlovestorm
Økonomien i boligen
Skal Nykredit Bank ringe for en snak om din boligøkonomi?
Fortæl os, hvornår det passer dig, så ringer en rådgiver fra Nykredit Bank dig op til en uforpligtende snak om dine lånemuligheder. Så er du et skridt tættere på din nye bolig.
Vi bruger dine oplysninger til at forberede samtalen. Læs mere i Nykredit Banks privatlivspolitik
Kontakt

Kontakt
Frank Lynge
Skal du også sælge?
Kontakt os og få en gratis salgsvurdering, så ved du hvad din bolig er værd.
- Få et hurtigt estimat af salgspris eller en grundig vurdering.
- Få et indblik i, hvad din ejendom er værd på markedet lige nu.
- Find ud af, hvor meget du selv kan købe for, hvis du ønsker at skifte bolig.
Hvor langt er der til nærmeste?
Se hvor lang tid der er mellem denne bolig og en anden adresse
Fakta om Guldborgsund Kommune
INDBYGGERE
GRUNDSKYLD
KOMMUNESKAT
SKOLER
BØRNEPASNING
Opret dig i køberkartoteket og få besked om lignende boliger.
Få direkte besked, når der kommer relevante nye boliger til salg, der matcher dine ønsker. Du ser også de boliger, vi får til salg, som vi ikke viser på Nybolig.dk.
Tilpas filtre og opret