Rummelig ejendom – ideel til udlejning eller egen bolig
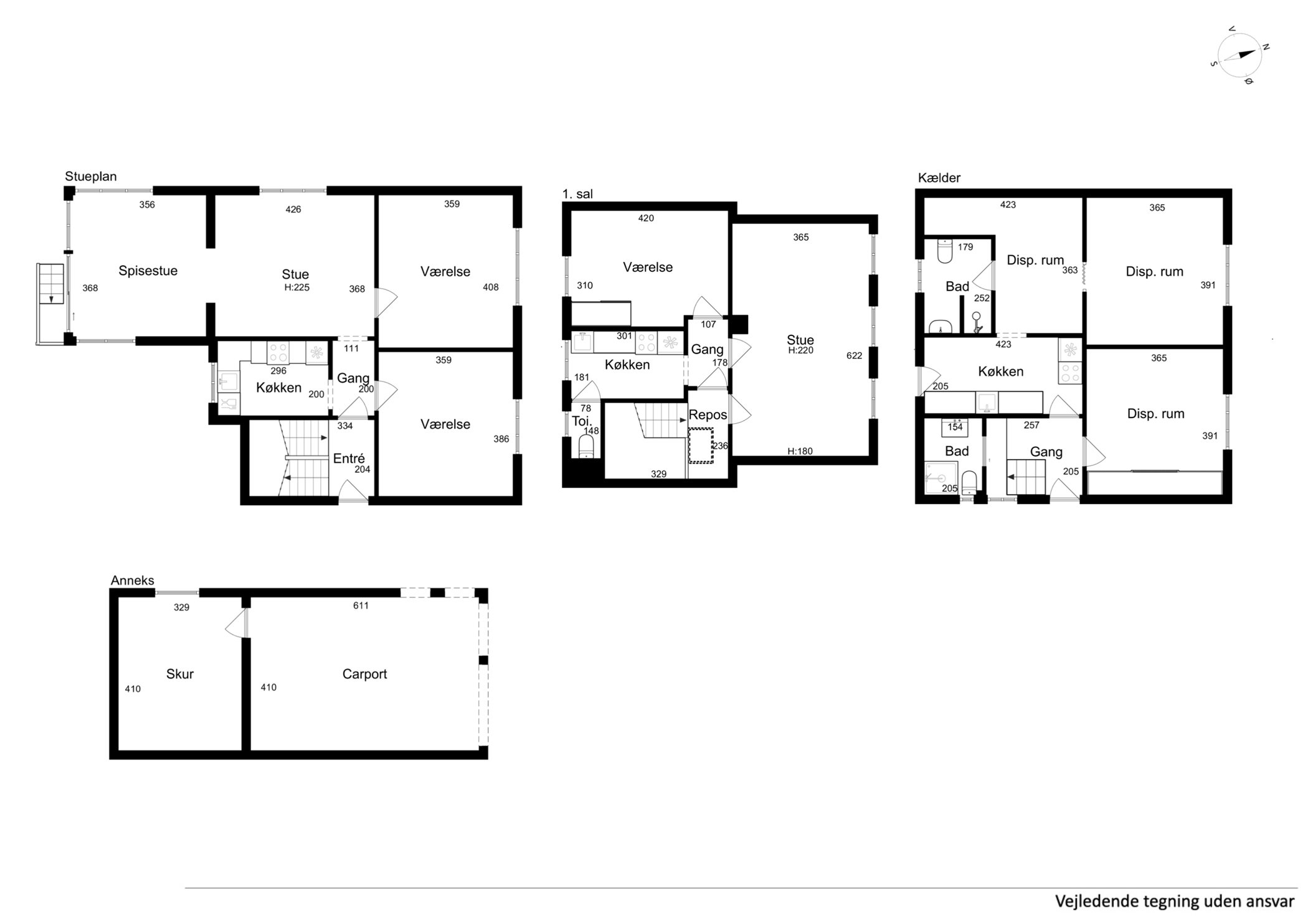
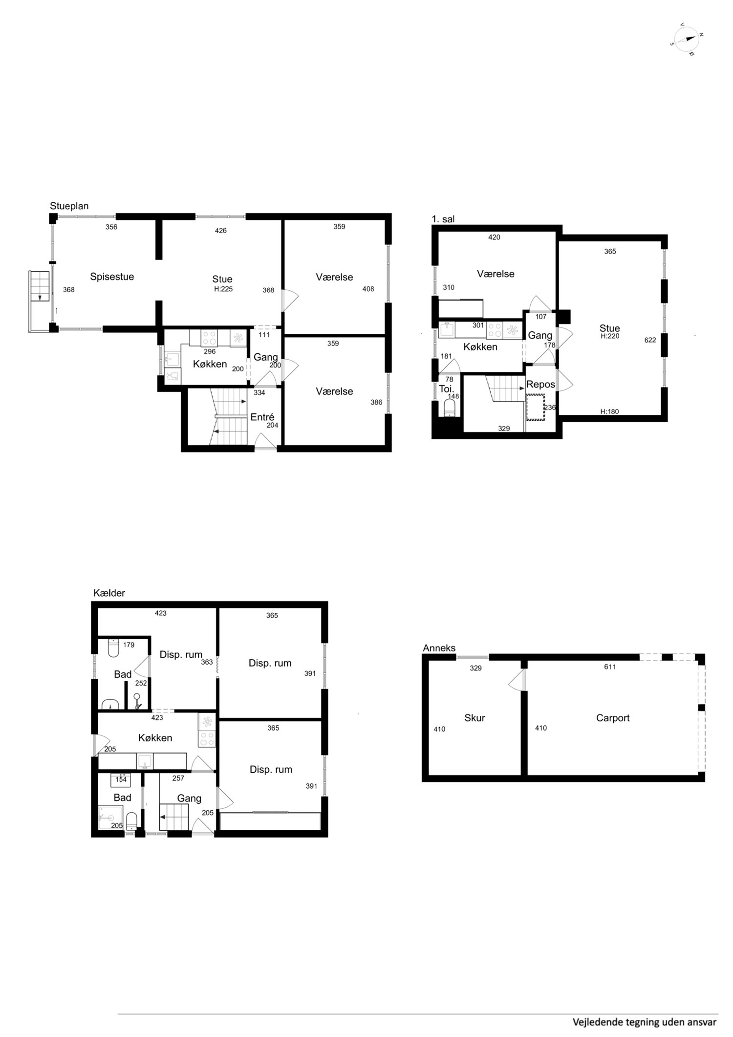
Villa på 150 m² fra 1931, moderniseret i 2001, placeret på en grund på 761 m² med indkørsel og carport med indbygget udhus. Facaden i gul mursten og rødt tegltag giver huset en tydelig karakter, mens den lange have og hækken omkring grunden sikrer privatliv.
Ejendommen fremstår i dag indrettet som tre selvstændige lejemål, hvilket giver en attraktiv mulighed for investorer eller købere, der ønsker en ejendom til hel eller delvis udlejning. Alternativt kan ejendommen relativt enkelt ændres tilbage til én rummelig familievilla, hvis det ønskes.
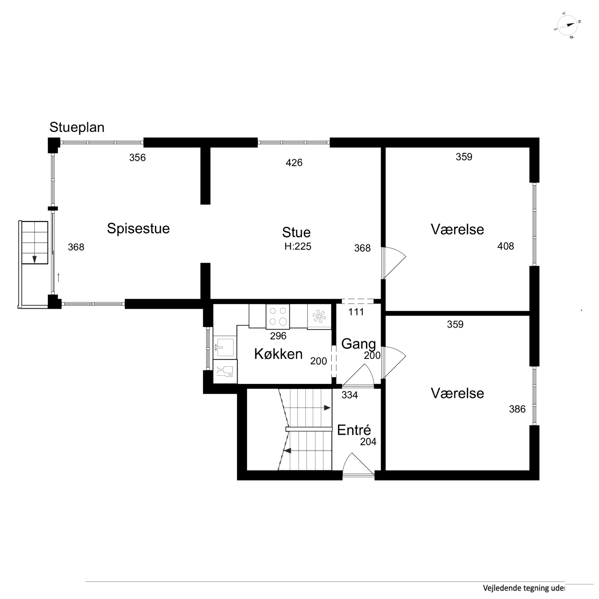
Indretningen er funktionel med i alt 6 rum fordelt på flere opholdsafdelinger: 3 stuer og 3 soveværelser samt 2 badeværelser, hvilket giver fleksible anvendelsesmuligheder – både til udlejning eller familiebolig. Store vinduer lader dagslyset strømme ind, og de originale trægulve løber gennem flere rum. Planløsningen byder på både samlingsrum og mere private afdelinger, og kælderen på 77 m² supplerer med disponibelt areal og ekstra køkkenfaciliteter – ideelt til opbevaring eller som del af et separat lejemål.
Udearealerne rummer en stor, privat have med plads til leg, beplantning og ophold samt en rummelig, belagt terrasse ved husets bagparti. Der er endvidere et tilbygget, glaseret rum/udestue mod haven, som skaber en naturlig overgang mellem inde og ude. Carporten med indbygget udhus giver praktisk opbevaringsmulighed, hvilket gør hverdagens logistik enkel for både ejer og eventuelle lejere.
Kvarteret fremstår som et etableret boligområde med rolige villaveje og grønne omgivelser; her er kort afstand til lokale faciliteter som indkøb, skole og fritidsmuligheder, så hverdagen fungerer ubesværet – både for familier og lejere. Huset er vedligeholdt, men giver også mulighed for opdatering efter personlig smag eller som led i en investeringsstrategi, hvilket gør det attraktivt for købere, der ønsker både afkast og potentiale i et stabilt boligområde.
Samlet får du en ejendom på 150 m² med kælder på 77 m², tre selvstændige boligenheder, carport/udhus og en stor, privat grund på 761 m² – en ejendom med attraktive udlejningsmuligheder og fleksibel anvendelse. Uanset om du søger en investeringscase eller et hjem med mulighed for delvis udlejning, bør denne ejendom opleves. Kontakt ejendomsmægler for en fremvisning og hør mere om mulighederne.
Økonomien i boligen
Skal Nykredit Bank ringe for en snak om din boligøkonomi?
Fortæl os, hvornår det passer dig, så ringer en rådgiver fra Nykredit Bank dig op til en uforpligtende snak om dine lånemuligheder. Så er du et skridt tættere på din nye bolig.
Vi bruger dine oplysninger til at forberede samtalen. Læs mere i Nykredit Banks privatlivspolitik
Kontakt
 
                Kontakt
Bahadir Demirhan
Skal du også sælge?
Kontakt os og få en gratis salgsvurdering, så ved du hvad din bolig er værd.
- Få et hurtigt estimat af salgspris eller en grundig vurdering.
- Få et indblik i, hvad din ejendom er værd på markedet lige nu.
- Find ud af, hvor meget du selv kan købe for, hvis du ønsker at skifte bolig.
Hvor langt er der til nærmeste?
Se hvor lang tid der er mellem denne bolig og en anden adresse
Fakta om Odense Kommune
INDBYGGERE
GRUNDSKYLD
KOMMUNESKAT
SKOLER
BØRNEPASNING
Opret dig i køberkartoteket og få besked om lignende boliger.
Få direkte besked, når der kommer relevante nye boliger til salg, der matcher dine ønsker. Du ser også de boliger, vi får til salg, som vi ikke viser på Nybolig.dk.
Tilpas filtre og opret