Herskabelig og indflytningsklar villa
Velkommen til Østergade 14, hvor dette smukke og herskabelige hus står klar til nye ejere.
Huset står nemlig klar til at imponere dig med sin unikke kombination af historisk charme, herskabelighed og moderne komfort, med flotte store rum med højt til loftet.
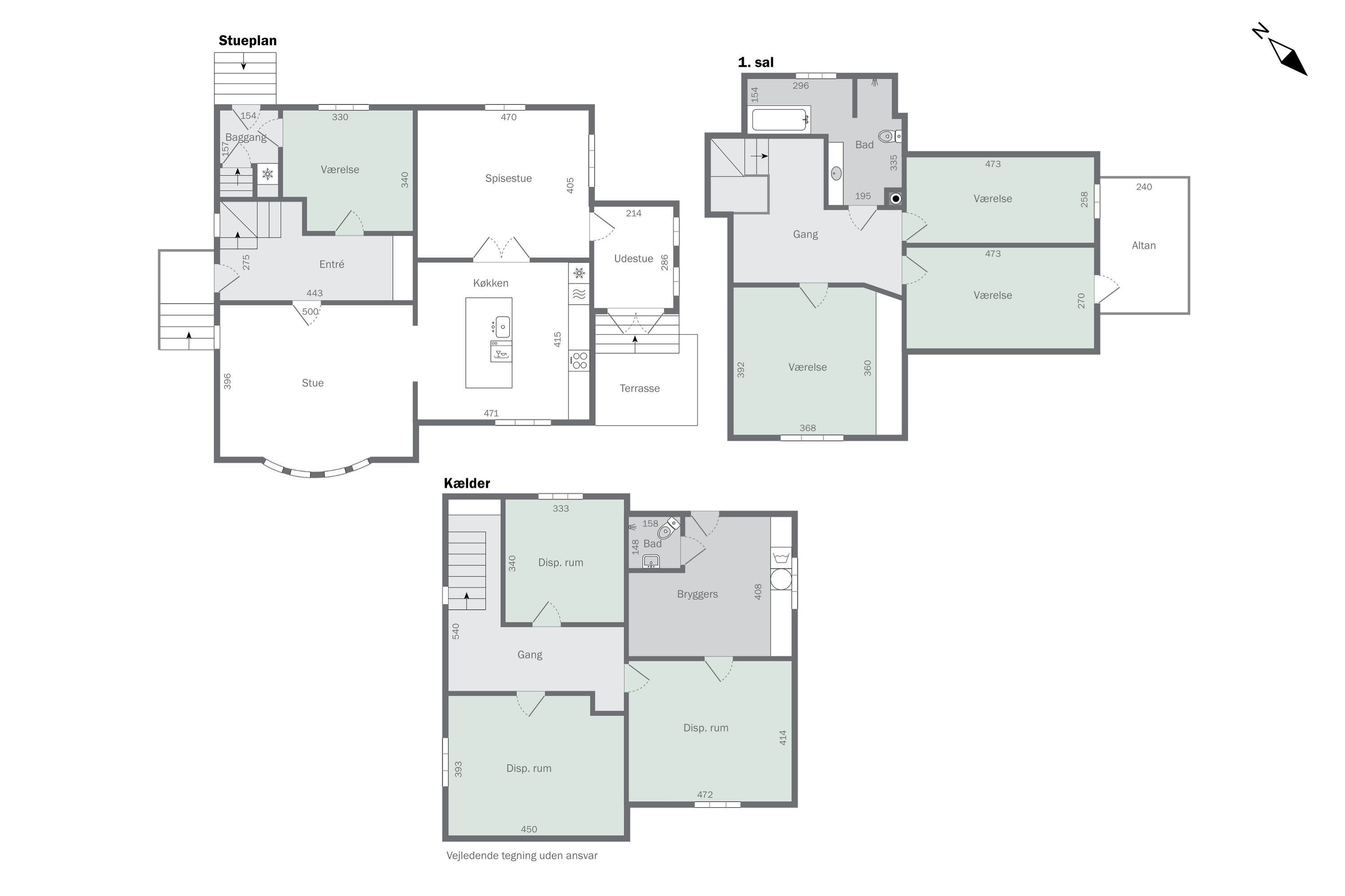
Døren åbnes og boligen byder velkommen indenfor i den flotte entré - det er herfra boligeventyret starter. Fra entré er der adgang til et værelse, opgang til 1. sal samt nedgang til kælder. Derudover er der adgang til den store lyse stue som er i forlængelse af køkkenet. I forbindelse med køkken findes spisestue, hvorfra der er udgang til en lille fin udestue som fører ud til en dejlig terrasse.
På førstesalen findes 3 gode værelser i en fin størrelse samt husets ene badeværelse.
Derudover findes der en god kælder med et badeværelse samt fine disponible rum til opbevaring, hobby, kontor, eller hvad hjertet nu begærer.
Udenfor får man med adresse på Østergade 14 en dejlig nem have, hurtig adgang til boldbanerne samt en rigtig fin garage, hvor det kun er fantasien der sætter grænser.
Østergade 14 er beliggende i hjertet af Særslev, tæt på både natur og hverdagens nødvendigheder, om end det er skole eller dagligvarer indkøb. Her vil du hurtigt føle dig hjemme i dette indbydende og stilfulde hus, hvor der er plads til både afslapning og udfoldelse.
Klart en ejendom som skal ses og opleves! Kontakt os allerede i dag for en fremvisning på tlf.: 6482 1634
Økonomien i boligen
Skal Nykredit Bank ringe for en snak om din boligøkonomi?
Fortæl os, hvornår det passer dig, så ringer en rådgiver fra Nykredit Bank dig op til en uforpligtende snak om dine lånemuligheder. Så er du et skridt tættere på din nye bolig.
Vi bruger dine oplysninger til at forberede samtalen. Læs mere i Nykredit Banks privatlivspolitik
Kontakt

Kontakt
Simone Hansen
Skal du også sælge?
Kontakt os og få en gratis salgsvurdering, så ved du hvad din bolig er værd.
- Få et hurtigt estimat af salgspris eller en grundig vurdering.
- Få et indblik i, hvad din ejendom er værd på markedet lige nu.
- Find ud af, hvor meget du selv kan købe for, hvis du ønsker at skifte bolig.
Hvor langt er der til nærmeste?
Se hvor lang tid der er mellem denne bolig og en anden adresse
Fakta om Nordfyns Kommune
INDBYGGERE
GRUNDSKYLD
KOMMUNESKAT
SKOLER
BØRNEPASNING
Opret dig i køberkartoteket og få besked om lignende boliger.
Få direkte besked, når der kommer relevante nye boliger til salg, der matcher dine ønsker. Du ser også de boliger, vi får til salg, som vi ikke viser på Nybolig.dk.
Tilpas filtre og opret