Bindingsværksidyl med moderne komfort og haveidyl på Kirkeballe 12.
Velkommen til Kirkeballe 12 – et helt særligt dobbelthus med mulighed for fleksbolig, hvor klassisk bindingsværk og stråtækt tag møder moderne komfort.
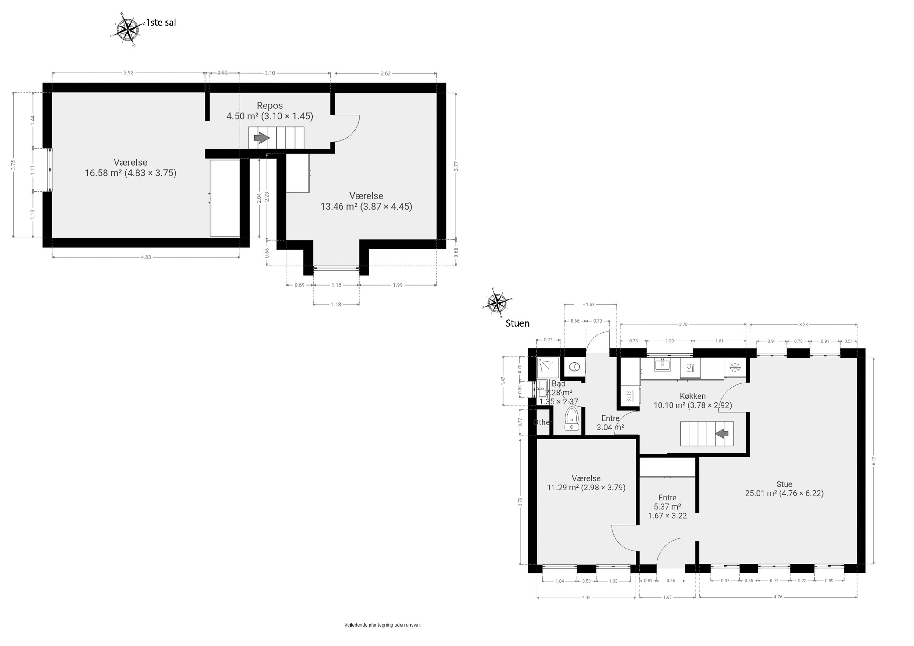
Huset er smukt renoveret og indrettet med fokus på lys, luft og hygge. Indenfor bydes du velkommen af en skøn, åben stue, hvor lyset strømmer ind og skaber en varm atmosfære. Køkkenet er både charmerende og praktisk – herfra har du udsigt til haven, så madlavningen kan nydes med grønne omgivelser i baggrunden. På førstesalen finder du et ekstra plus: Fra de rette vinkler kan man ane vandet i horisonten. Her er der repos samt to gode værelser.
Haven er et kapitel for sig. Her er plads til afslapning, leg og udeliv – med mulighed for at nyde havestuen eller de mange hyggelige kroge. Som noget ganske særligt grænser haven op til åbne marker med køer, der giver en unik landlig idyl og charmerende selskab året rundt.
Beliggenheden byder på et rart og trygt nabolag, hvor man hurtigt føler sig hjemme.
Kort sagt: Et hus med sjæl, charme og moderne komfort – klar til at danne rammen om nye minder.
Økonomien i boligen
Skal Nykredit Bank ringe for en snak om din boligøkonomi?
Fortæl os, hvornår det passer dig, så ringer en rådgiver fra Nykredit Bank dig op til en uforpligtende snak om dine lånemuligheder. Så er du et skridt tættere på din nye bolig.
Vi bruger dine oplysninger til at forberede samtalen. Læs mere i Nykredit Banks privatlivspolitik
Kontakt

Kontakt
Martin Madsen
Skal du også sælge?
Kontakt os og få en gratis salgsvurdering, så ved du hvad din bolig er værd.
- Få et hurtigt estimat af salgspris eller en grundig vurdering.
- Få et indblik i, hvad din ejendom er værd på markedet lige nu.
- Find ud af, hvor meget du selv kan købe for, hvis du ønsker at skifte bolig.
Hvor langt er der til nærmeste?
Se hvor lang tid der er mellem denne bolig og en anden adresse
Fakta om Faaborg-Midtfyn Kommune
INDBYGGERE
GRUNDSKYLD
KOMMUNESKAT
SKOLER
BØRNEPASNING
Opret dig i køberkartoteket og få besked om lignende boliger.
Få direkte besked, når der kommer relevante nye boliger til salg, der matcher dine ønsker. Du ser også de boliger, vi får til salg, som vi ikke viser på Nybolig.dk.
Tilpas filtre og opret