Sydfynsk bondeidyl når det er bedst, med idylliske omgivelser og smuk udsigt - mulighed for Flexbolig.
Hvis I drømmer om nye rammer til familielivet, hvor tilværelsen kan nydes i de mest idylliske omgivelser, så er I kommet til det helt rette sted her i Bjerne. Dertil har I stadig indkøb, daginstitution og skole i kort afstand. Huset er smukt placeret ud til åbne marker, hvilket skaber en hyggelig atmosfære, når I opholder jer udendørs. Trumfen er uden tvivl den fortryllende udsigt til de bugtende marker, skovbrynet og Hvedholm Slot.
Landskabet fremstår som et evigt foranderligt maleri, der kun bliver mere eventyrligt i takt med, at årstiderne skifter - og så kan I endda følge med fra køkkenvinduet. Der er masser af solskinstimer i vente, da I foruden den charmerende gårdhave også kan se frem til haven, hvor børnene kan muntre sig med leg og boldspil. Der er desuden flere terrasser at vælge mellem, når I vil nyde en læskende drik under åben himmel. Som prikken over i'et har I masser af privatliv.
"Er du dus med himlens fugle og skovens grønne træer, så har du fundet ind til det, som gør livet allermest værd" - sang den kære Poul Reichhardt, da han stod på et romantisk Morten Korch bondeidyl i "Vagabonderne på Bakkegården" tilbage i 1958 - og det kunne lige så godt være sket på Sinebjergvej 9! Her får I muligheden for at bo og leve i en ganske fantastiske ejendom!
Dette velbevarede stråtækte bondehus, emmer af fortællinger fra en anden tid og er blevet nænsomt renoveret, uden at gå på kompromis med den oprindelige stil. Her er muligheden for at bo og leve i noget helt særligt, med den sydfynske natur som nærmeste nabo! Omgivelserne og rammen mere end bare praktik, for her er atmosfæren i hus og have i højsædet. Her er tale om en dejlig plet,
hvor natur, nærhed til byliv, nem adgang til stranden og en yderst charmerende ejendom supplerer hinanden på den bedst tænkelige måde. Her er de bedste muligheder for at dyrke friluftslivet i den sydfynske natur, og stedet rummer mulighed for kreativ udfoldelse, ude som inde.
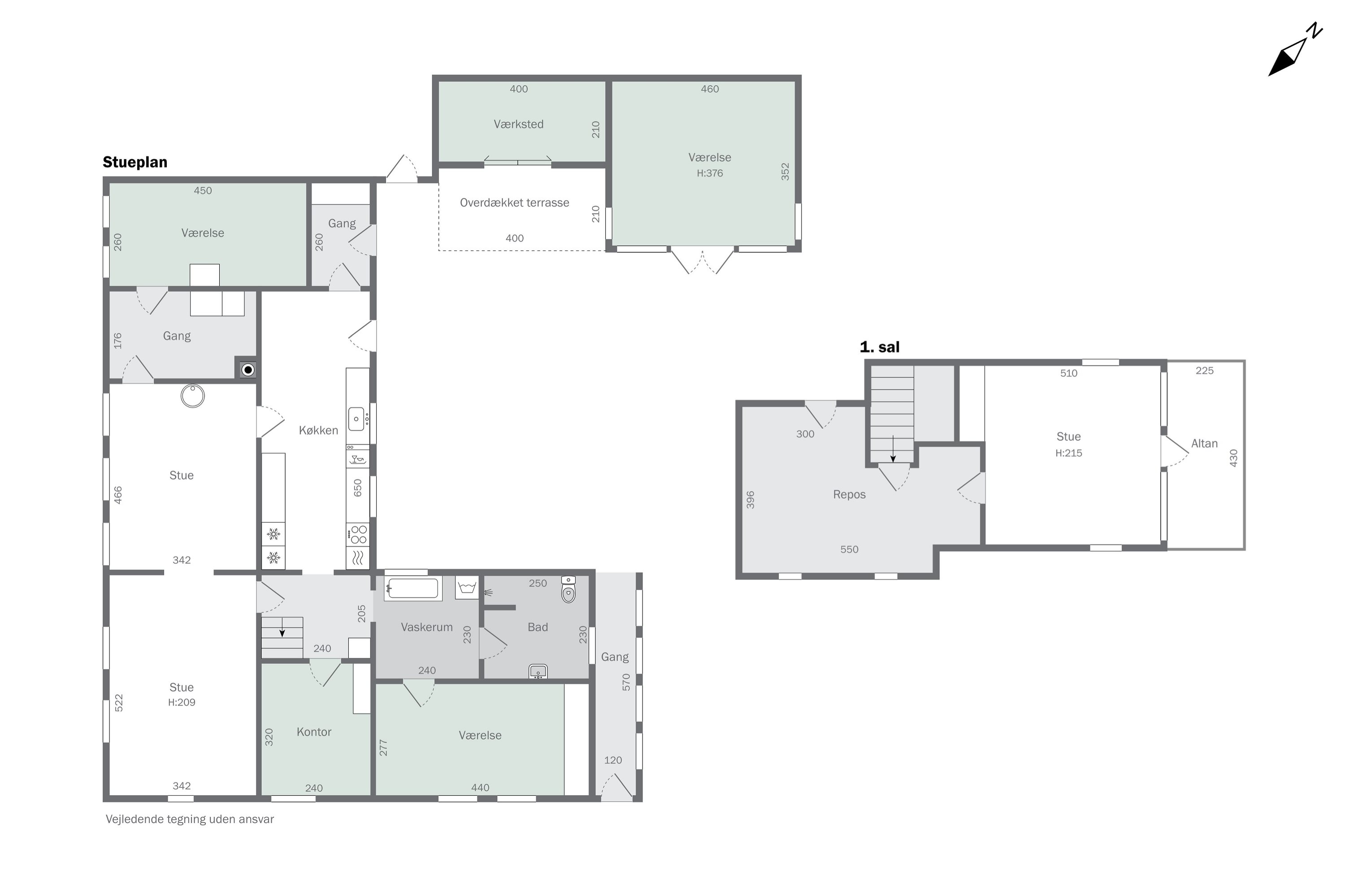
Boligen er siden 2005 løbende renoveret og præsenterer sig med en hvid murstensfacade og et nostalgisk stråtag fra 2018. Hjemmekokken kan glæde sig til at udfolde sine kulinariske evner i det hvide, tosidede fyrretræskøkken. Som en lækker detalje er der også gulvvarme, som fortsætter ind i de to stuer en suite, hvoraf den ene har en stemningsskabende brændeovn. På denne etage
finder I også tre værelser samt et badeværelse i forlængelse med et rum med badekar. Endelig er der førstesalen, som råder over værelse og en stue med en stor lækker altan, hvorfra der er trappe direkte ned til haven. I 2005 blev der desuden opført et havehus med mange anvendelsesmuligheder. Udover det findes der to gode værksteder, samt dobbelt carport.
Kontakt os allerede i dag for en fremvisning.
Økonomien i boligen
Skal Nykredit Bank ringe for en snak om din boligøkonomi?
Fortæl os, hvornår det passer dig, så ringer en rådgiver fra Nykredit Bank dig op til en uforpligtende snak om dine lånemuligheder. Så er du et skridt tættere på din nye bolig.
Vi bruger dine oplysninger til at forberede samtalen. Læs mere i Nykredit Banks privatlivspolitik
Kontakt

Kontakt
Martin Madsen
Skal du også sælge?
Kontakt os og få en gratis salgsvurdering, så ved du hvad din bolig er værd.
- Få et hurtigt estimat af salgspris eller en grundig vurdering.
- Få et indblik i, hvad din ejendom er værd på markedet lige nu.
- Find ud af, hvor meget du selv kan købe for, hvis du ønsker at skifte bolig.
Hvor langt er der til nærmeste?
Se hvor lang tid der er mellem denne bolig og en anden adresse
Fakta om Faaborg-Midtfyn Kommune
INDBYGGERE
GRUNDSKYLD
KOMMUNESKAT
SKOLER
BØRNEPASNING
Opret dig i køberkartoteket og få besked om lignende boliger.
Få direkte besked, når der kommer relevante nye boliger til salg, der matcher dine ønsker. Du ser også de boliger, vi får til salg, som vi ikke viser på Nybolig.dk.
Tilpas filtre og opret