Fakta om boligen
Villa
2.495.000
Boligareal:
151 m²
Stue/Værelser:
2/4
Plan:
3 plan
Bygget/Ombygget:
1882/2003
Grundstørrelse:
778 m²
Energimærke:
Assensvej 491, Faldsled – total istandsat villa med rummeligt værksted og strand, natur og gastronomi lige uden for døren.
Drømmer du om at bo i en charmerende landsby, hvor både natur, hav og kultur er en del af hverdagen? Så byder Assensvej 491 i hjertet af Faldsled på noget ganske særligt.
Unik bolig med sjæl
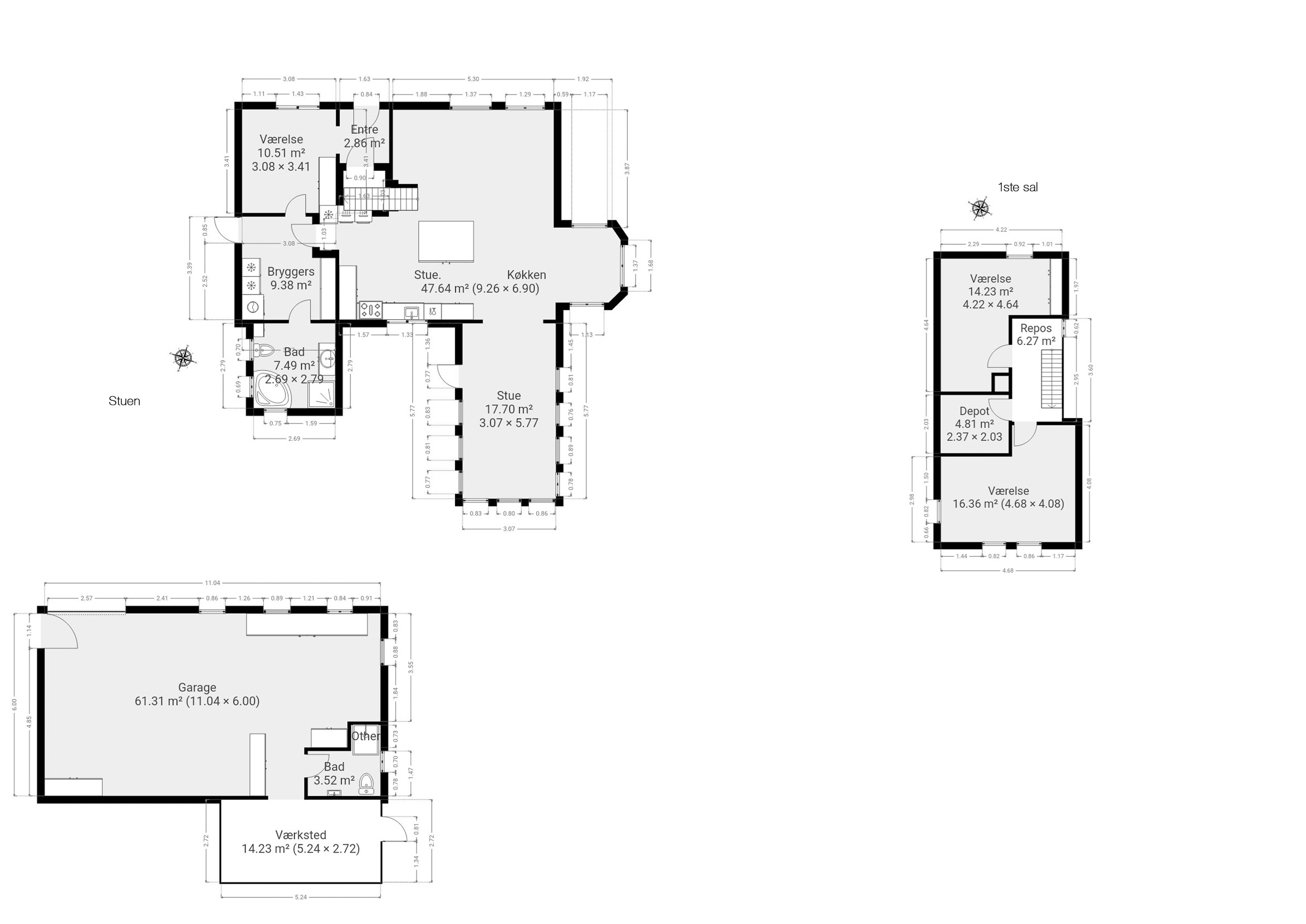
Denne totalrenoverede villa fra 2003 fremstår i dag som en harmonisk blanding af klassisk charme og moderne komfort – en bolig i “gamle klæder”, men med alle nutidens bekvemmeligheder. Med 151 m² fordelt på stueplan og første sal, får du rigeligt med plads til hele familien.Stueetagen rummer bl.a. et lækkert, opdateret badeværelse med både badekar og bruseniche, stort bryggers og et indbydende, åbent køkken-alrum i grebsfrit design. Her strømmer lyset ind gennem karnap og store vinduespartier, og den smukke stue byder på masser af plads samt udgang til et privat og hyggeligt gårdhavemiljø. Herudover findes et rummeligt soveværelse samt entré. På første sal ligger to gode værelser, repos og depotrum.
Det perfekte værksted til dig med behov for plads
Et stort trækplaster ved ejendommen er det særdeles rummelige og solide murede værksted, som fremstår i rigtig god stand. Med stor port, egen indgang og toilet, er det oplagt til håndværk, værkstedsdrift, hobbyprojekter, atelier, garage eller mindre erhverv. Her er det kun fantasien, der sætter grænser.Faldsled – Sydfyn når det er bedst
Faldsled er en af Sydfyns mest eftertragtede perler – en landsby fuld af atmosfære og med en sjælden balance mellem natur, livskvalitet og nærhed til større byer.- 65 meter fra din hoveddør finder du Faldsled Strandpark, med grønne arealer, sauna, badebro og god, børnevenlig strand – ideelt til både vinterbadere og sommerliv.
- Naturen er lige uden for døren – med korte afstande til både skovområder, stier og ikke mindst Svanninge Bakker og Svanninge Bjerge, et af Danmarks smukkeste og mest kuperede naturområder med vandreruter, MTB-spor og vid udsigt over det Sydfynske Øhav.
- Faaborg by, med hyggelige gader, indkøbsmuligheder, marina, kunsthåndværk og kulturelle oplevelser, ligger kun ca. 10 minutters kørsel væk.
- Spisesteder i Faldsled tæller blandt andet den anerkendte Falsled Kro, kendt i hele landet for sin gastronomi i verdensklasse. Derudover findes hyggelige caféer, gårdbutikker og lokale producenter i nærområdet.
Kontakt os allerede i dag – og lad os byde dig velkommen til Faldsled.
Gode grunde til at købe boligen
1
Istandsat og unik bolig med sjæl
2
Det perfekte værksted til dig med behov for plads
3
Faldsled – Sydfyn når det er bedst
Økonomien i boligen
Kontantpris
2.495.000
Ejerudgift pr. md.
1.359
Udbetaling
125.000
Brutto ekskl. ejerudgift
13.291
Netto ekskl. ejerudgift
10.680
Skal Nykredit Bank ringe for en snak om din boligøkonomi?
Fortæl os, hvornår det passer dig, så ringer en rådgiver fra Nykredit Bank dig op til en uforpligtende snak om dine lånemuligheder. Så er du et skridt tættere på din nye bolig.
Passer tidspunktet alligevel ikke? Ring til Nykredit Bank på 70 10 90 00, så finder vi en ny tid.
Vi bruger dine oplysninger til at forberede samtalen. Læs mere i Nykredit Banks privatlivspolitik
Vi bruger dine oplysninger til at forberede samtalen. Læs mere i Nykredit Banks privatlivspolitik
Kontakt

Kontakt
Martin Madsen
Indehaver , Ejendomsmægler MDE, KøberRådgiver m/Tryghedsmærke
Skal du også sælge?
Kontakt os og få en gratis salgsvurdering, så ved du hvad din bolig er værd.
- Få et hurtigt estimat af salgspris eller en grundig vurdering.
- Få et indblik i, hvad din ejendom er værd på markedet lige nu.
- Find ud af, hvor meget du selv kan købe for, hvis du ønsker at skifte bolig.
Hvor langt er der til nærmeste?
Afstand til nærmeste
Transport:
35 m
Indkøb:
3,88 km
Daginstitution:
2,93 km
Skole:
3,82 km
Sport og fritid:
167 m
Sundhed:
7,94 km
Ladestandere:
323 m
Lynladere:
8,32 km
Rejsetid
Se hvor lang tid der er mellem denne bolig og en anden adresse
I bil:
- min
På cykel:
- min
Med offentlig transport:
- min
Fakta om Faaborg-Midtfyn Kommune
INDBYGGERE
52.284
GRUNDSKYLD
8,500‰
KOMMUNESKAT
26,10%
SKOLER
9
BØRNEPASNING
Vuggestue 3.767 kr./md.
Børnehave 2.245 kr./md.
Opret dig i køberkartoteket og få besked om lignende boliger.
Få direkte besked, når der kommer relevante nye boliger til salg, der matcher dine ønsker. Du ser også de boliger, vi får til salg, som vi ikke viser på Nybolig.dk.
Tilpas filtre og opret