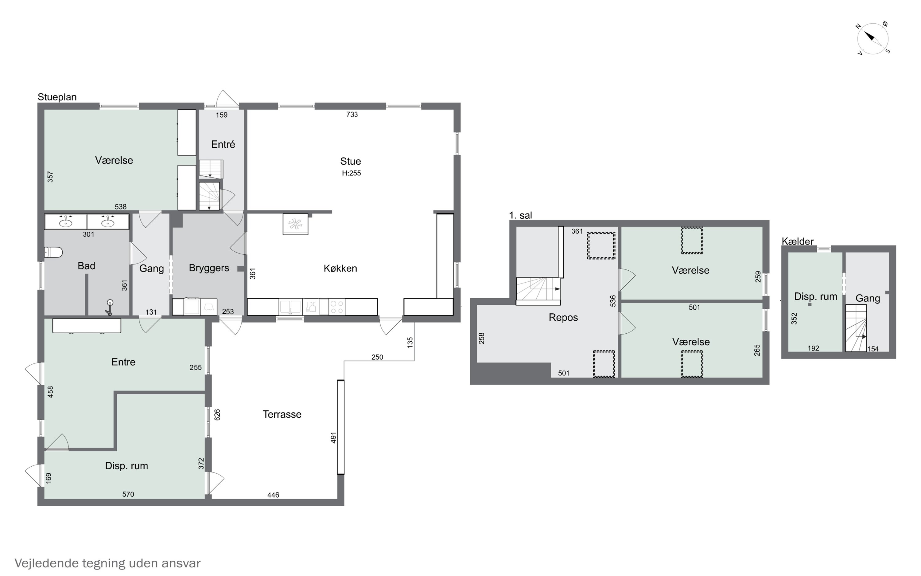
Romantisk villa med moderne indretning
Velkommen til denne charmerende villa fra 1902, der med sin moderne komfort skaber en indbydende atmosfære. Med 202m² fordelt på fem værelser og ét badeværelse, er dette hjem ideelt for familien, der ønsker plads til både samvær og privatliv. Der er desuden gjort klar til etablering af endnu et badeværelse og et ekstra værelse på førstesalen. Den rummelige indretning giver mulighed for at skabe hyggelige stunder, hvor der er plads til leg, afslapning og gode minder.
Indbydende opholdsrum
Når du træder ind i boligen, mødes du af et lyst og åbent opholdsområde, hvor det varme lys strømmer ind gennem de store vinduer. Stuen og køkkenet er i åben forbindelse, hvilket skaber en naturlig sammenhæng og gør det nemt at holde øje med børnene, mens du laver mad. Det moderne køkken i landlig stil er udstyret med eksklusive materialer og praktiske løsninger, der gør madlavningen til en fornøjelse. Her kan du nyde morgenkaffen med udsigt til haven, der indbyder til udendørsliv.
Opdateringer og udeområder
Denne villa har gennemgået betydelige opdateringer, der sikrer en moderne og energieffektiv bolig. Nyt tag er blevet lagt i 2023, og i 2025 blev der installeret træ/alu 3-lags energiruder, som ikke blot er energibesparende, men også lyddæmpende.
Villaens særlige fordele inkluderer også en sydvestvendt terrasse, hvor du kan nyde solens stråler, samt en velholdt have, der giver mulighed for leg og afslapning. Den frodige have er perfekt til børneleg og tilbyder privatliv, så du kan nyde de lune sommeraftener i fred. De mange rum giver mulighed for tilpasning, så du kan indrette dit hjem præcis, som du ønsker det.
Beliggenhed og muligheder
Huset ligger i Ringe, en ideel beliggenhed med kort afstand til grønne områder og byliv. Nærområdet byder på skoler, indkøbsmuligheder og fritidsfaciliteter, hvilket gør hverdagen nem og bekvem. Den tætte placering på motorvejen sikrer desuden hurtig adgang til resten af Fyn. Du vil hurtigt finde dig til rette i dette familievenlige kvarter, hvor der er plads til både leg og ro.Denne villa er ikke bare et hus, men et hjem, hvor livskvalitet og hygge går hånd i hånd. Gå ikke glip af muligheden for at opleve denne skønne bolig. Bestil din fremvisning i dag, og lad dig inspirere af de mange muligheder, der venter på dig her.
Økonomien i boligen
Skal Nykredit Bank ringe for en snak om din boligøkonomi?
Fortæl os, hvornår det passer dig, så ringer en rådgiver fra Nykredit Bank dig op til en uforpligtende snak om dine lånemuligheder. Så er du et skridt tættere på din nye bolig.
Vi bruger dine oplysninger til at forberede samtalen. Læs mere i Nykredit Banks privatlivspolitik
Kontakt

Kontakt
Anne Clausen
Skal du også sælge?
Kontakt os og få en gratis salgsvurdering, så ved du hvad din bolig er værd.
- Få et hurtigt estimat af salgspris eller en grundig vurdering.
- Få et indblik i, hvad din ejendom er værd på markedet lige nu.
- Find ud af, hvor meget du selv kan købe for, hvis du ønsker at skifte bolig.
Hvor langt er der til nærmeste?
Se hvor lang tid der er mellem denne bolig og en anden adresse
Fakta om Faaborg-Midtfyn Kommune
INDBYGGERE
GRUNDSKYLD
KOMMUNESKAT
SKOLER
BØRNEPASNING
Opret dig i køberkartoteket og få besked om lignende boliger.
Få direkte besked, når der kommer relevante nye boliger til salg, der matcher dine ønsker. Du ser også de boliger, vi får til salg, som vi ikke viser på Nybolig.dk.
Tilpas filtre og opret