KØB INDEN D. 01.12.2025 OG FÅ KR. 75.000,00 I RABAT!
HELÅR/FRITID - Velkommen til Bagenkop og til denne indflytningsklare 1-plans villa på Bakkevej 3.
I Bagenkop finder du på Sydlangeland og er en særdeles aktiv by med dagligvarebutik, fiskehandel, strand og havnemiljø, fællesskabspark, kro og meget, meget mere.
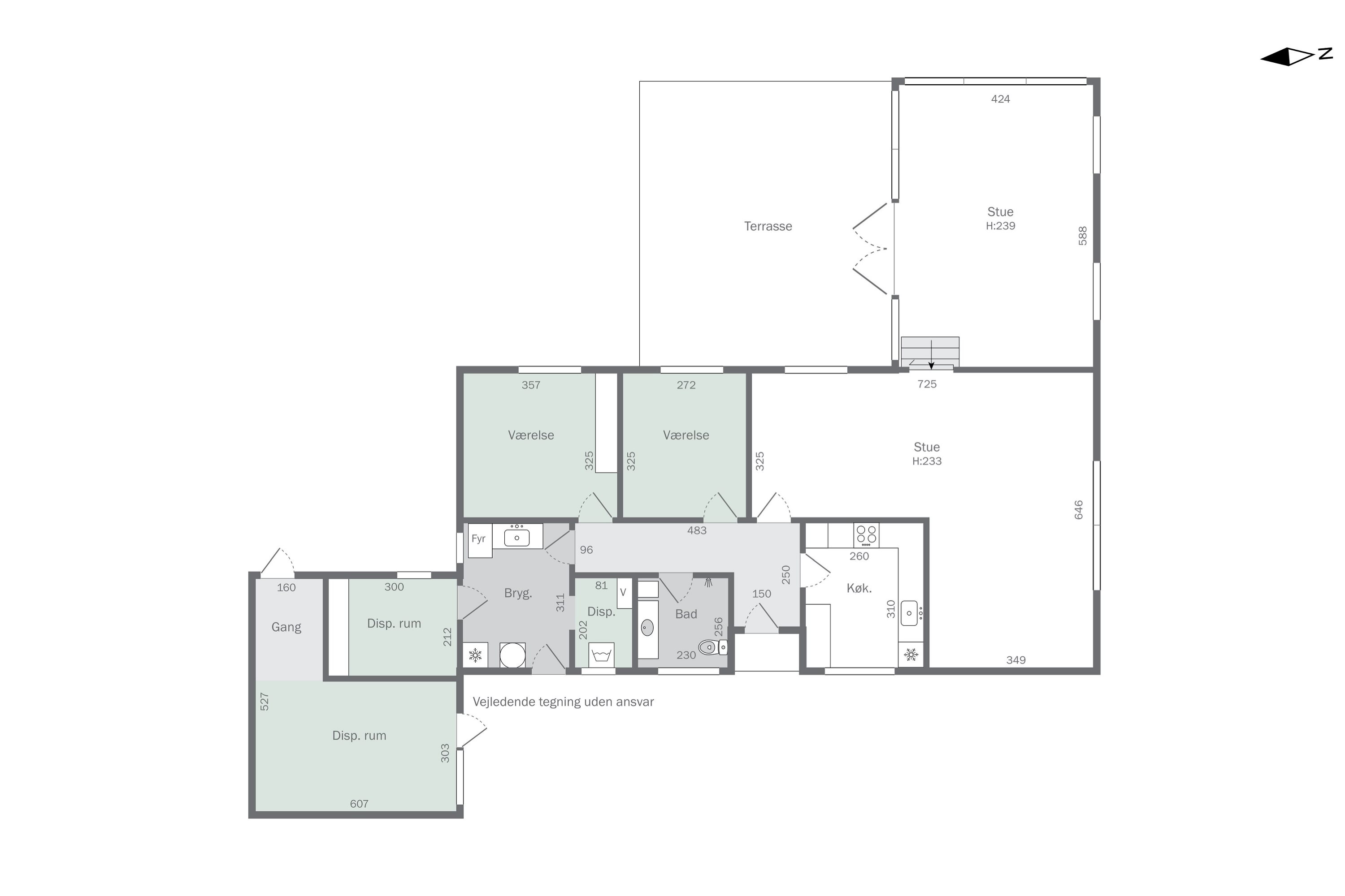
Her bydes du indenfor i en ejendom som rummer 133 kvadratmeter i ét plan, heraf er de 28 kvadratmeter den integrerede udestue som hænger naturligt sammen i åben forbindelse med boligens opholdsstue.
Ejendommen fremtræder i særdeles pæn stand inde og ude og er i fuldstændig indflytningsklar stand. Nuværende ejer har inden for de sidste 4 år ladet ejendommen renovere og modernisere – som er udført af flere af de Langelandske håndværkere. Blandt andet kan det nævnes at der er installeret nyt fjernvarmeanlæg, nyt badeværelse, nyt tag på udestuen, ny el, nye gulve, nye vinduer/døre og meget mere.
Planløsningen er som følger: Entré som munder ud i fordelergang, nydeligt køkken, stor vinkelstue som rummer både spisebordsafdeling og tv-stue samt åben forbindelse til udestue. 2 rummelige soveværelser, et flot bryggers og teknikrum samt lækkert badeværelse med brus. Fra bryggerset er der udgang til disponibelt rum med flere anvendelsesmuligheder.
Ydermere er der et godt isoleret udhus hvor kun kreativiteten sætter grænser for anvendelse.
Udenfor finder du en pæn nyanlagt indkørsel, en nem og overskuelig have samt en skøn terrasse mod sydvest.
Dette er en fantastisk ejendom, som blot venter på sin nye ejer – kontakt Nybolig Langeland for en aftale om fremvisning.
Vi ses på Bakkevej 3!
Økonomien i boligen
Skal Nykredit Bank ringe for en snak om din boligøkonomi?
Fortæl os, hvornår det passer dig, så ringer en rådgiver fra Nykredit Bank dig op til en uforpligtende snak om dine lånemuligheder. Så er du et skridt tættere på din nye bolig.
Vi bruger dine oplysninger til at forberede samtalen. Læs mere i Nykredit Banks privatlivspolitik
Kontakt

Kontakt
Nicolai Hummelgaard
Skal du også sælge?
Kontakt os og få en gratis salgsvurdering, så ved du hvad din bolig er værd.
- Få et hurtigt estimat af salgspris eller en grundig vurdering.
- Få et indblik i, hvad din ejendom er værd på markedet lige nu.
- Find ud af, hvor meget du selv kan købe for, hvis du ønsker at skifte bolig.
Hvor langt er der til nærmeste?
Se hvor lang tid der er mellem denne bolig og en anden adresse
Fakta om Langeland Kommune
INDBYGGERE
GRUNDSKYLD
KOMMUNESKAT
SKOLER
BØRNEPASNING
Opret dig i køberkartoteket og få besked om lignende boliger.
Få direkte besked, når der kommer relevante nye boliger til salg, der matcher dine ønsker. Du ser også de boliger, vi får til salg, som vi ikke viser på Nybolig.dk.
Tilpas filtre og opret