Velkommen til natur skønne Jels med udsigt udover eng.
Velkommen til Klovtoftvej 16 i natur skønne Jels.
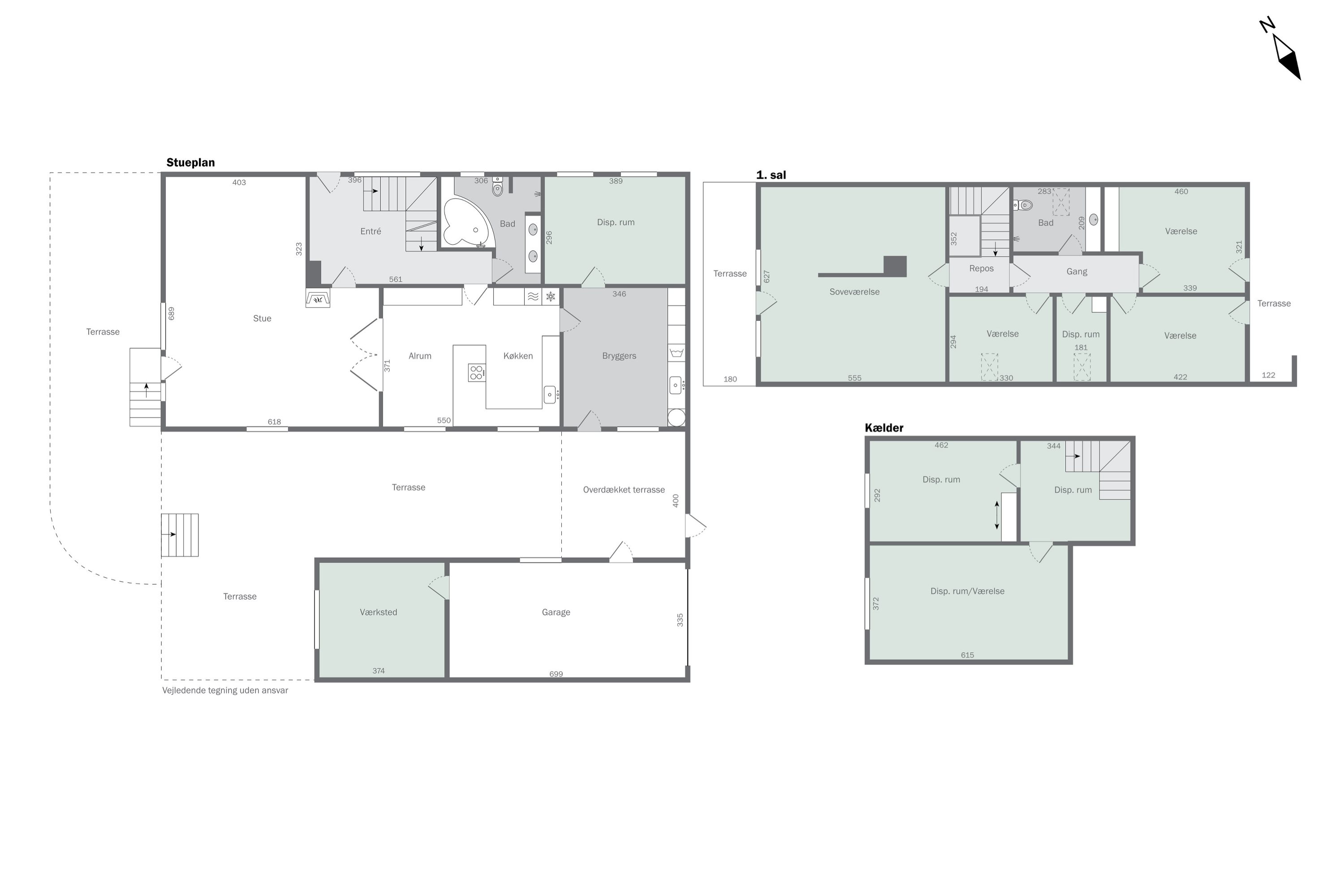
Boligen byder på mange kvadratmeter som fordeler sig på 3 plan. Der er 223 boligkvadratmeter samt en kælder på 58 kvadratmeter samt en garage på 44 kvadratmeter med tilhørende værksted/redskabsrum. Mellem garagen og boligdelen er der overdækket, som gør at du kan gå tørskoet ind.
I stueplanen har du en dejlig stor baggang/bryggers med god plads til vaskeområde samt overtøj og sko. God rumlig værelse, som kan bruges til legerum eller kontor. Køkkenet fremstår velholdt og med god plads - Den fine franske dør forbinder køkkenet og stuen, hvor du har god plads til sofaområde samt evt. legeområde. Det store vinduesparti i stuen giver en masse lys samt giver en skøn udsigt udover engen - Derudover kan du nyde hyggen fra brændeovnen.
Stor entré med adgang til både kælder og 1 sal. I stueplanen finder du også et pænt badeværelse med spa.
1 salen rummer 4 værelser samt et stort badeværelse. Soveværelset har en rigtig god størrelse med walk-through og udgang til en svalegang med udsigt til engen - Her kan du snildt have et cafebord og nyde den flotte udsigt. De to værelser i den anden ende er funktionelle og med egen udgang til en svalegang. Det sidste værelse er mindre og kan bl.a. bruges som kontor eller opbevaringsrum.
Kælderen har en god lofthøjde, samt 3 gode og brugbare disponible rum hvor de flotte hvælvinge lofter giver et flot udtryk.
Haven fremstår nem og overkommelig, hvor du i stedet kan bruge tiden på terrassen med grill og hygge.
Jels er naturskøn grundet Jels sø og Jels skov, hvor du nemt kan tage en badetur eller en gå tur - Derudover byder byen bl.a. også på indkøbsmuligheder, skole, børnehave og sportsaktiviteter.
Inden for 30 min i bil kan du være i Rødding, Kolding, Haderslev og Vejen som gør det overskueligt at komme udenbys.
Nysgerrig? Kontakt os for en fremvisning eller spørgsmål på 7484 1444.
Økonomien i boligen
Skal Nykredit Bank ringe for en snak om din boligøkonomi?
Fortæl os, hvornår det passer dig, så ringer en rådgiver fra Nykredit Bank dig op til en uforpligtende snak om dine lånemuligheder. Så er du et skridt tættere på din nye bolig.
Vi bruger dine oplysninger til at forberede samtalen. Læs mere i Nykredit Banks privatlivspolitik
Kontakt

Kontakt
Anders Jylov Hostrup
Skal du også sælge?
Kontakt os og få en gratis salgsvurdering, så ved du hvad din bolig er værd.
- Få et hurtigt estimat af salgspris eller en grundig vurdering.
- Få et indblik i, hvad din ejendom er værd på markedet lige nu.
- Find ud af, hvor meget du selv kan købe for, hvis du ønsker at skifte bolig.
Hvor langt er der til nærmeste?
Se hvor lang tid der er mellem denne bolig og en anden adresse
Fakta om Vejen Kommune
INDBYGGERE
GRUNDSKYLD
KOMMUNESKAT
SKOLER
BØRNEPASNING
Opret dig i køberkartoteket og få besked om lignende boliger.
Få direkte besked, når der kommer relevante nye boliger til salg, der matcher dine ønsker. Du ser også de boliger, vi får til salg, som vi ikke viser på Nybolig.dk.
Tilpas filtre og opret