Søhøj – lystejendom med søer, høj og naturskønne omgivelser
For enden af en fredelig blind vej i Sejstrup ligger Søhøj – et landligt fristed, hvor ro, lys og natur mødes i smuk balance. Ejendommen ligger på en stor grund med to søer mod øst og en markant høj, der giver en betagende udsigt over det åbne landskab. Her oplever man naturen på tæt hold – forårets grønne spirer, sommerens lyse nætter, efterårets gyldne farver og vinterens frostklare morgener, der giver stedet et særligt poetisk præg.
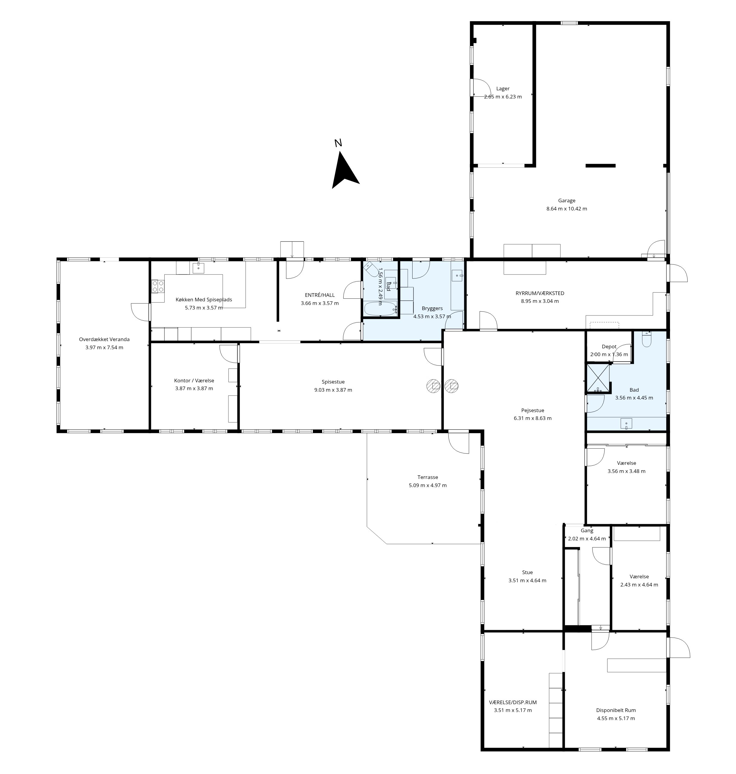
Ejendommen er gennemgribende renoveret i perioden 2014-2019 og fremstår indflytningsklar med respekt for husets oprindelige charme og atmosfære. Vinduer fra Rationel (2016) lader lyset strømme ind i rummene, og facaderne blev malet i 2019. Samme år blev vinduer og døre mod nord samt yderdøren fra køkkenet udskiftet, ligesom alle gulvbelægninger blev fornyet med Tarket og væg-til-væg-tæpper. I 2023 blev lofter og vægge (undtagen i staldbygningen) nymalet, og muren mellem stue og værelse fjernet, hvilket har givet et mere åbent og lyst opholdsmiljø. Køkkenet fra Invita (2016) er moderne og funktionelt med spiseplads og direkte adgang til den overdækkede vestvendte terrasse, hvor aftensolen og udsigten kan nydes i fredelige omgivelser.
Boligen rummer entré, praktisk bryggers, køkken med spiseplads, spisestue med brændeovn, stor opholdsstue med endnu en brændeovn og udgang til terrasse, to badeværelser med gulvvarme samt tre værelser med mulighed for flere. Rummene er lyse og venlige og giver familien god plads til både hverdag, hjemmearbejde og fritidsliv. Brændeovne, pillefyr fra 2011, luft-til-luft varmepumper samt varmtvandsbeholder med elpatron fra 2024 sikrer effektiv og behagelig opvarmning året rundt.
Til ejendommen hører en staldlænge med værksted, lade og fyrrum, der giver gode muligheder for hobbyprojekter, opbevaring eller kreative formål. For hesteinteresserede er der mulighed for at leje hestebokse hos naboen – en perfekt løsning for dem, der ønsker at kombinere bolig, natur og hestehold på ét sted.
Søhøj er et sted, hvor man vågner til fuglesang og frisk luft fra søerne, mens morgensolen spejler sig i vandets stille overflade. Her kan man nyde dagen med aktiviteter på grunden, gåture i de omkringliggende marker eller blot roen og udsigten fra højens top. Når aftenen falder på, indbyder den vestvendte overdækkede terrasse til hyggestunder og smukke solnedgange.
Ejendommen kombinerer moderne komfort med landlig frihed, naturskønhed og masser af sjæl – et hjem, hvor hverdagens ro og fritidens oplevelser smelter sammen, og hvor man kan skabe minder og oplevelser for livet.
Økonomien i boligen
Skal Nykredit Bank ringe for en snak om din boligøkonomi?
Fortæl os, hvornår det passer dig, så ringer en rådgiver fra Nykredit Bank dig op til en uforpligtende snak om dine lånemuligheder. Så er du et skridt tættere på din nye bolig.
Vi bruger dine oplysninger til at forberede samtalen. Læs mere i Nykredit Banks privatlivspolitik
Kontakt

Kontakt
Lars Schack Jessen
Skal du også sælge?
Kontakt os og få en gratis salgsvurdering, så ved du hvad din bolig er værd.
- Få et hurtigt estimat af salgspris eller en grundig vurdering.
- Få et indblik i, hvad din ejendom er værd på markedet lige nu.
- Find ud af, hvor meget du selv kan købe for, hvis du ønsker at skifte bolig.
Hvor langt er der til nærmeste?
Se hvor lang tid der er mellem denne bolig og en anden adresse
Fakta om Esbjerg Kommune
INDBYGGERE
GRUNDSKYLD
KOMMUNESKAT
SKOLER
BØRNEPASNING
Opret dig i køberkartoteket og få besked om lignende boliger.
Få direkte besked, når der kommer relevante nye boliger til salg, der matcher dine ønsker. Du ser også de boliger, vi får til salg, som vi ikke viser på Nybolig.dk.
Tilpas filtre og opret