Flot og indflytningsklar ejendom tæt på Vejle Centrum og i gåafstand til flere skovområder
Nu udbydes denne rummelige og indflytningsklare villa på Syrenvej 2A i Vejle. Med 170 kvm fordelt på 2 plan, rummer denne bolig den pladskrævende familie.
Fra boligen har du blot 1,7 km til det bekvemme byliv og et par hundrede meter til naturens skønhed. Denne villa er derfor det ideelle hjem for dem, der ønsker både plads og en central beliggenhed.
Med gåafstand til skole, indkøbsmuligheder og offentlig transport bliver din dagligdag lettere og mere bekvem. Men det er ikke kun bylivet, der imponerer her. Området er også omgivet af skønne skovområder, hvor Sønderskov er en fremragende destination. Her kan du udforske hundeskoven, lade børnene lege frit på naturlegepladsen eller tage din mountainbike ud på sporene og udfordre terrænet.
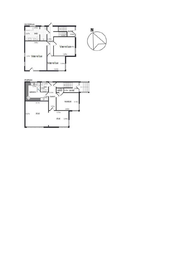
Du bliver budt indenfor i entréen, hvorfra du enten kan gå op i stueplan eller ned i underetagen. Gang ovenpå og nedenunder er belagt med tæpper som er skiftet i maj 2025.
Stueplan byder på et rummeligt køkken, kombineret spise- og opholdsstue, et soveværelse og gæstetoilet. Underetagen der har gulvvarme byder på 3 gode værelser og et stort badeværelse. En indretning som både indbyder til hyggelig samvær, men hvor familien også har mulighed for at dele sig op på de forskelligeplan.
Sælger har I foråret 2025 udskiftet toiletinventar på 1. sal og malet vægge indendørs samt malet træværk udendørs, herunder døre, carport og terrasseoverdækning, Gulve i stue og soveværelse er skiftet til et kraftigt trælignende vinyl.
Til boligen hører en lukket have med dobbelt carport og tilhørende redskabsrum. Med sin perfekte balance mellem bylivets pulserende energi og naturens ro er Syrenvej 2A en adresse, der tilbyder det bedste af begge verdener.
Lad denne indflytningsklare villa blive dit hjem, hvor du kan nyde det bedste fra byen og naturen lige udenfor din dør.
Kontakt Nybolig Vejle på 75 82 76 00 for en fremvisning allerede i dag!
Økonomien i boligen
Skal Nykredit Bank ringe for en snak om din boligøkonomi?
Fortæl os, hvornår det passer dig, så ringer en rådgiver fra Nykredit Bank dig op til en uforpligtende snak om dine lånemuligheder. Så er du et skridt tættere på din nye bolig.
Vi bruger dine oplysninger til at forberede samtalen. Læs mere i Nykredit Banks privatlivspolitik
Kontakt

Kontakt
Kasper Rantov-Sand
Skal du også sælge?
Kontakt os og få en gratis salgsvurdering, så ved du hvad din bolig er værd.
- Få et hurtigt estimat af salgspris eller en grundig vurdering.
- Få et indblik i, hvad din ejendom er værd på markedet lige nu.
- Find ud af, hvor meget du selv kan købe for, hvis du ønsker at skifte bolig.
Hvor langt er der til nærmeste?
Se hvor lang tid der er mellem denne bolig og en anden adresse
Fakta om Vejle Kommune
INDBYGGERE
GRUNDSKYLD
KOMMUNESKAT
SKOLER
BØRNEPASNING
Opret dig i køberkartoteket og få besked om lignende boliger.
Få direkte besked, når der kommer relevante nye boliger til salg, der matcher dine ønsker. Du ser også de boliger, vi får til salg, som vi ikke viser på Nybolig.dk.
Tilpas filtre og opret