Indbydende villa med moderne design, lys atmosfære og skøn have.
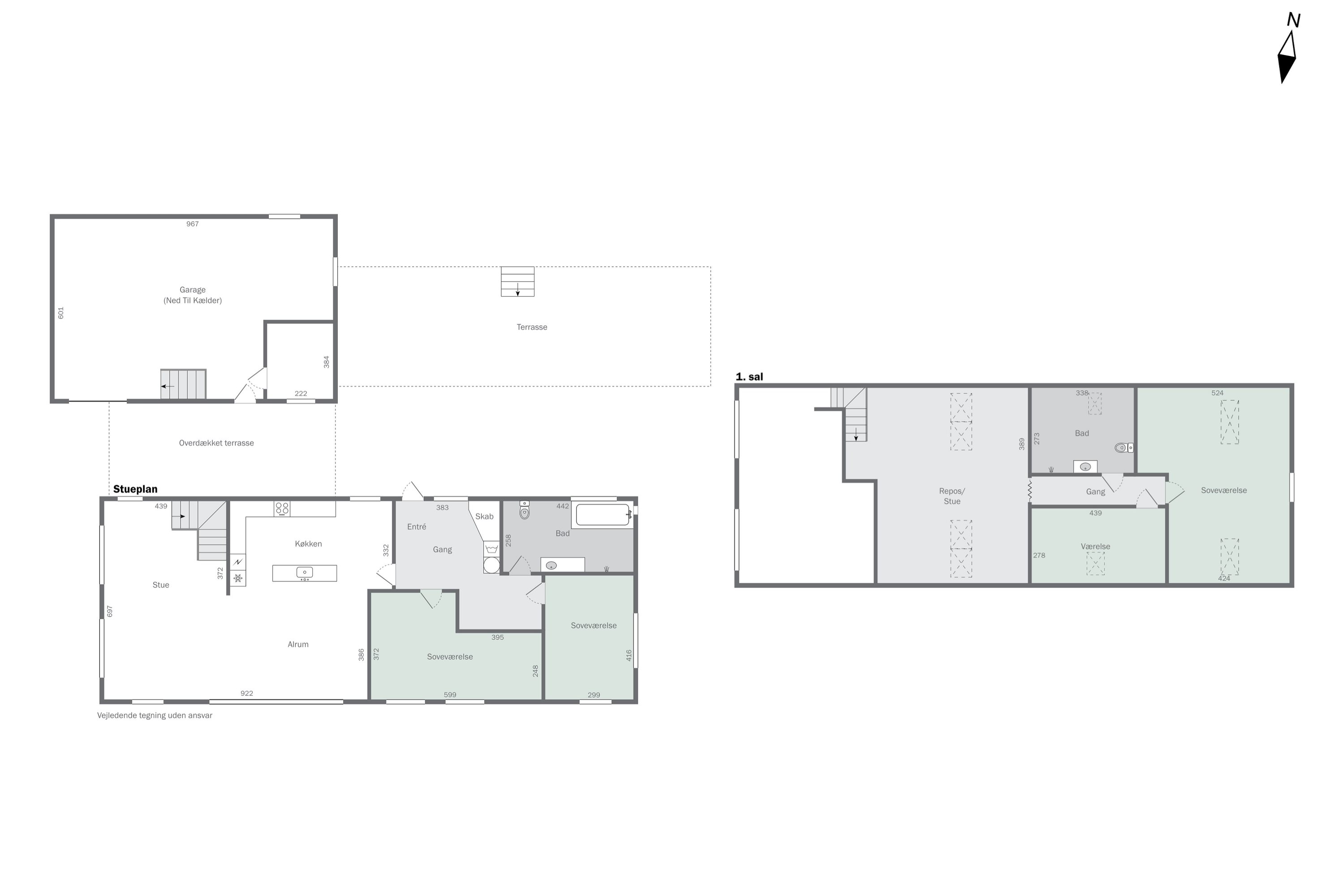
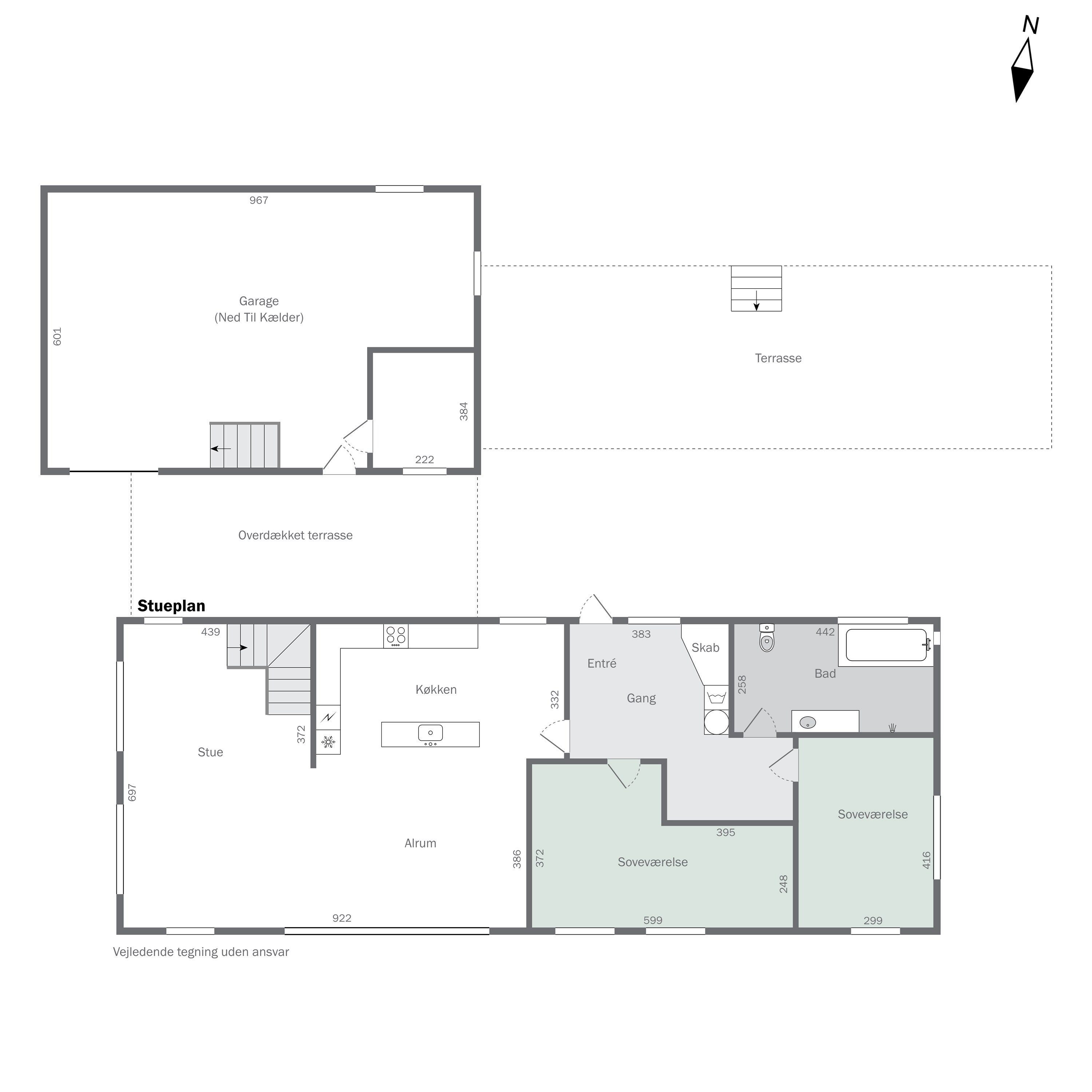
I Bellemøllebanke lige midt mellem Daugård og Stouby ligger denne gennemrenoverede villa på 263 m2 på en halv hektar stor grund med flot skov. Kun ydervæggene stod tilbage under renoveringen, så I nu overtager en moderniseret og energioptimeret bolig, som dog stadig bærer boligens oprindelige charme. Planløsningen giver jer fire værelser, to badeværelser og lyse opholdsmiljøer på begge etager med udsigt til skoven. Med til huset hører desuden en stor garage med kælder.
Villaen fra år 1900 er istandsat i 2022-2023, hvor alle rum er istandsat, vinduer er skiftet og derudover er boligen isoleret både i facaden og inden døre. Der er også installeret en luft-til-vand-varmepumpe, som gør det billigere at opvarme boligen.
Opholdsrummene i hjemmet er skønne og i åben forbindelse med hinanden på tværs af etager. Den vestvendte stue i stueplan har åbent til kip og er indrettet med en alkove, en integreret siddeplads og en trappeopgang til førstesalens stue. Opholdsrummet er udsmykket med akustikpaneler, og dette look er fortsat ind i køkken-alrummet, hvor der er et Vordingborg-køkken i et strømlinet design med sorte elementer og messingfarvede detaljer. Den møblerbare repos ovenpå kan bruges som en ekstra stue.
I får to separate soveafsnit i hjemmet. Hver afdeling har to værelser og et badeværelse. Værelserne er gode størrelser, og badeværelserne har et flot udtryk med store fliser og armaturer i messing. Badeværelset i stueplan har et badekar med store vinduespartier ud mod skoven.
På den store grund har I jeres eget skovområde, som I kan nyde udsigten til fra jeres træterrasse. Endelig er der en anseelig garage med talrige anvendelsesmuligheder.
I bosætter jer i naturskønne omgivelser, hvor I finder skole, dagtilbud og indkøb i nærheden. Dertil kommer, at I har få kilometer til Vejle Fjord, stranden og motorvejen.
Læs mere om området på: hedenstederne.dk
Økonomien i boligen
Skal Nykredit Bank ringe for en snak om din boligøkonomi?
Fortæl os, hvornår det passer dig, så ringer en rådgiver fra Nykredit Bank dig op til en uforpligtende snak om dine lånemuligheder. Så er du et skridt tættere på din nye bolig.
Vi bruger dine oplysninger til at forberede samtalen. Læs mere i Nykredit Banks privatlivspolitik
Kontakt
 
                Kontakt
Martin Friis Hansen
Skal du også sælge?
Kontakt os og få en gratis salgsvurdering, så ved du hvad din bolig er værd.
- Få et hurtigt estimat af salgspris eller en grundig vurdering.
- Få et indblik i, hvad din ejendom er værd på markedet lige nu.
- Find ud af, hvor meget du selv kan købe for, hvis du ønsker at skifte bolig.
Hvor langt er der til nærmeste?
Se hvor lang tid der er mellem denne bolig og en anden adresse
Fakta om Hedensted Kommune
INDBYGGERE
GRUNDSKYLD
KOMMUNESKAT
SKOLER
BØRNEPASNING
Opret dig i køberkartoteket og få besked om lignende boliger.
Få direkte besked, når der kommer relevante nye boliger til salg, der matcher dine ønsker. Du ser også de boliger, vi får til salg, som vi ikke viser på Nybolig.dk.
Tilpas filtre og opret