En rummelig villa til hele familien i Engesvang
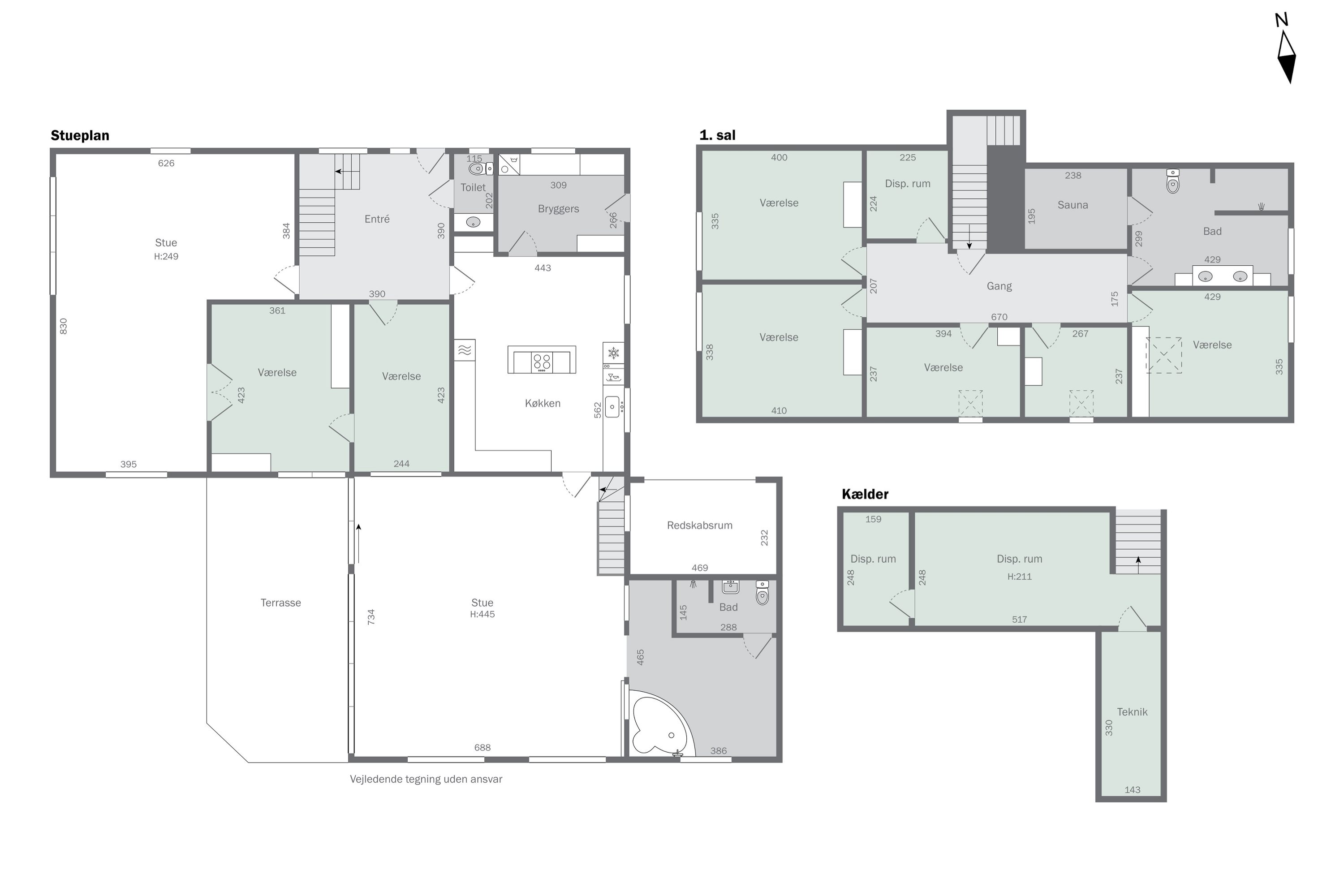
På Jernbanegade 28 venter jer denne fine villa, der har god plads til hele familien. Villaen er placeret på et lukket vænge og præsenterer sig flot ud til vejen med sin velholdte forhave og klassiske rødstensfacade. Indenfor råder huset over 311 kvadratmeter, som fordeler sig på halvandet plan, og der er ligeledes en kælder med tre disponible rum, der kan danne ramme om mange forskellige formål.
Køkken-alrummet ligger i stueetagen og består af et funktionelt indrettet køkken, hvor I også har plads til at samles om spisebordet.
Dagligstuen finder I på den anden side af entréen, og her kan I let indrette jer med et sofaarrangement og en spisebordsafdeling. De brede vinduespartier vender mod syd og vest og bidrager med et skønt lysindfald, ligesom de blottede murstensvægge giver rummet karakter.
I den anden ende af boligen er der endnu et område, der i dag fungerer som et ekstra samlingspunkt, og hvor I har mulighed for at genetablere den tidligere pool. I forlængelse heraf er der et åbent spa-område samt et aflukket badeværelse.
Stueetagen har derudover to værelser, samt et bryggers og et gæstetoilet.
På førstesalen er der endnu en værelsesafdeling med tre værelser samt et stort badeværelse med dobbelt håndvask og en tilstødende sauna.Udenfor kan I glæde jer til en vestvendt fliseterrasse samt en opvokset have med græsplæne og enkel beplantning.
I bosætter jer i rolige omgivelser, uden at være langt fra hverdagens mange gøremål. I kan gå til indkøb og skole, og daginstitutionen er knap halvanden kilometer fra hoveddøren. Der er skønne naturområder tæt på, med Bølling Sø i nabolaget, og I vil samtidig have let adgang til offentlig transport med få hundrede meter til Engesvang Station, hvorfra der kører bus og regionaltog.
Økonomien i boligen
Skal Nykredit Bank ringe for en snak om din boligøkonomi?
Fortæl os, hvornår det passer dig, så ringer en rådgiver fra Nykredit Bank dig op til en uforpligtende snak om dine lånemuligheder. Så er du et skridt tættere på din nye bolig.
Vi bruger dine oplysninger til at forberede samtalen. Læs mere i Nykredit Banks privatlivspolitik
Kontakt

Kontakt
Joachim Glerup Verwold
Skal du også sælge?
Kontakt os og få en gratis salgsvurdering, så ved du hvad din bolig er værd.
- Få et hurtigt estimat af salgspris eller en grundig vurdering.
- Få et indblik i, hvad din ejendom er værd på markedet lige nu.
- Find ud af, hvor meget du selv kan købe for, hvis du ønsker at skifte bolig.
Hvor langt er der til nærmeste?
Se hvor lang tid der er mellem denne bolig og en anden adresse
Fakta om Ikast--Brande Kommune
INDBYGGERE
GRUNDSKYLD
KOMMUNESKAT
SKOLER
BØRNEPASNING
Opret dig i køberkartoteket og få besked om lignende boliger.
Få direkte besked, når der kommer relevante nye boliger til salg, der matcher dine ønsker. Du ser også de boliger, vi får til salg, som vi ikke viser på Nybolig.dk.
Tilpas filtre og opret