Naturskønne omgivelser - lidt utraditionel ejendom
Dette er en ejendom, som kan tilbyde lidt af hvert.
Som udgangspunkt er der tale om en nedlagt landejendom. Efterfølgende blev der 2005 opført nyt stuehus i træ på 119 m2 i et plan. Et 'Planet Hus' som er kendt for at opføre fritidshuse i høj kvalitet.
Her får du 'sommerhusstemning' og et hus med god funktionel indretning.
Til ejendommen hører desuden 560 m2 udbygninger. Meget anvendelige udhuse med muligheden for at drive mindre erhvervsvirksomhed eller rum til den pladskrævende hobby.
Ejendommen ligger højt placeret i landskabet og fra stuehuset har du en virkelig flot panorama udsigt over landskabet.
Grunden består af 2 matrikler på i alt 4.285 m2, som ligger på hver sin side af vejen.
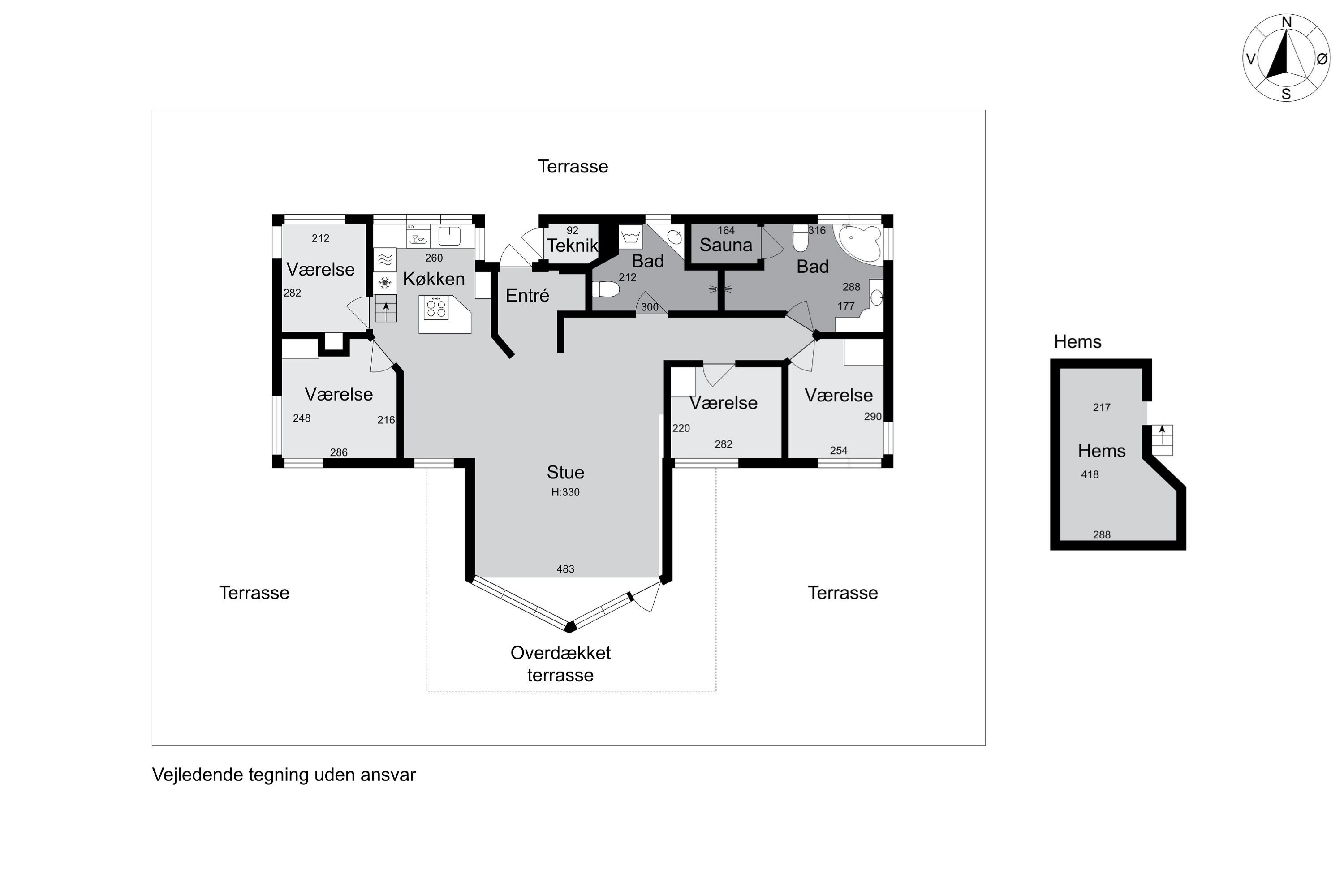
Huset er meget lyst og store vinduespartier sørger for masser af dagslys kan komme ind i rummene. Indretningen er således: Entré, teknikrum, køkken i åben forbindelse med stuen, 4 værelser, 2 badeværelser, hvor det ene er med spa og sauna. Over 2 af værelserne er indrettet hems.
Rundt om stort set hele huset er anlagt dejlig træterrasse med plads til at nyde 'udelivet' og udsigten.
Ejendommen er beliggende i et godt og meget aktivt lokalområde. Indenfor ca. 2 km finder du indkøb, skole, gode sportsfaciliteter og adgang til Limfjorden.
Leder du efter en ejendom med mulighed for et godt værksted/udhus, så ved du hvor svært det kan være at finde det helt rigtige.
Nuværende ejer anvender udbygninger til lagerplads mens stuehuset er tilmeldt udlejning via Novasol. Huset er booket ca. 26 uger om året.
Muligheder er mange og næsten kun fantasien, som sætter grænserne. Det er helt op til dig at udnytte dem.
Økonomien i boligen
Skal Nykredit Bank ringe for en snak om din boligøkonomi?
Fortæl os, hvornår det passer dig, så ringer en rådgiver fra Nykredit Bank dig op til en uforpligtende snak om dine lånemuligheder. Så er du et skridt tættere på din nye bolig.
Vi bruger dine oplysninger til at forberede samtalen. Læs mere i Nykredit Banks privatlivspolitik
Kontakt

Kontakt
Ole Gørtler Laustsen
Skal du også sælge?
Kontakt os og få en gratis salgsvurdering, så ved du hvad din bolig er værd.
- Få et hurtigt estimat af salgspris eller en grundig vurdering.
- Få et indblik i, hvad din ejendom er værd på markedet lige nu.
- Find ud af, hvor meget du selv kan købe for, hvis du ønsker at skifte bolig.
Hvor langt er der til nærmeste?
Se hvor lang tid der er mellem denne bolig og en anden adresse
Fakta om Morsø Kommune
INDBYGGERE
GRUNDSKYLD
KOMMUNESKAT
SKOLER
BØRNEPASNING
Opret dig i køberkartoteket og få besked om lignende boliger.
Få direkte besked, når der kommer relevante nye boliger til salg, der matcher dine ønsker. Du ser også de boliger, vi får til salg, som vi ikke viser på Nybolig.dk.
Tilpas filtre og opret