'Der var engang..' - sådan starter mange eventyr. Nu kan du starte dit ...!
Må vi præsentere en skøn ejendom hvor facaden skjuler og 'lyver' lidt om alt det der venter. Villaen og stedet har gennem nuværende ejers tid gennemgået en meget stort forvandling.
Siden 2013 er huset blevet om-/tilbygget og gennemrenoveret - fremstår indflytningsklar og du får et sted med mange muligheder samt plads til velvære.
Huset ligger i første fjordrække med ugeneret udsigt til Limfjorden og kig til Sillerslev Havn.
Sillerslev By er oprindelig bygget op omkring havnen og det liv som udspandt sig herfra. Du finder stadig en stor del af charmen fra havnemiljøet. Desuden får du et aktivt lokalområde med tiltag af forskellig karakter.
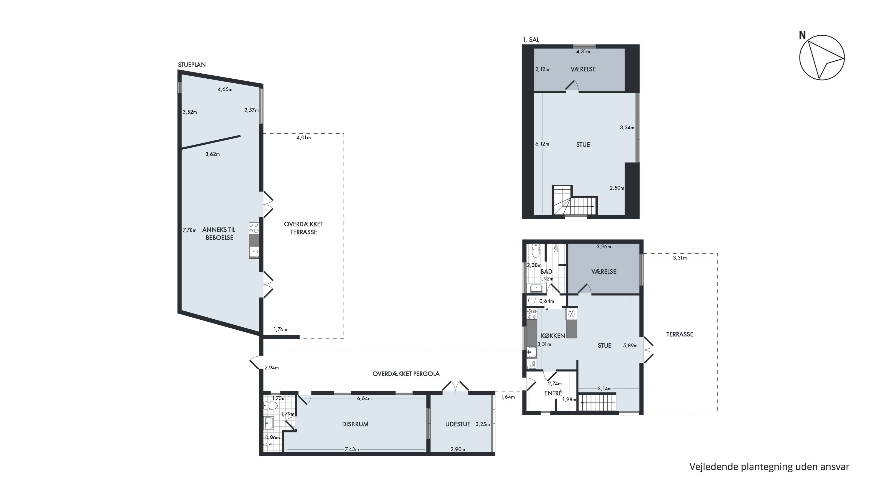
Selve stuehuset er 100 m2 fordelt på 2 plan. Opført 1925 med om-/tilbygning i 2013. Fra mange af huset rum kan du nyde den flotte udsigt.
I 2021 blev der opført anneks, godkendt til boligformål. og udhus på ca. 95 m2 med en lækker overdækket terrasse. Her får du nogle spændende muligheder og nogle fantastiske rammer. Gæstehus, atelier, KreaRum, yogastudie.... næsten kun fantasien som sætter grænsen.
I annekset/udhuset, som selvfølgelig er isoleret, finder du ligeledes tekøkken samt toilet- og badefaciliteter. Opvarmes med luft/luft varmepumpe.
Stuehuset er indrettet på følgende måde: Entré, køkken i åben forbindelse med stue, badeværelse m/brus samt værelse. Tagetagen indeholder: Stor opholdstue med kvist og fantastisk udsigt mod fjorden samt værelse.
Desuden får du også drivhus/udestue ligeledes med dejlig udsigt til Limfjorden.
Stedet skal opleves og du kan skrive første kapital i dit nye eventyr!
Økonomien i boligen
Skal Nykredit Bank ringe for en snak om din boligøkonomi?
Fortæl os, hvornår det passer dig, så ringer en rådgiver fra Nykredit Bank dig op til en uforpligtende snak om dine lånemuligheder. Så er du et skridt tættere på din nye bolig.
Vi bruger dine oplysninger til at forberede samtalen. Læs mere i Nykredit Banks privatlivspolitik
Kontakt

Kontakt
Ole Gørtler Laustsen
Skal du også sælge?
Kontakt os og få en gratis salgsvurdering, så ved du hvad din bolig er værd.
- Få et hurtigt estimat af salgspris eller en grundig vurdering.
- Få et indblik i, hvad din ejendom er værd på markedet lige nu.
- Find ud af, hvor meget du selv kan købe for, hvis du ønsker at skifte bolig.
Hvor langt er der til nærmeste?
Se hvor lang tid der er mellem denne bolig og en anden adresse
Fakta om Morsø Kommune
INDBYGGERE
GRUNDSKYLD
KOMMUNESKAT
SKOLER
BØRNEPASNING
Opret dig i køberkartoteket og få besked om lignende boliger.
Få direkte besked, når der kommer relevante nye boliger til salg, der matcher dine ønsker. Du ser også de boliger, vi får til salg, som vi ikke viser på Nybolig.dk.
Tilpas filtre og opret