Moderne étplansvilla med orangeri - unik beliggenhed i hjertet af Gammel Hou
Velkommen til Vestergade 43 – en indflytningsklar og moderne villa opført i 2019, beliggende i den charmerende, gamle bydel af Hou. Her får du det bedste fra to verdener: en ny, funktionel bolig i klassiske omgivelser, tæt på både strand, havn og byens mange faciliteter.
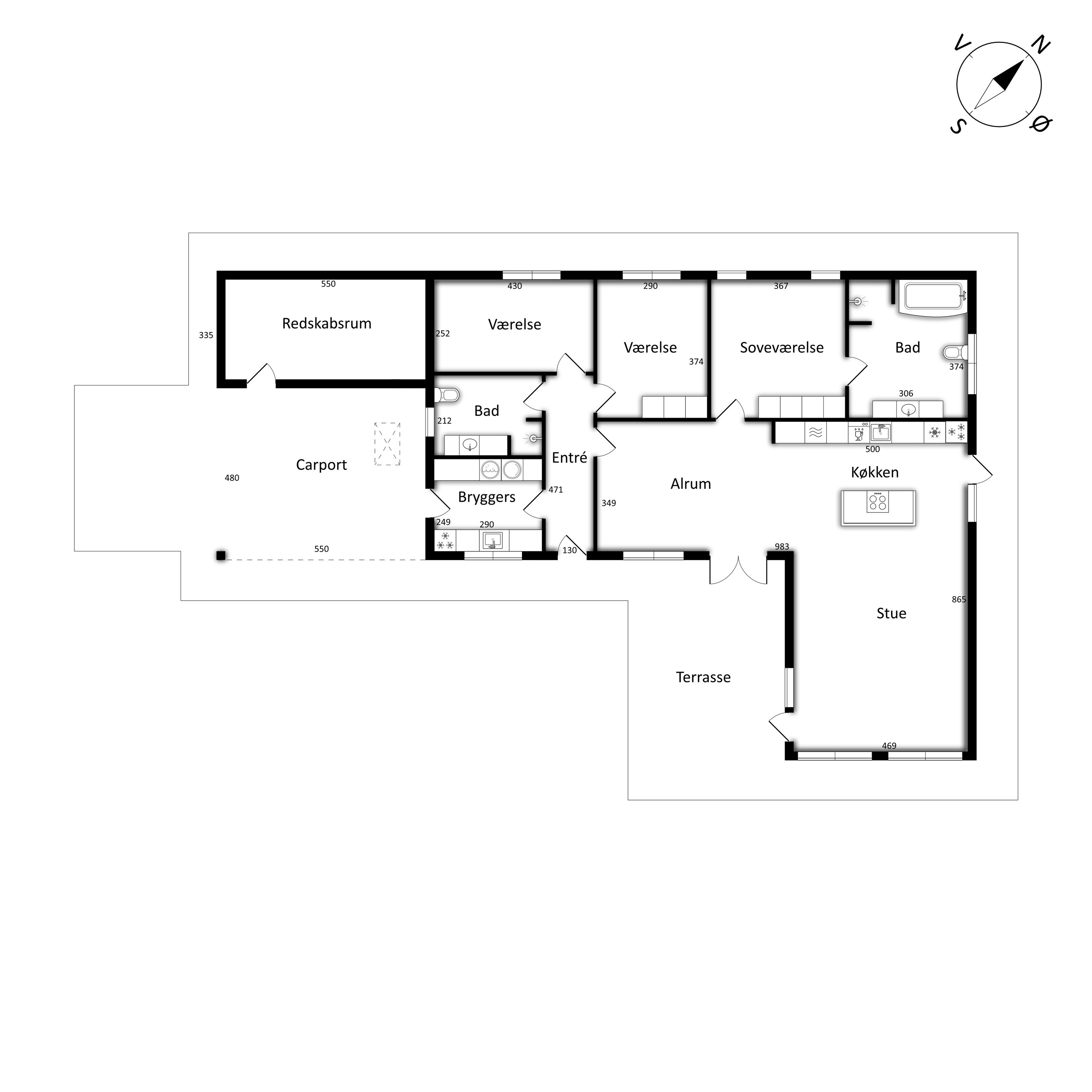
Boligen er indrettet i ét plan og byder på hele 151 veldisponerede kvadratmeter med højt til loftet, akustiklofter og store vinduespartier, der inviterer dagslyset ind. Det sydvendte køkken-alrum udgør boligens naturlige samlingspunkt – lyst, luftigt og perfekt til både hverdag og gæster. Herfra er der åben forbindelse til stuen, som skaber et sammenhængende opholdsrum med masser af atmosfære.
Villaen rummer tre store soveværelser, to stilrene badeværelser samt et praktisk bryggers med direkte adgang til carporten. Derudover får du både værksted og pulterrum med god opbevaringsplads – bl.a. via et isoleret loftsrum med nem adgang fra carporten.
Udendørs finder du en skøn, sydvendt terrasse og et charmerende orangeri i hjørnet af haven – ideelt til egne grøntsager, hyggelige middage eller stille stunder i grønne omgivelser.
Villaen er opgraderet med ventilations- og varmegenvindingsanlæg (Nilan Comfort), og der er etableret omfangsdræn med faskine rundt om huset – alt sammen for at sikre et sundt og komfortabelt indeklima året rundt.
Beliggenheden i Hou giver jer en tryg og aktiv hverdag tæt på det hele: skole, daginstitutioner, idrætshal, svømmehal og dagligvarebutikker – alt inden for gå- eller cykelafstand. Derudover byder Hou på et stærkt lokalsamfund og et bredt udvalg af fritidsaktiviteter for både børn og voksne.
Lyder dette som jeres nye hjem? Kontakt os allerede i dag på tlf. 86542666 for en fremvisning – vi glæder os til at vise jer rundt!
Økonomien i boligen
Skal Nykredit Bank ringe for en snak om din boligøkonomi?
Fortæl os, hvornår det passer dig, så ringer en rådgiver fra Nykredit Bank dig op til en uforpligtende snak om dine lånemuligheder. Så er du et skridt tættere på din nye bolig.
Vi bruger dine oplysninger til at forberede samtalen. Læs mere i Nykredit Banks privatlivspolitik
Kontakt

Kontakt
Bo Bjerre
Skal du også sælge?
Kontakt os og få en gratis salgsvurdering, så ved du hvad din bolig er værd.
- Få et hurtigt estimat af salgspris eller en grundig vurdering.
- Få et indblik i, hvad din ejendom er værd på markedet lige nu.
- Find ud af, hvor meget du selv kan købe for, hvis du ønsker at skifte bolig.
Hvor langt er der til nærmeste?
Se hvor lang tid der er mellem denne bolig og en anden adresse
Fakta om Odder Kommune
INDBYGGERE
GRUNDSKYLD
KOMMUNESKAT
SKOLER
BØRNEPASNING
Opret dig i køberkartoteket og få besked om lignende boliger.
Få direkte besked, når der kommer relevante nye boliger til salg, der matcher dine ønsker. Du ser også de boliger, vi får til salg, som vi ikke viser på Nybolig.dk.
Tilpas filtre og opret