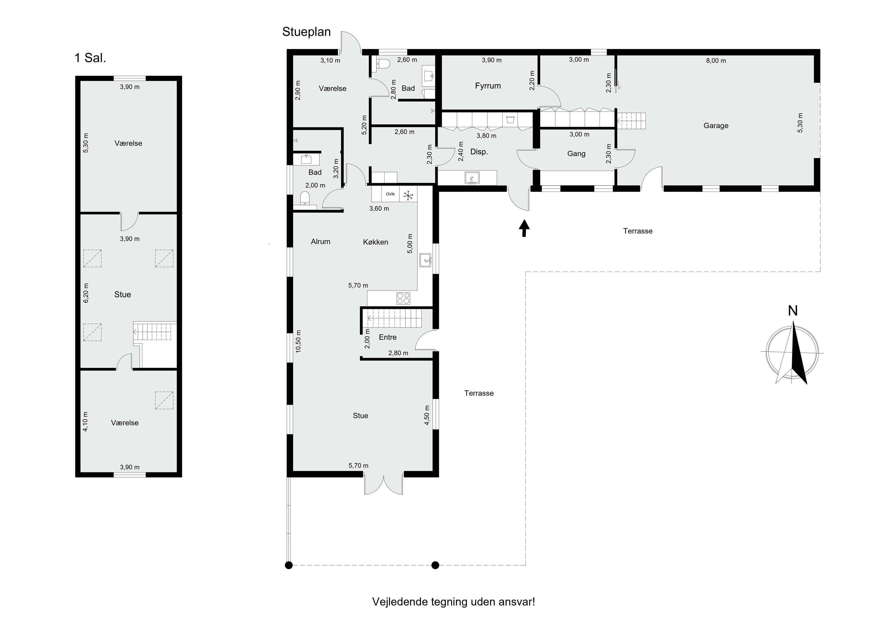
Villa 160 m² på 2.135 m² grund i roligt landligt område med stor garage
I får her en indbydende villa på 160 m² placeret på en velanlagt grund på 2.135 m². Den markante, hvide facade i et L-formet anlæg og den store garage tegner et tydeligt førsteindtryk af et hjem med plads til både biler, hobbysager og besøg. Indretningen byder på fem rum fordelt på to stuer og tre soveværelser, plus to badeværelser, så der er plads til både familieliv og hjemmearbejde. Køkkenet er holdt i lyse toner med træbordplader, og det store spiseområde ligger i åben forbindelse til stuen, hvilket skaber et naturligt samlingspunkt.
Gulvene er gennemgående flisebelagte, og de mange vinduer giver et klart og jævnt lysindfald. Bryggers og praktiske depotrum løser hverdagens opbevaring og tørring. Udetrum og særlige fordele er tydelige her: En bred terrasse strækker sig langs huset og giver flere zoner til udendørs spisning og leg. Den overdækkede terrasse med højt, åbent tagdæk er velegnet til aftensmåltider under tag, og haven rummer frugttræer, drivhus og plads til aktiviteter på græsplænen. Fra øverste plan er der kig over åbne marker, som understreger den private og rolige beliggenhed. Den store garage med direkte adgang og den store grusindkørsel giver gode parkeringsmuligheder. Beliggenheden er rolig og præget af landlige omgivelser med åbne marker og grønne arealer omkring matriklen.
Her får I et hus der fungerer som base for udendørs aktiviteter, cykel- og gåture samt privatliv fra naboer tæt på. Samtidig er huset indrettet, så hverdagens logistik er enkel med gode adgangsforhold mellem garage, bryggers og køkken. Loftsetagen med skråvinduer giver ekstra disponible rum, som kan indrettes efter behov til værelse, kontor eller hobby.
Sammenfattende får I en rummelig villa på 160 m² med tre soveværelser, to stuer, to badeværelser, stor garage og en grund på 2.135 m² med flere udezoner. Huset er velegnet til familier, der ønsker plads og fleksibilitet samt fritidsliv tæt på naturen. Kontakt os for en fremvisning, så I kan opleve rumforløbene og haven i øjenhøjde og se, hvordan boligen kan indrettes til jeres hverdag.
Økonomien i boligen
Skal Nykredit Bank ringe for en snak om din boligøkonomi?
Fortæl os, hvornår det passer dig, så ringer en rådgiver fra Nykredit Bank dig op til en uforpligtende snak om dine lånemuligheder. Så er du et skridt tættere på din nye bolig.
Vi bruger dine oplysninger til at forberede samtalen. Læs mere i Nykredit Banks privatlivspolitik
Kontakt

Kontakt
Kasper Bæk Vestergaard
Skal du også sælge?
Kontakt os og få en gratis salgsvurdering, så ved du hvad din bolig er værd.
- Få et hurtigt estimat af salgspris eller en grundig vurdering.
- Få et indblik i, hvad din ejendom er værd på markedet lige nu.
- Find ud af, hvor meget du selv kan købe for, hvis du ønsker at skifte bolig.
Hvor langt er der til nærmeste?
Se hvor lang tid der er mellem denne bolig og en anden adresse
Fakta om Silkeborg Kommune
INDBYGGERE
GRUNDSKYLD
KOMMUNESKAT
SKOLER
BØRNEPASNING
Opret dig i køberkartoteket og få besked om lignende boliger.
Få direkte besked, når der kommer relevante nye boliger til salg, der matcher dine ønsker. Du ser også de boliger, vi får til salg, som vi ikke viser på Nybolig.dk.
Tilpas filtre og opret