På Sportsvej 16 i det eftertragtede Alderslyst-kvarter i Silkeborg venter en enestående mulighed for jer, der søger en rummelig og fleksibel bolig.
 
Villaen fra 1944 har en generøs størrelse på 180 kvadratmeter plus en høj kælder på 90 kvadratmeter, og her får I mulighed for at bo sammen som to generationer eller to familier med hver jeres etage, eller lægge det hele sammen til en stor bolig. Den uudnyttede tagretage rummer yderligere potentiale, hvad end I drømmer om ekstra soveværelser, et kreativt arbejdsrum eller noget helt tredje.
 
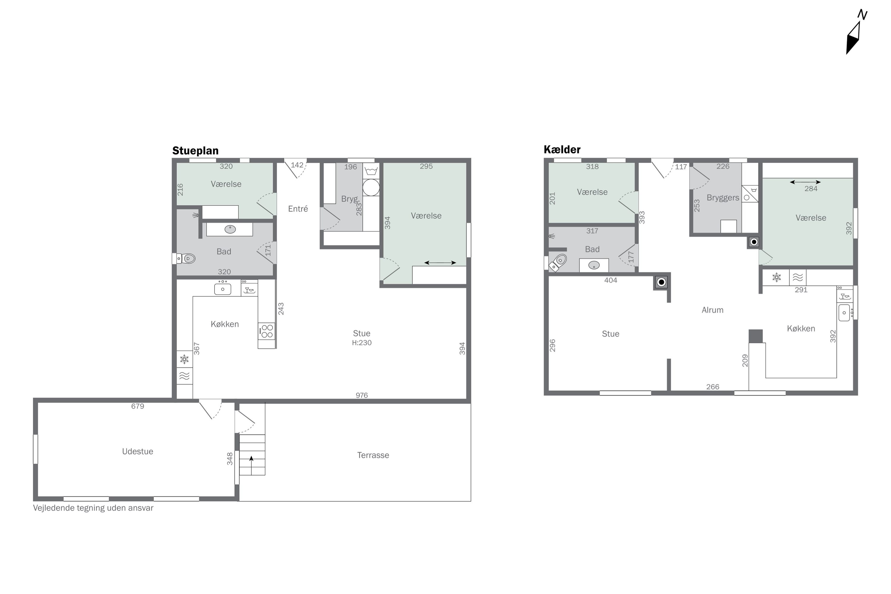
I stueplan bydes I indenfor i en nyrenoveret etage, hvor det store opholdsmiljø med flotte gulve binder køkken-alrum og stue sammen i et harmonisk rum. Det stilfulde, lyse køkken fra Kvik har loftemfang og halvmur mod alrummet og er både æstetisk tiltalende og funktionelt. To værelser, begge med generøs skabsplads, tilbyder privatliv og ro, mens det flotte badeværelse og et praktisk bryggers med plads til vaskemaskine fuldender denne etages tilbud.
 
Kælderen spejler stueplanens åbne og indbydende atmosfære med et stort opholdsmiljø, der omfatter et lyst køkken, to værelser, hvoraf det ene har en skabsvæg, et nydeligt badeværelse og et bryggers. Denne etage er ideel for en selvstændig husstand, teenagelejlighed eller som ekstra plads til hobby og fritidsaktiviteter.
 
Udenfor nyder I godt af en velanlagt have med flere terrasseområder, der inviterer til hyggelige stunder i det fri. Den nemme have, med udsigt til det omkringliggende grønne område, skaber en fredfyldt kulisse for familieliv og afslapning.
 
Beliggenheden i et roligt, lukket kvarter sikrer fred og ro, mens I stadig har let adgang til alt det bedste, Silkeborg har at byde på. Indenfor en radius af halvanden kilometer når I Børnehuset Blæksprutten og Sølystskolen, og I kan cykle til centrum på under ti minutter.
Økonomien i boligen
Skal Nykredit Bank ringe for en snak om din boligøkonomi?
Fortæl os, hvornår det passer dig, så ringer en rådgiver fra Nykredit Bank dig op til en uforpligtende snak om dine lånemuligheder. Så er du et skridt tættere på din nye bolig.
Vi bruger dine oplysninger til at forberede samtalen. Læs mere i Nykredit Banks privatlivspolitik
Kontakt
 
                Kontakt
Jesper Lyngsø
Skal du også sælge?
Kontakt os og få en gratis salgsvurdering, så ved du hvad din bolig er værd.
- Få et hurtigt estimat af salgspris eller en grundig vurdering.
- Få et indblik i, hvad din ejendom er værd på markedet lige nu.
- Find ud af, hvor meget du selv kan købe for, hvis du ønsker at skifte bolig.
Hvor langt er der til nærmeste?
Se hvor lang tid der er mellem denne bolig og en anden adresse
Fakta om Silkeborg Kommune
INDBYGGERE
GRUNDSKYLD
KOMMUNESKAT
SKOLER
BØRNEPASNING
Opret dig i køberkartoteket og få besked om lignende boliger.
Få direkte besked, når der kommer relevante nye boliger til salg, der matcher dine ønsker. Du ser også de boliger, vi får til salg, som vi ikke viser på Nybolig.dk.
Tilpas filtre og opret