Etplanshus i Kristrup med fuld kælder og gennemførte løsninger
Med nøglerne i hånden til denne bolig får du et gennemført hjem, ekstra plads til udfoldelse og en helt igennem lækker træterrasse – så hvorfor ikke læse med her?
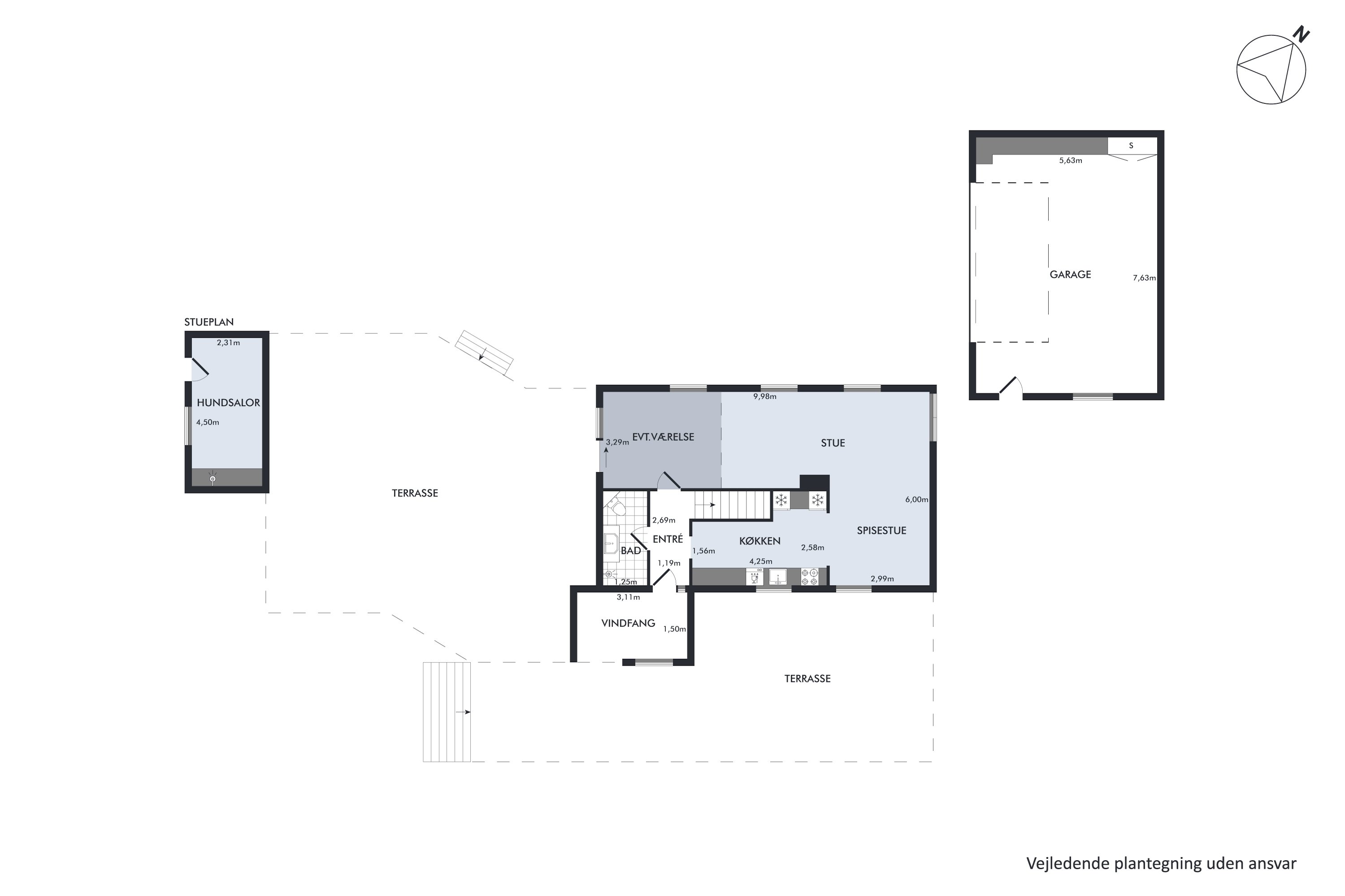
Etplanshuset byder på 70 indflytningsklare kvadratmeter, der fordeler sig over et badeværelse, et køkken og et stort opholdsrum i åben forbindelse. Lyse gulve løber under fødderne, og udover dagslyset, der strømmer ind gennem de store vinduer, belyses samtlige rum af spots i loftet.
Badeværelset kommer med gulvvarme og separat brus, mens køkkenet fremstår tidløst og funktionelt med ovne i arbejdshøjde samt masser af skabsplads. I den store vinkelstue er der lys, luft og udgang til terrassen – og skulle behovet opstå, kan der nemt indrettes et værelse.
Hertil kommer to store disponible rum, et nydeligt badeværelse med kar og et vaskerum i den fulde og høje kælder.
Udover kælderen får du ekstra plads i annekset, der tidligere har fungeret som hundesalon, og i den rummelige garage på 48 kvadratmeter, som kommer med gulvvarme og dermed kan anvendes til værksted, hobbyrum eller ekstra opbevaring året rundt.
Indkørslen er udstyret med ladestander og flisebelægning – grønt, nemt og bekvemt. En stor, lækker træterrasse, der orienterer sig perfekt mod solen, inviterer til sammenkomster og afslapning, og på plænen er der plads til leg.
Det hele placerer sig på en fredelig villavej i Kristrup med alle hverdagens stop inden for kort rækkevidde. Dit nærmeste supermarked findes i gåafstand, mens Randers Storcenter samt alt i byggemarkeder ligger i nabobydelen Paderup.
Samtidig er byens centrum blot 3,5 km væk, hvilket giver nem adgang til caféer, shopping og kulturelle tilbud, mens naturen og stilheden i nærområdet inviterer til ro og rekreation.
Økonomien i boligen
Skal Nykredit Bank ringe for en snak om din boligøkonomi?
Fortæl os, hvornår det passer dig, så ringer en rådgiver fra Nykredit Bank dig op til en uforpligtende snak om dine lånemuligheder. Så er du et skridt tættere på din nye bolig.
Vi bruger dine oplysninger til at forberede samtalen. Læs mere i Nykredit Banks privatlivspolitik
Kontakt

Kontakt
Rasmus Moeskær
Skal du også sælge?
Kontakt os og få en gratis salgsvurdering, så ved du hvad din bolig er værd.
- Få et hurtigt estimat af salgspris eller en grundig vurdering.
- Få et indblik i, hvad din ejendom er værd på markedet lige nu.
- Find ud af, hvor meget du selv kan købe for, hvis du ønsker at skifte bolig.
Hvor langt er der til nærmeste?
Se hvor lang tid der er mellem denne bolig og en anden adresse
Fakta om Randers Kommune
INDBYGGERE
GRUNDSKYLD
KOMMUNESKAT
SKOLER
BØRNEPASNING
Opret dig i køberkartoteket og få besked om lignende boliger.
Få direkte besked, når der kommer relevante nye boliger til salg, der matcher dine ønsker. Du ser også de boliger, vi får til salg, som vi ikke viser på Nybolig.dk.
Tilpas filtre og opret