Midt i Knøsgård, i udkanten af Aabybro, udbydes denne specielle og attraktive ejendom...
Ejendommen fordeler sig på sammenhængende matrikler på i alt 3.877m2. En ejendom med masser af muligheder!
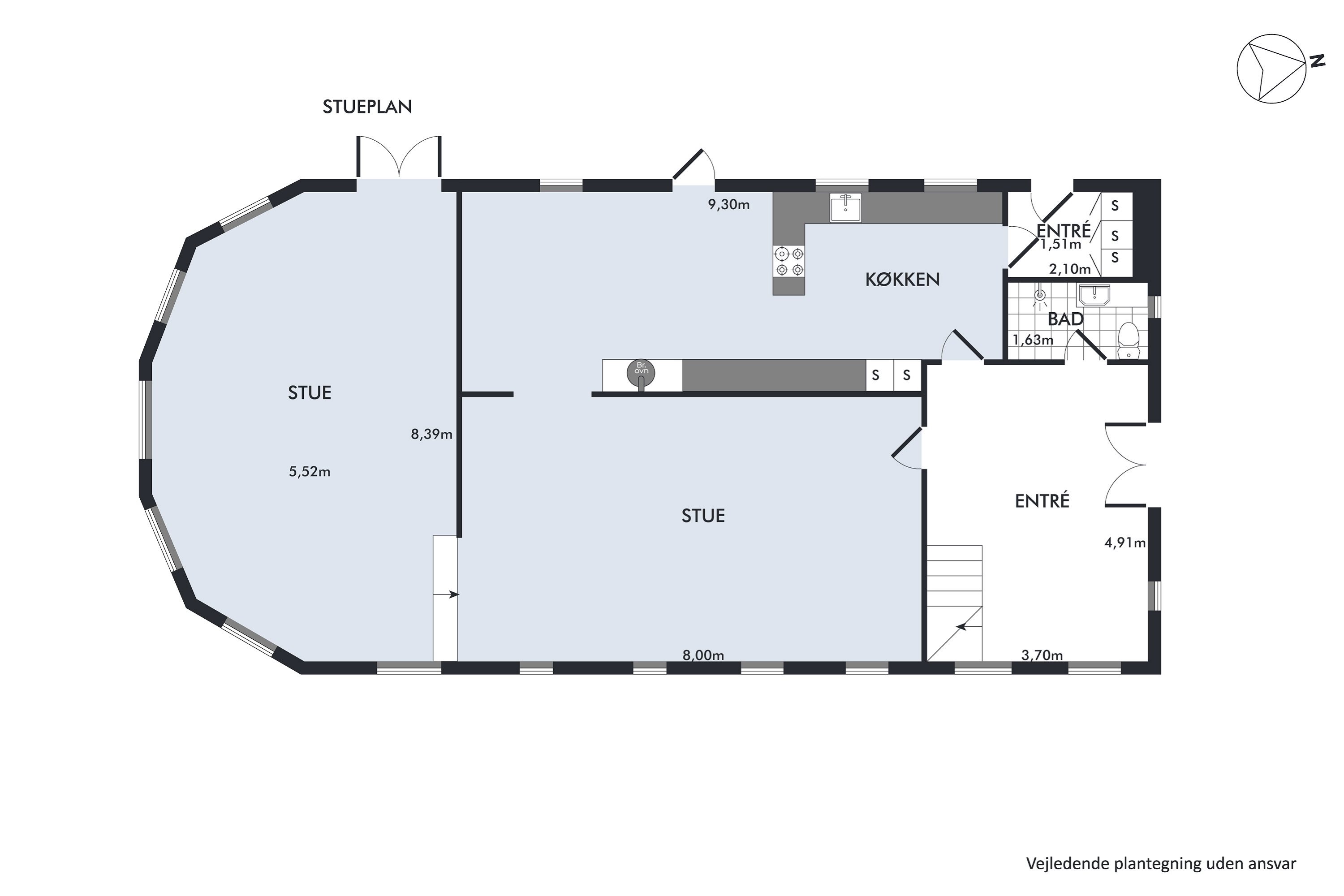
Indretning: Boligen er på i alt 235m2. Stor hall med trappe til 1.salen. Badeværelse med bruseniche, stort hyggeligt køkkenalrum, Stue/spisestue med gennemgående brændeovnsindsats til køkkenet. Nedsænket rummelig stue med masser af lys fra de mange vinduer - udgang til haven. 1.salen indeholder: Repos, 3 gode soveværelser samt meget stort badeværelse.
Udhuse: Ejendommen har flere gode udhuse i god stand og til flere forskellige formål.
185m2 - 51m2 godkendt bolig (anneks m/badeværelse, bryggers og 2 værelser). Derudover 134m2 stor garage/værksted med stor el-port.
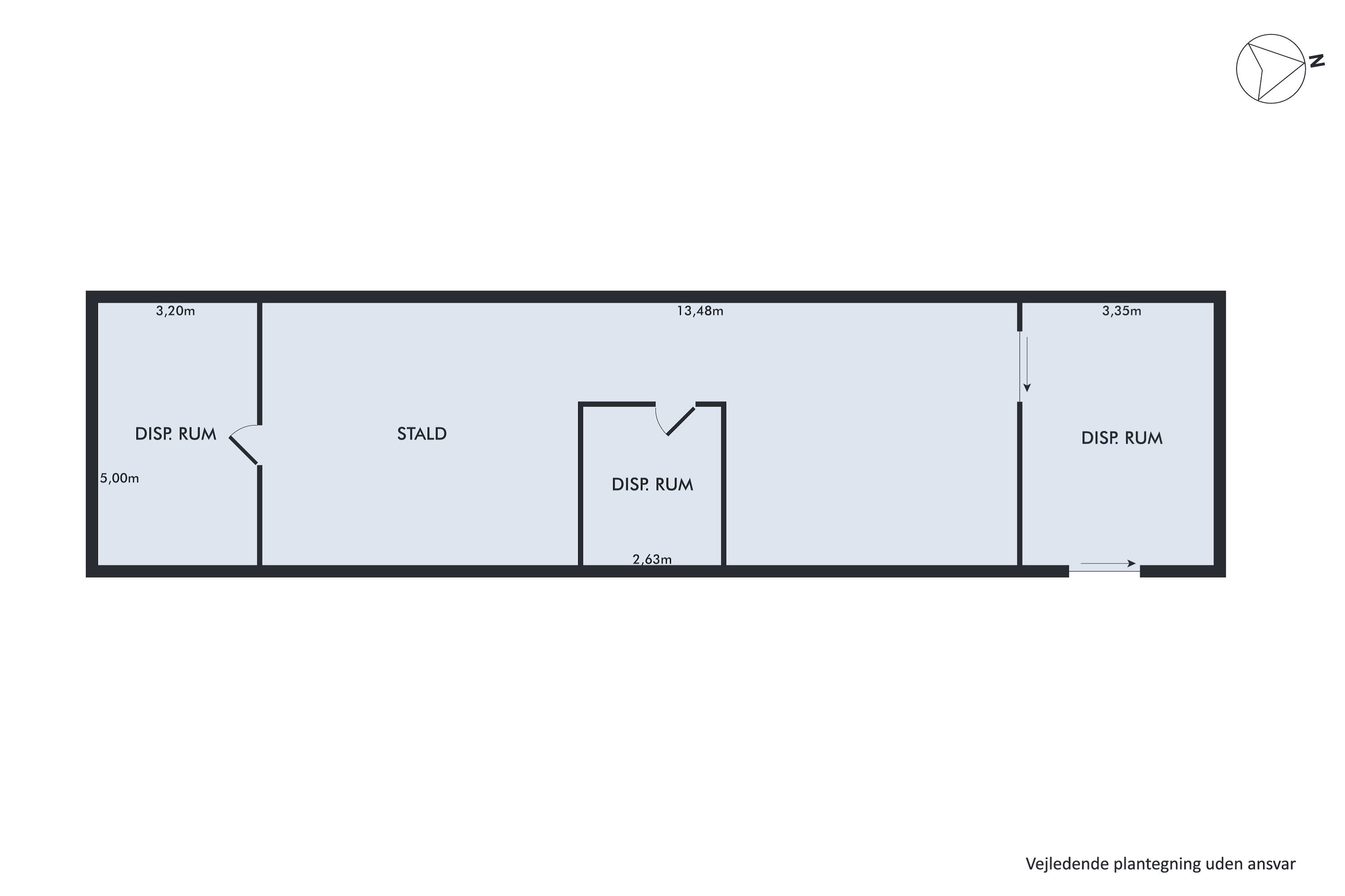
109m2 stald og flere disponible rum. Opført 1990
127m2 Garage og lagerbygning - Dobbeltgarage og lager/depot. Opført 1990
Masse af gode parkeringsmuligheder - uanset om det er til privat eller evt. erhverv.
Beliggenhed: Ejendommen ligger lige ved siden af "Banestien" som fører direkte og sikkert til bymidten med skole, indkøb, offentlig transport og DGI-Huset med svømmehal og fitnesscenter.
En lille landejendom i byen... En virkelig speciel ejendom, som SKAL opleves!
Måske har du det perfekte formål?
Økonomien i boligen
Skal Nykredit Bank ringe for en snak om din boligøkonomi?
Fortæl os, hvornår det passer dig, så ringer en rådgiver fra Nykredit Bank dig op til en uforpligtende snak om dine lånemuligheder. Så er du et skridt tættere på din nye bolig.
Vi bruger dine oplysninger til at forberede samtalen. Læs mere i Nykredit Banks privatlivspolitik
Kontakt

Kontakt
Mathias Nørskou Overgaard
Skal du også sælge?
Kontakt os og få en gratis salgsvurdering, så ved du hvad din bolig er værd.
- Få et hurtigt estimat af salgspris eller en grundig vurdering.
- Få et indblik i, hvad din ejendom er værd på markedet lige nu.
- Find ud af, hvor meget du selv kan købe for, hvis du ønsker at skifte bolig.
Hvor langt er der til nærmeste?
Se hvor lang tid der er mellem denne bolig og en anden adresse
Fakta om Jammerbugt Kommune
INDBYGGERE
GRUNDSKYLD
KOMMUNESKAT
SKOLER
BØRNEPASNING
Opret dig i køberkartoteket og få besked om lignende boliger.
Få direkte besked, når der kommer relevante nye boliger til salg, der matcher dine ønsker. Du ser også de boliger, vi får til salg, som vi ikke viser på Nybolig.dk.
Tilpas filtre og opret