Mulighedsrig bolig centralt i Arden
Med en placering på Østergade 2 får du en bolig på en lukket vej i hjertet af stationsbyen Arden med kort afstand til hverdagens fornødenheder.
Ejendommen er i dag registreret som flerfamilieshus med tre beboelseslejemål. Boligen er mærket af tidens tand og trænger til et frisk pust i form af istandsættelse. Så her er et spændende potentiale og mange muligheder for at omdanne og sætte dit eget præg, hvad enten boligen erhverves med henblik på udlejning, delvis udlejning eller privat beboelse, hvis du har en større familie som har behov for mange kvadratmeter.
Byen rummer det meste en familie skal bruge i hverdagen bl.a. et fint udvalg af indkøbsmuligheder og den populære Arden skole, børnehave, sports -og svømmehal. Ligeledes bydes der også på en skøn naturlegeplads med tilknyttet dyrepark med masser af aktiviteter.
Der er gode togforbindelser både mod nord og syd, så det er altid hurtigt og nemt at pendle til storbyernes kulturelle seværdigheder, gågader, madoplevelser – ellers bare på arbejde.
Er du til naturoplevelser? Så er der kort afstand til Rold Skov samt den dertil liggende smukke natur. Her kan du udfordre dig selv på mountainbike i det vilde bakker, går ture på de mange markerede vandreruter eller leje kano til en sejltur på Lindenborg Å
Stueplanen er på 95 kvm og indeholder: to stuer en suite, entre med trappe til første sal, fordelingsgang og 4 værelser.
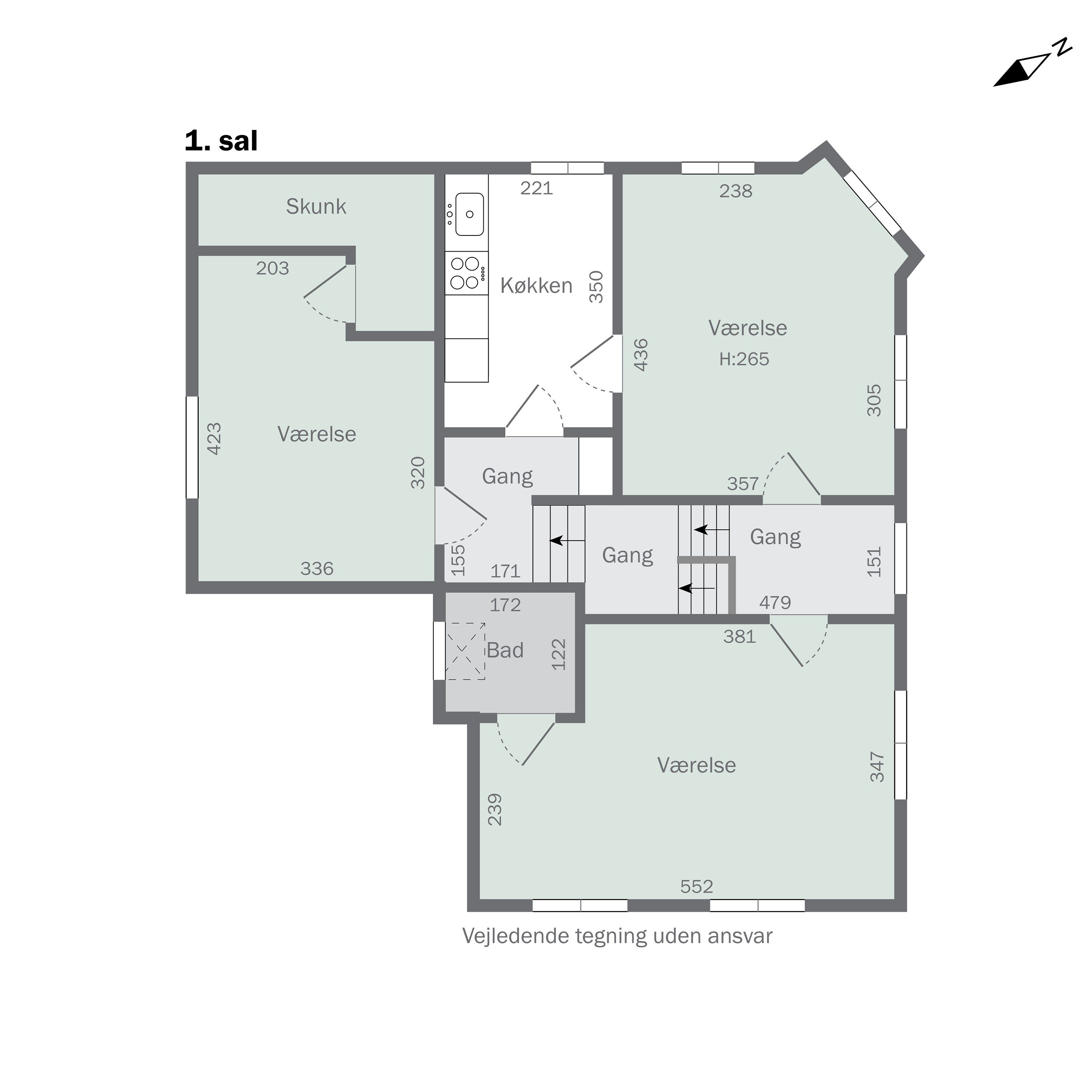
Førstesalen er på 65 kvm og indeholder: køkken, en gang, stue, to værelser og et badeværelse.
Kælderplan er på 80 kvm og indeholder: otte disponible rum
Afslutningsvis er der et udhus på 61 kvm med tre disponible rum og en garage.
Økonomien i boligen
Skal Nykredit Bank ringe for en snak om din boligøkonomi?
Fortæl os, hvornår det passer dig, så ringer en rådgiver fra Nykredit Bank dig op til en uforpligtende snak om dine lånemuligheder. Så er du et skridt tættere på din nye bolig.
Vi bruger dine oplysninger til at forberede samtalen. Læs mere i Nykredit Banks privatlivspolitik
Kontakt

Kontakt
Ole Rishøj
Skal du også sælge?
Kontakt os og få en gratis salgsvurdering, så ved du hvad din bolig er værd.
- Få et hurtigt estimat af salgspris eller en grundig vurdering.
- Få et indblik i, hvad din ejendom er værd på markedet lige nu.
- Find ud af, hvor meget du selv kan købe for, hvis du ønsker at skifte bolig.
Hvor langt er der til nærmeste?
Se hvor lang tid der er mellem denne bolig og en anden adresse
Fakta om Mariagerfjord Kommune
INDBYGGERE
GRUNDSKYLD
KOMMUNESKAT
SKOLER
BØRNEPASNING
Opret dig i køberkartoteket og få besked om lignende boliger.
Få direkte besked, når der kommer relevante nye boliger til salg, der matcher dine ønsker. Du ser også de boliger, vi får til salg, som vi ikke viser på Nybolig.dk.
Tilpas filtre og opret