Indbydende villa fra 1947 med moderne livsstil, plads og hyggelig atmosfære.
Midt i hyggelige Farsø ligger denne flot moderniserede villa, der nu kan blive jeres. Huset byder på tre velindrettede etager, inklusiv en god underetage, og der er yderligere bonuskvadratmeter i en hyggelig udestue. Som endnu nogle plusser får I solceller, en skøn baghave, der er anlagt med et stort terrassemiljø og flere solkroge.
Ejendommen er fra 1947, og den præsenterer sig med pæn murstensfacade, hvide vinduesrammer og mørkt tag. Inden døre er hele boligen holdt i lyse nuancer, hvilket bidrager til hjemmets dejlige atmosfære.
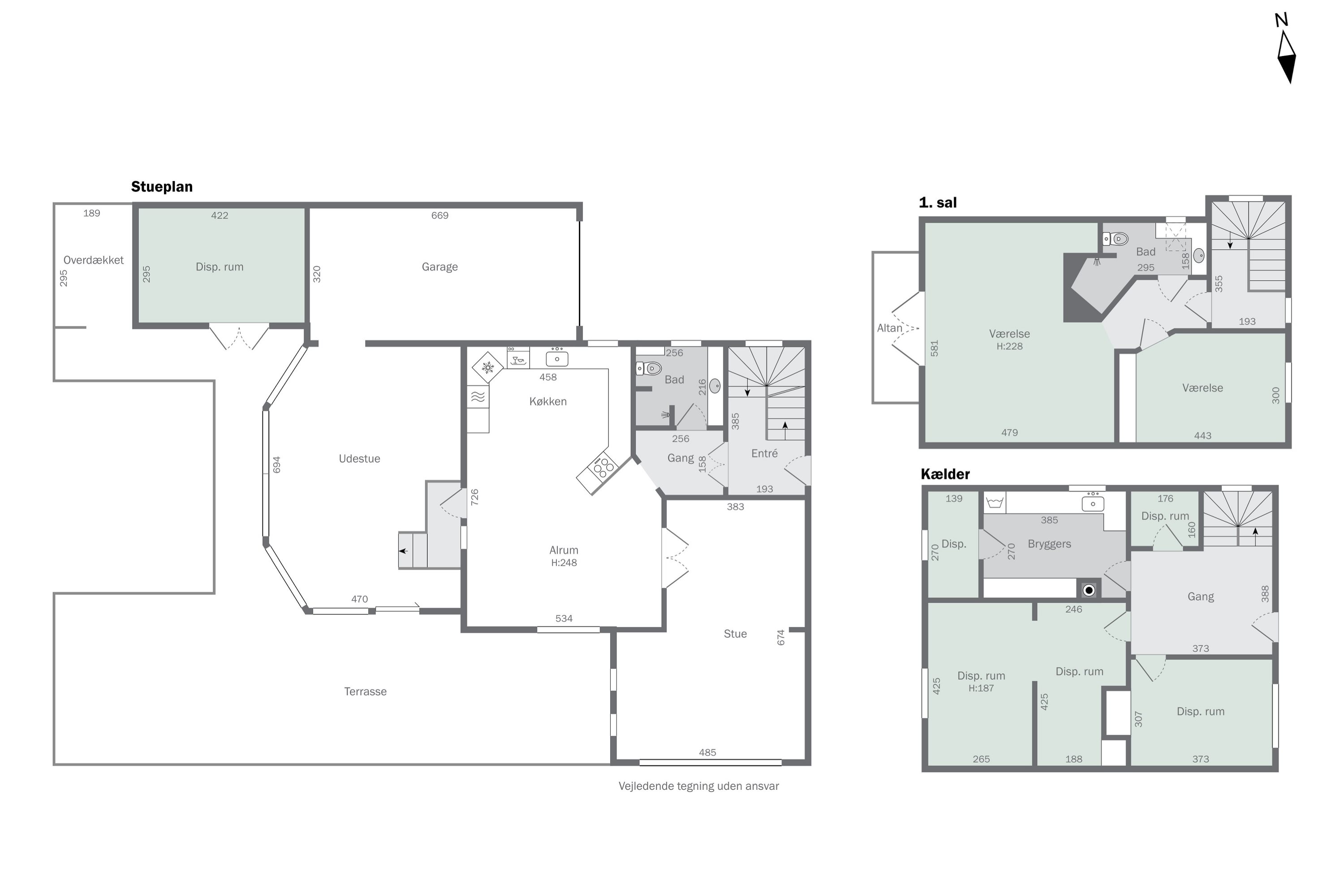
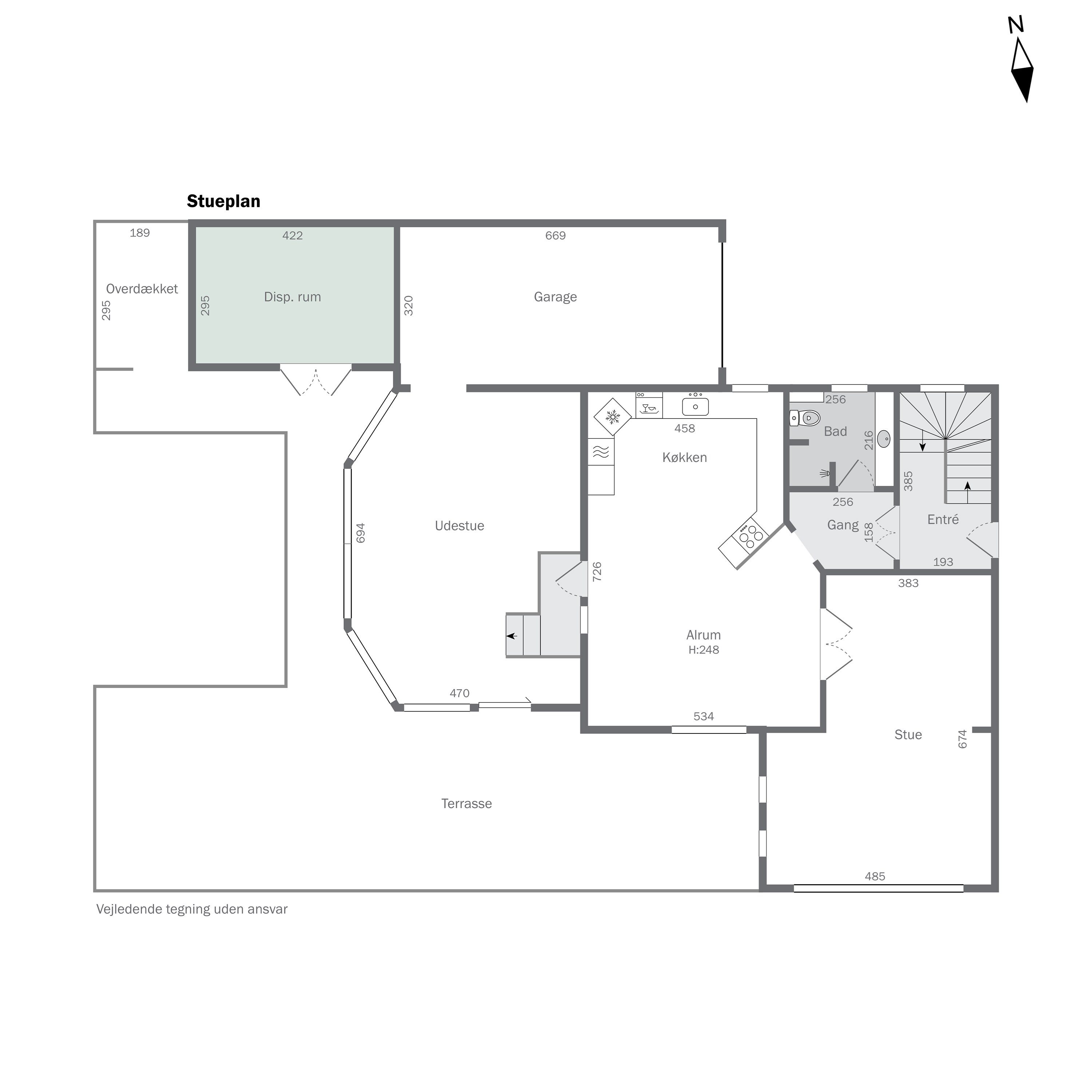
Husets stueplan indeholder en sydvendt stue og et stort, åbent køkken-alrum. Her er talrige indretningsmuligheder, og i køkkenet kan I let være sammen om madlavningen. Fra køkken-alrummet er der desuden terrassedør til den førnævnte udestue.
Foruden en entré inkluderer stueplanet et badeværelse, der har muret bruseniche.
På første sal finder I endnu et badeværelse samt to værelser. Det ene værelse har indbygget garderobeskab, mens det største værelse har dobbeltdør ud til en lille altan.
Den 60 kvadratmeter store underetage har et bryggers og et par opmagasineringsrum samt to gode disponible rum.
I udestuen er der plads til det lange spisebord, og her kan I sidde tørt og godt og nyde udsynet over haven. Udestuen har forbindelse til ejendommens garage, og her er også udgang til havens terrasse.
Haven har buske, små træer og blomsterbede samt et stort terrasseareal, der får sol fra henholdsvis syd og vest. I forlængelse af garagen er der endvidere opført et udhus og et haveskur.
Villaen ligger for enden af en lukket vej - under 100 meter fra Farsø Skole. Nærmeste daginstitution kan nås til fods, og det samme gælder de mange sportsfaciliteter.
Økonomien i boligen
Skal Nykredit Bank ringe for en snak om din boligøkonomi?
Fortæl os, hvornår det passer dig, så ringer en rådgiver fra Nykredit Bank dig op til en uforpligtende snak om dine lånemuligheder. Så er du et skridt tættere på din nye bolig.
Vi bruger dine oplysninger til at forberede samtalen. Læs mere i Nykredit Banks privatlivspolitik
Kontakt

Kontakt
Jacob Andersen
Skal du også sælge?
Kontakt os og få en gratis salgsvurdering, så ved du hvad din bolig er værd.
- Få et hurtigt estimat af salgspris eller en grundig vurdering.
- Få et indblik i, hvad din ejendom er værd på markedet lige nu.
- Find ud af, hvor meget du selv kan købe for, hvis du ønsker at skifte bolig.
Hvor langt er der til nærmeste?
Se hvor lang tid der er mellem denne bolig og en anden adresse
Fakta om Vesthimmerland Kommune
INDBYGGERE
GRUNDSKYLD
KOMMUNESKAT
SKOLER
BØRNEPASNING
Opret dig i køberkartoteket og få besked om lignende boliger.
Få direkte besked, når der kommer relevante nye boliger til salg, der matcher dine ønsker. Du ser også de boliger, vi får til salg, som vi ikke viser på Nybolig.dk.
Tilpas filtre og opret