Stor familievilla i Lørslev
Børnefamilien vil stortrives på Vænget 11 i den idylliske landsby Lørslev nær Hjørring. Boligens 240 kvadratmeter byder på en separat forældreafdeling og et børneafsnit samt to stuer og et køkken-alrum, mens prikken over i’et er den solrige have.
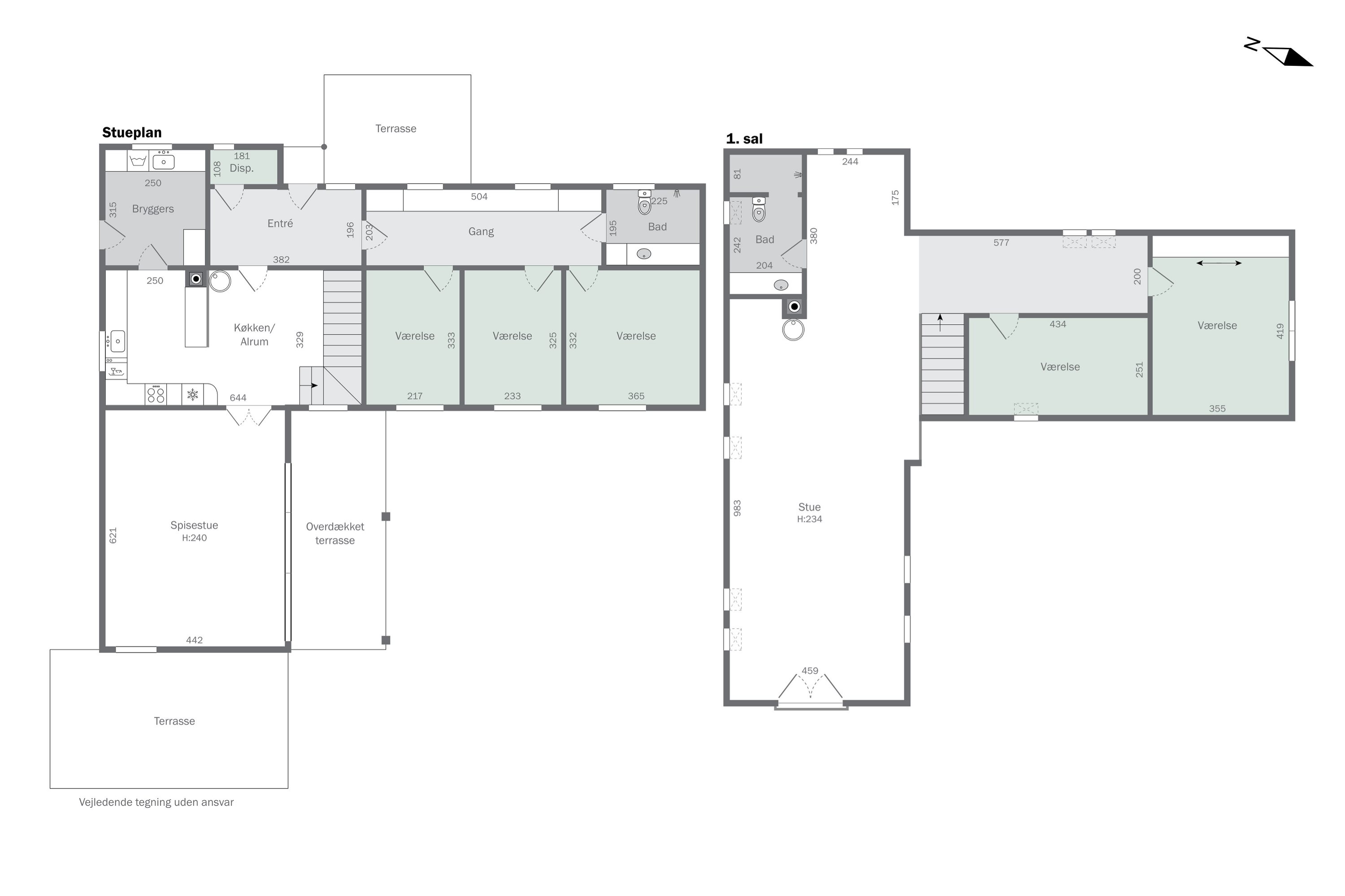
Villaen er oprindeligt opført som skoleinspektørbolig i 1969, hvoraf stueetagen er fuldmuret, mens førstesalen kom til i 1993. Taget er skiftet i 2017/2018, ligesom der er ekstra isoleret i hulmuren og på tagetagen.
Stueetagen er dedikeret til et pænt køkken-alrum med spiseplads og brændeovn, og tilstødende ligger en dejlig, lys spisestue, så det er også muligt at åbne op mellem rummene og skabe et moderne køkken-alrum og stue i ét. Bryggerset ligger klos op ad køkkenet, hvilket gør det nemt at komme af med de nyindkøbte dagligvarer.
Børnene kan få deres egen afdeling nedenunder, da der er tre værelser og et badeværelse, mens forældrene kan nyde roen på førstesalen. Her findes to gode værelser, et badeværelse samt en stor dagligstue, hvor dagslyset strømmer ind fra alle verdenshjørner, og brændeovnen skaber en hyggelig atmosfære i vinterhalvåret.
Til villaen hører en nem have, hvor de mange terrasser og hyggelige kroge gør det muligt at nyde solen på alle tidspunkter af dagen. Samtidig er der to indkørsler, en dobbelt carport og et udhus.
Beliggenheden er ideel for familien, der drømmer om at være en del af et stærkt lokalsamfund. Lørslev Café og Kulturhus har både fællesspisning, kortspil og strikkeklub, ligesom det er muligt at bestille dagligvarer eller hente morgenbrød i weekenden. Byen har en spændende pumptrack cykelbane, hundeskov, grønne spejdere og landsbyfest, og både friskolen og børnehaven ligger rundt om hjørnet. Endelig er både motorvejen og Hjørring let tilgængelige.
Økonomien i boligen
Skal Nykredit Bank ringe for en snak om din boligøkonomi?
Fortæl os, hvornår det passer dig, så ringer en rådgiver fra Nykredit Bank dig op til en uforpligtende snak om dine lånemuligheder. Så er du et skridt tættere på din nye bolig.
Vi bruger dine oplysninger til at forberede samtalen. Læs mere i Nykredit Banks privatlivspolitik
Kontakt

Kontakt
Mads Hofmeister
Skal du også sælge?
Kontakt os og få en gratis salgsvurdering, så ved du hvad din bolig er værd.
- Få et hurtigt estimat af salgspris eller en grundig vurdering.
- Få et indblik i, hvad din ejendom er værd på markedet lige nu.
- Find ud af, hvor meget du selv kan købe for, hvis du ønsker at skifte bolig.
Hvor langt er der til nærmeste?
Se hvor lang tid der er mellem denne bolig og en anden adresse
Fakta om Hjørring Kommune
INDBYGGERE
GRUNDSKYLD
KOMMUNESKAT
SKOLER
BØRNEPASNING
Opret dig i køberkartoteket og få besked om lignende boliger.
Få direkte besked, når der kommer relevante nye boliger til salg, der matcher dine ønsker. Du ser også de boliger, vi får til salg, som vi ikke viser på Nybolig.dk.
Tilpas filtre og opret