Unikke fritidsgrunde ved skov og strand i Hejsager, Haderslev
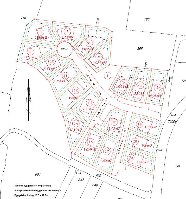
De 19 store grunde ligger uforstyrret i morænelandskabet, der hælder mod havet og giver dig en sjælden panoramaudsigt til både hav, skov og eng.
Fritidsgrundene ligger på et lukket og uforstyrret vænge. Her har man mulighed for at opføre det fritidshus, du går og drømmer om. Og med opførsel af et nyt, moderne og energivenlig fritidshus, giver det mulighed for at have et ekstra sted at benytte som hjemmekontor og tilflugtssted, når du trænger til arbejdsro og fordybelse.
Grundene har spændende potentiale for, at du i dit byggeri kan lukke naturen og det smukke, naturligt lys med helt ind i dit hjem.
På den store grund har du rig mulighed for at skabe en privat have, hvor du ugeneret kan nyde livet med familie og venner – eller til en stille stund på terrassen.
Iht. Lokalplan må bebyggelsesprocenten ikke overstige 15% for den enkelte ejendom, dog må etageareal ikke overstige 150m2 og højst 1 etage, dog forskudte etageplan, som følger det naturlige terrænfald på grunden og bygningshøjden på beboelsesbygningen må ikke overstige 5m over terræn - der henvises i øvrigt til lokalplan 22-1 for Sommerhusområde ved Hejsager Strandvej, Hejsager.
Der er ingen byggepligt på grundene. Byggemodningen forventes afsluttet pr. 01.01.2022
www.hejsagerstrandblik.dk
Økonomien i boligen
Skal Nykredit Bank ringe for en snak om din boligøkonomi?
Fortæl os, hvornår det passer dig, så ringer en rådgiver fra Nykredit Bank dig op til en uforpligtende snak om dine lånemuligheder. Så er du et skridt tættere på din nye bolig.
Vi bruger dine oplysninger til at forberede samtalen. Læs mere i Nykredit Banks privatlivspolitik
Kontakt

Kontakt
Hans Sørensen
Skal du også sælge?
Kontakt os og få en gratis salgsvurdering, så ved du hvad din bolig er værd.
- Få et hurtigt estimat af salgspris eller en grundig vurdering.
- Få et indblik i, hvad din ejendom er værd på markedet lige nu.
- Find ud af, hvor meget du selv kan købe for, hvis du ønsker at skifte bolig.
Hvor langt er der til nærmeste?
Se hvor lang tid der er mellem denne bolig og en anden adresse
Fakta om Haderslev Kommune
INDBYGGERE
GRUNDSKYLD
KOMMUNESKAT
SKOLER
BØRNEPASNING
Opret dig i køberkartoteket og få besked om lignende boliger.
Få direkte besked, når der kommer relevante nye boliger til salg, der matcher dine ønsker. Du ser også de boliger, vi får til salg, som vi ikke viser på Nybolig.dk.
Tilpas filtre og opret