Hyggeligt Nordic Plus 8 hus i 1 ½ plan, ligger som et af få tæt på centeret
Dette charmerende, og Hyggelige 8 pers. feriehus er et fritliggende 1½-plans feriehus af typen Nordic Plus 8 er beliggende tæt på Lalandia i Billund, nær to af Danmarks mest populære turistattraktioner, Legoland og Lego House.
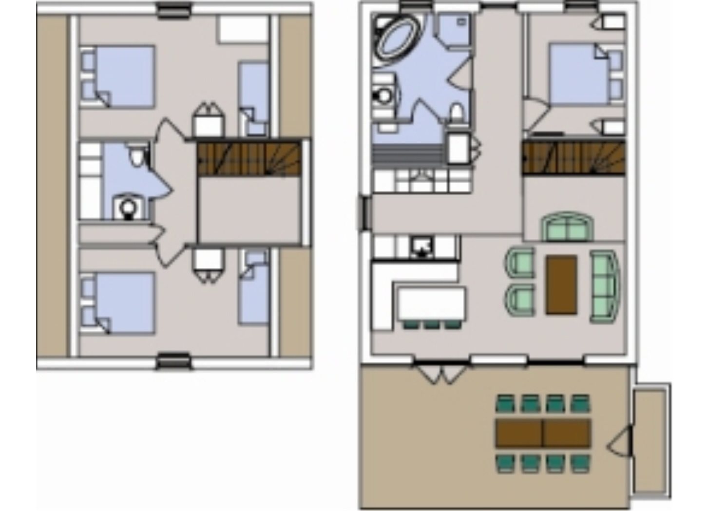
Huset byder i stueplan på en lys entré og et rummeligt badeværelse, køkken, stue samt et komfortabelt soveværelse med dobbeltseng. Huset ligger på vejlomme. tæt på centeret , som et af de få huse.
Badeværelset er den perfekte oase til afslapning og wellness. Med et luksuriøst hjørnespa og en indbydende sauna kan du forkæle dig selv med en afslappende spabehandling, der giver både krop og sind ro. Brusenichen tilbyder mulighed for en forfriskende bruser, og den stilfulde indretning skaber en harmonisk atmosfære, hvor du kan lade stress og hverdagens travlhed glide væk. Med de moderne faciliteter og det velgennemtænkte design er badeværelset ideelt til at skabe dit eget private wellness-univers. med hjørnespa, sauna og bruseniche.
Køkkenet er både funktionelt og stilfuldt, med moderne Invita-inventar og kvalitets-hvidevarer, der giver dig alt, hvad du behøver for at tilberede lækre måltider. Den åbne forbindelse til spise-
og opholdsstuen skaber en rummelig og lys atmosfære, hvor familiens samvær er i fokus. De store vinduespartier lader naturligt lys strømme ind og giver adgang til en dejlig terrasse.
Dette område indbyder til både afslapning og sociale aktiviteter, hvor man kan nyde tid sammen med familien.
På tagetagen findes en repos med udsigt til stuen, et gæstetoilet, to soveværelser med dobbeltsenge samt en enkeltseng. Der er loft til kip, hvilket giver en åben og rummelig følelse.
I hele stueplan er der gulvvarme, og alt inventar stammer fra Invita, mens køkkenet er udstyret med kvalitets-hvidevarer. Huset har fiberbredbånd med 100/100 Mbit/s samt fladskærms-TV med både danske og internationale kanaler, herunder Lalandia's egen infokanalsystem.  Der er desuden et tilhørende praktisk redskabsrum på 3 m², som kun ejere har adgang til.
Feriehuset er ideelt til 8 personer + et barn og ligger i nærheden af en 18-hullers golfbane ved Grene Sande. Der er indgået en lejeaftale med Lalandia Billund A/S, som giver en estimeret årlig lejeindtægt på 180.000 kr. (baseret på tal fra 2024). Alle feriehusene af samme type forventes at opnå samme lejeindtægt. Køberen overtager alle sælgers rettigheder og forpligtelser i forbindelse med lejeaftalen med Lalandia Billund A/S.
Økonomien i boligen
Skal Nykredit Bank ringe for en snak om din boligøkonomi?
Fortæl os, hvornår det passer dig, så ringer en rådgiver fra Nykredit Bank dig op til en uforpligtende snak om dine lånemuligheder. Så er du et skridt tættere på din nye bolig.
Vi bruger dine oplysninger til at forberede samtalen. Læs mere i Nykredit Banks privatlivspolitik
Kontakt
 
                Kontakt
Frank Hjortkær Thorsgaard
Skal du også sælge?
Kontakt os og få en gratis salgsvurdering, så ved du hvad din bolig er værd.
- Få et hurtigt estimat af salgspris eller en grundig vurdering.
- Få et indblik i, hvad din ejendom er værd på markedet lige nu.
- Find ud af, hvor meget du selv kan købe for, hvis du ønsker at skifte bolig.
Hvor langt er der til nærmeste?
Se hvor lang tid der er mellem denne bolig og en anden adresse
Fakta om Billund Kommune
INDBYGGERE
GRUNDSKYLD
KOMMUNESKAT
SKOLER
BØRNEPASNING
Opret dig i køberkartoteket og få besked om lignende boliger.
Få direkte besked, når der kommer relevante nye boliger til salg, der matcher dine ønsker. Du ser også de boliger, vi får til salg, som vi ikke viser på Nybolig.dk.
Tilpas filtre og opret