Fritidshus 89 m² | 4 soveværelser på 2.710 m² grund tæt ved kysten
Forestil dig at vågne til en betagende, panoramisk udsigt over Limfjorden — skiftende lys, sejlbåde mod horisonten og magiske solnedgange, som fylder rummet og trækker blikket ud gennem de brede glaspartier og fra terrassen.
Udsigten er husets store styrke og nærmest en del af dagligdagen. Huset ligger kun et stenkast fra vandet; en kort sti fører ned til kysten og stranden, hvor badning, kajak- og fisketure er mulige.
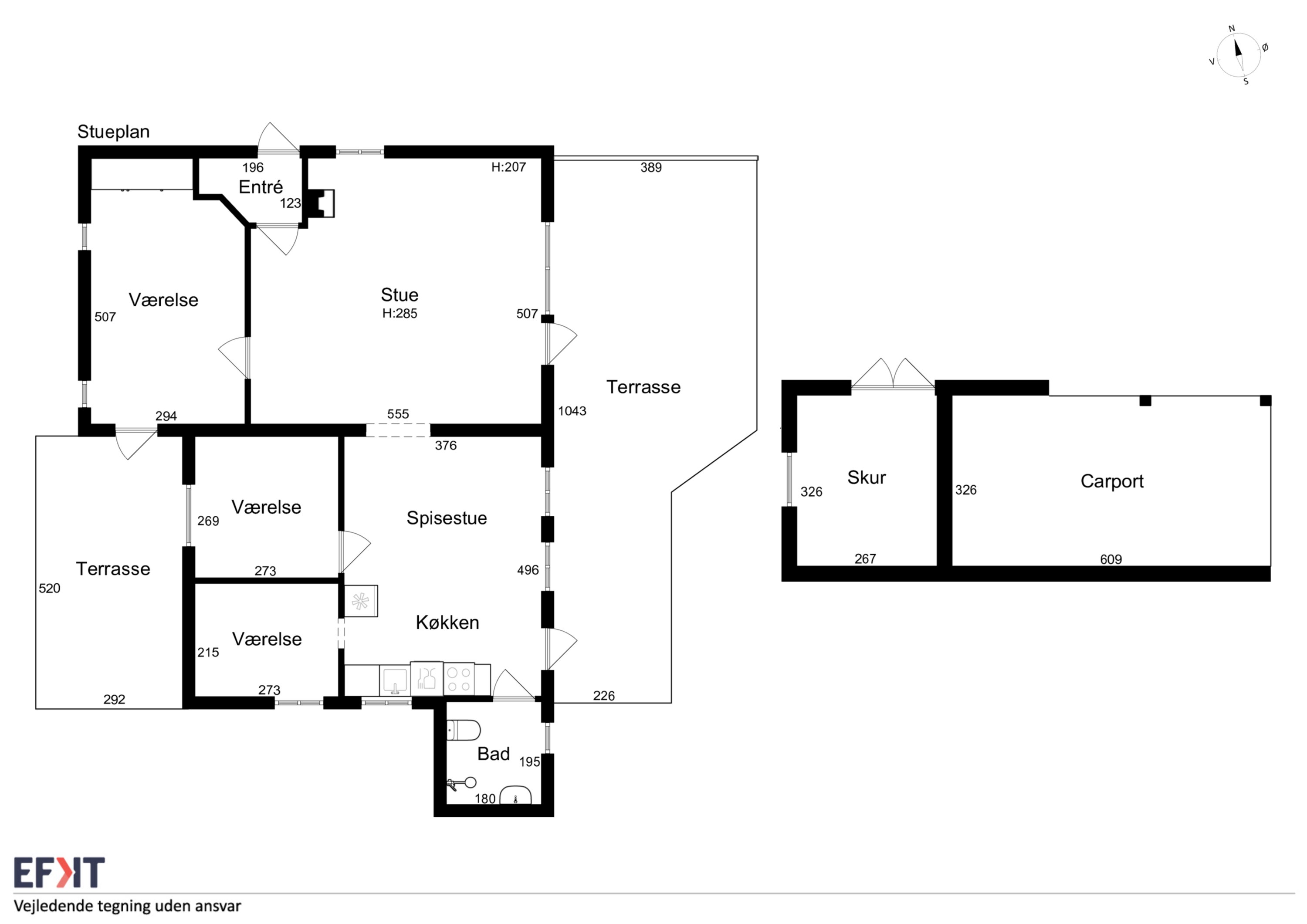
Indendørs er planløsningen enkel og funktionel: stue og køkken/spisestue med store glasdøre mod terrassen, så dagslyset strømmer ind. Der er 3 værelser og 1 stue samt et badeværelse — velegnet til familie og gæster.
Udearealerne er et stort aktiv: solvendt terrasse direkte fra stuen, åbent græsareal til leg, bål eller afslapning samt fritliggende skur og carport til opbevaring.
Fra haven er der frit kig mod Limfjorden, og den korte afstand til stranden gør kystliv og rekreation lettilgængeligt. Huset er opført i 1959 og blev renoveret i 1997 — et ideelt sommersted for dem, der søger en enestående fjordudsigt og nærhed til vandet.
Kom og oplev udsigten selv.
Økonomien i boligen
Skal Nykredit Bank ringe for en snak om din boligøkonomi?
Fortæl os, hvornår det passer dig, så ringer en rådgiver fra Nykredit Bank dig op til en uforpligtende snak om dine lånemuligheder. Så er du et skridt tættere på din nye bolig.
Vi bruger dine oplysninger til at forberede samtalen. Læs mere i Nykredit Banks privatlivspolitik
Kontakt

Kontakt
Kasper Bøgelund
Skal du også sælge?
Kontakt os og få en gratis salgsvurdering, så ved du hvad din bolig er værd.
- Få et hurtigt estimat af salgspris eller en grundig vurdering.
- Få et indblik i, hvad din ejendom er værd på markedet lige nu.
- Find ud af, hvor meget du selv kan købe for, hvis du ønsker at skifte bolig.
Hvor langt er der til nærmeste?
Se hvor lang tid der er mellem denne bolig og en anden adresse
Fakta om Aalborg Kommune
INDBYGGERE
GRUNDSKYLD
KOMMUNESKAT
SKOLER
BØRNEPASNING
Opret dig i køberkartoteket og få besked om lignende boliger.
Få direkte besked, når der kommer relevante nye boliger til salg, der matcher dine ønsker. Du ser også de boliger, vi får til salg, som vi ikke viser på Nybolig.dk.
Tilpas filtre og opret