Charmerende fritidshus med lys stue, terrasse og frodig have. Oplev det nu!
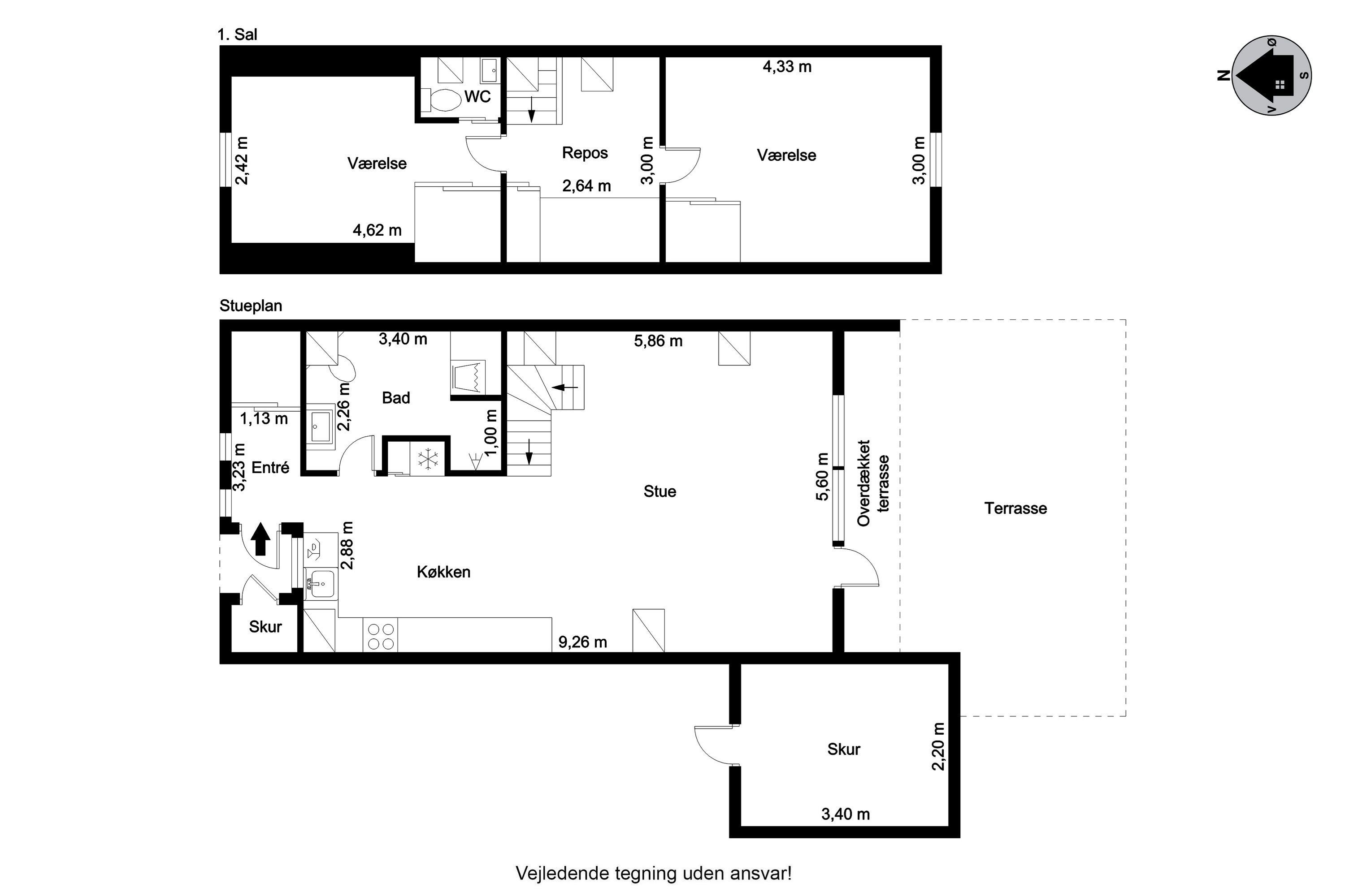
Her på Golfsvinget 246 ved feriecentret HimmerLand møder der jer et totalmoderniseret golfhus - hvor alle kvadratmeter er blevet renoveret i 2014 med bl.a. nyere tag samt isoleret i både vægge og med støbt betongulv. Her er alt blevet skiftet og det hele fremstår i pæn og velholdt stand - lige til at byde de nye ejere velkommen.Selve golfhuset fremstår i sin traditionelle arkitektur - men er fuldt udbygget med 10 fag og der møder jer indvendigt en god planløsning med bl.a. toilet på husets første sal - hvor I ligeledes finder to gode soverum. Stueplanet er med et pænt badeværelse med plads til vaskemaskine samt med en god størrelse bruseniche. Det nydelige og lyse Designa køkken er i åben forbindelse til stuen og fra stuen er der udgang til den ene af de to terrasser.Alt i alt fremstår boligens indvendige kvadratmeter lyse og med masser af plads - både til jer som familie men også til opbevaringsmuligheder på begge plan.Huset ligger desuden for enden på en lille stikvej med et stort grønt område på den ene side af huset. Her får I en fornemmelse af at have ekstra plads og luft omkring jer. Det giver samtidig lidt yderligere fleksibilitet, hvis der er en flok gæster på besøg, og alle bilerne skal parkeres, lige som ungerne også har lidt ekstra uderum boltre sig på, når de skal brænde energi af i den helt umiddelbare nærhed.Feriecentrets mange faciliteter og tilbud byder på næsten uanede muligheder for at få tiden til at gå med hyggelige, sjove og svedkrævende aktiviteter. Du kan tage en svømmetur eller dyrke fitness, ungerne kan finde legekammerater på legepladsen, og familie og venner kan i fællesskab sammen udforske resortets forskellige gastronomiske tilbud.Kontakt os allerede i dag for en fremvisning af dette fremragende golfhus i HimmerLand.
Økonomien i boligen
Skal Nykredit Bank ringe for en snak om din boligøkonomi?
Fortæl os, hvornår det passer dig, så ringer en rådgiver fra Nykredit Bank dig op til en uforpligtende snak om dine lånemuligheder. Så er du et skridt tættere på din nye bolig.
Vi bruger dine oplysninger til at forberede samtalen. Læs mere i Nykredit Banks privatlivspolitik
Kontakt

Kontakt
Jacob Andersen
Skal du også sælge?
Kontakt os og få en gratis salgsvurdering, så ved du hvad din bolig er værd.
- Få et hurtigt estimat af salgspris eller en grundig vurdering.
- Få et indblik i, hvad din ejendom er værd på markedet lige nu.
- Find ud af, hvor meget du selv kan købe for, hvis du ønsker at skifte bolig.
Hvor langt er der til nærmeste?
Se hvor lang tid der er mellem denne bolig og en anden adresse
Fakta om Vesthimmerland Kommune
INDBYGGERE
GRUNDSKYLD
KOMMUNESKAT
SKOLER
BØRNEPASNING
Opret dig i køberkartoteket og få besked om lignende boliger.
Få direkte besked, når der kommer relevante nye boliger til salg, der matcher dine ønsker. Du ser også de boliger, vi får til salg, som vi ikke viser på Nybolig.dk.
Tilpas filtre og opret