Med adresse her på Golfsvinget 19 har du ikke bare sikret dig et rigtig godt udgangspunkt for mange timer og dage under åben himmel på de flotte huller, som HimmerLand kan tilbyde. På egen matrikel er du i høj grad også sikret indbydende og hyggelige rammer.
Huset ligger i "Slangen" i den vestlige del af området, hvor du på den ene side får ekstra plæneplade og på den anden sidder helt ugeneret med udsigt til skoven. Det giver samtidig lidt yderligere fleksibilitet, hvis der er en flok gæster på besøg, og alle bilerne skal parkeres, lige som ungerne også har lidt ekstra uderum boltre sig på, når de skal brænde energi af i den helt umiddelbare nærhed.
Resortets mange faciliteter og tilbud byder nu også på næsten uanede muligheder for at få tiden til at gå med hyggelige, sjove og svedkrævende aktiviteter. Du kan tage en svømmetur eller dyrke fitness, ungerne kan finde legekammerater på legepladsen, og familie og venner kan i fællesskab sammen udforske resortets forskellige gastronomiske tilbud.
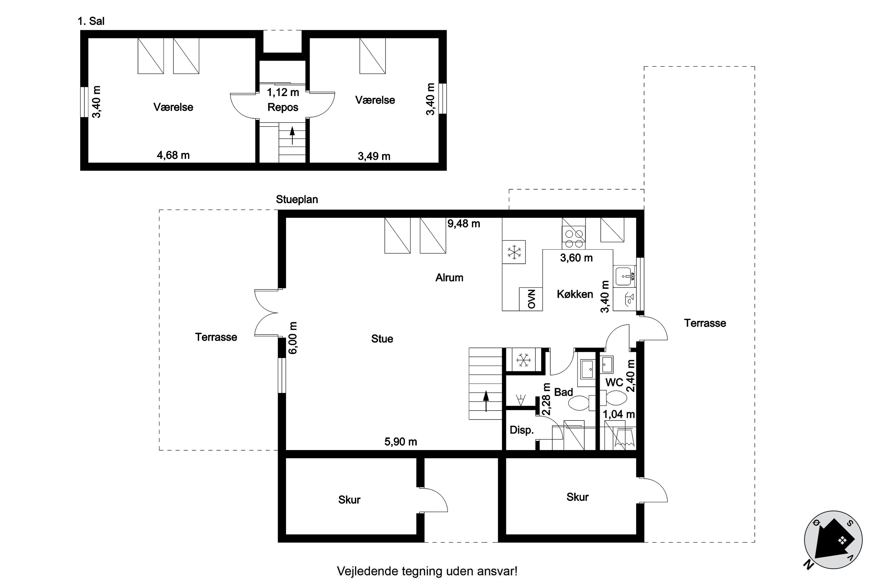
Selve fritidshuset er opført i 1983, er det totalrenoveret i 2023 i høj kvalitet, og fremstår i rigtig flot stand og med gode detaljer. Pladsen er fornuftigt disponeret med opholdsafdeling i stueplan og soveafdeling på første sal. Opholdsafsnittet giver dig stue, alrum og køkken i åben forbindelse. Køkkenet er funktionelt indrettet med gode løsninger. I stueplan er der el gulvvarme til de køligere dage, og så snart solen er fremme, kan du åbne ud til de hyggelige terrasser, der er velafskærmet på alle sider - og som således både er ugeneret og velplaceret i forhold til solen.
Stueplan byder endvidere på et nydeligt indrettet brusebadeværelse og gæstetoilet, mens der på første sal er to soveværelser.
Kontakt os for en fremvisning.
Økonomien i boligen
Skal Nykredit Bank ringe for en snak om din boligøkonomi?
Fortæl os, hvornår det passer dig, så ringer en rådgiver fra Nykredit Bank dig op til en uforpligtende snak om dine lånemuligheder. Så er du et skridt tættere på din nye bolig.
Vi bruger dine oplysninger til at forberede samtalen. Læs mere i Nykredit Banks privatlivspolitik
Kontakt

Kontakt
Jacob Andersen
Skal du også sælge?
Kontakt os og få en gratis salgsvurdering, så ved du hvad din bolig er værd.
- Få et hurtigt estimat af salgspris eller en grundig vurdering.
- Få et indblik i, hvad din ejendom er værd på markedet lige nu.
- Find ud af, hvor meget du selv kan købe for, hvis du ønsker at skifte bolig.
Hvor langt er der til nærmeste?
Se hvor lang tid der er mellem denne bolig og en anden adresse
Fakta om Vesthimmerland Kommune
INDBYGGERE
GRUNDSKYLD
KOMMUNESKAT
SKOLER
BØRNEPASNING
Opret dig i køberkartoteket og få besked om lignende boliger.
Få direkte besked, når der kommer relevante nye boliger til salg, der matcher dine ønsker. Du ser også de boliger, vi får til salg, som vi ikke viser på Nybolig.dk.
Tilpas filtre og opret