Idyllisk hobbylandbrug med maskinhus fra 2005.
Idyllisk hobbylandbrug med maskinhus fra 2005.
Går du og leder efter en "perle" på landet, som er renoveret med respekt for husets oprindelige arkitektur og som samtidig byder på moderne bekvemmeligheder som eksempelvis gulvvarme - findes her i en del af stueplan, så skal du måske se nærmere på denne fantastiske ejendom.
Ejendommen ligger mellem Struer og Holstebro (ca. 12 min. kørsel). Med ankomst ad mindre grusvej åbner grunden sig op, og du bliver mødt af høje træer, en oprenset sø, et velholdt stuehus samt en stor have, der umiddelbar giver en følelse af højt til loftet og landlig idyl. Fra den store terrasse kan sommeraftenerne nydes i godt selskab med famlie og venner. Hvis vejret ikke arter sig, kan man vælge at placere sig i det lyse og indbydende køkken-alrum, der er placeret i hele husets bredde, eller ved det ekstra spisebord i stuen.
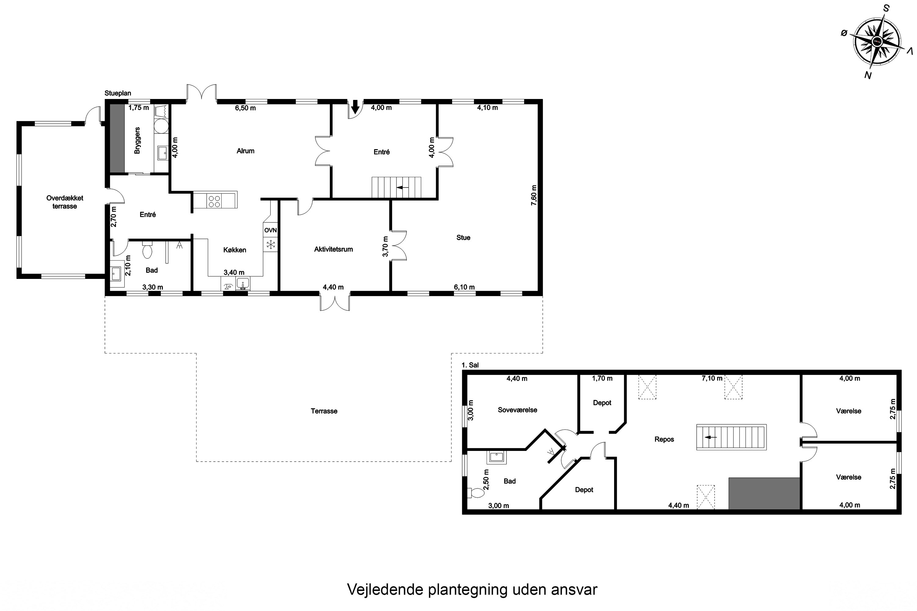
I boligen bliver du budt velkommen i en fantastisk hall, hvor du har direkte adgang til stuen, køkken-alrummet eller 1. salen. Overalt i boligen er sammenhængen mellem det originale håndværk og det moderne udtryk udført til perfektion. Kombinationen af trægulv, New Yorker vægge og flotte udskæringer given en helt speciel følelse. Den store stue er perfekt til hygge og afslapning, mens den anden stue i dag fungerer som legeværelse - den kunne også anvendes som soveværelse, spisestue eller kontor. I køkken-alrummet, hvor der er gulvvarme, er der plads til det store plankebord, og man kan sagtens være i køkkenet og følge med i samtalen ved bordet. I den bagerste del af stueplan er der enkelt og funktionelt badeværelse med gulvvarme, bagindgang og separat brygges, der kan lukkes med en "stalddør". Bagdøren leder dig ud på den lukkede terrasse og videre ud på terrasse nr. 2, der er en integreret del af gårdspladsen.
1. sal er lys og indbydende og byder på stort aktivitets- og fællesrum, 2 gode børneværelser, et mindre påklædningsrum (med mulighed for et ekstra påklædningsrum), soveværelse samt badeværelse med bruseniche og skibsplankegulv.
Til ejendommen hører værksted, gammel stald, maskinhus på ca. 130 m² fra 2005 - muret og med stålspær samt dobbelt carport med historisk opbevaringsrum. Herudover er der god mulighed for hestehold på de 3,6 ha jord, der består af søer, græsmarker og en mindre lavning. Der er registreret beskyttede jord og stendiger mod det sydlige skel.
En ejendom som skal opleves.
Økonomien i boligen
Skal Nykredit Bank ringe for en snak om din boligøkonomi?
Fortæl os, hvornår det passer dig, så ringer en rådgiver fra Nykredit Bank dig op til en uforpligtende snak om dine lånemuligheder. Så er du et skridt tættere på din nye bolig.
Vi bruger dine oplysninger til at forberede samtalen. Læs mere i Nykredit Banks privatlivspolitik
Kontakt

Kontakt
Jesper Gammelmark
Skal du også sælge?
Kontakt os og få en salgsvurdering, så ved du hvad din bolig er værd.
- Få et hurtigt estimat af salgspris eller en grundig vurdering.
- Få et indblik i, hvad din ejendom er værd på markedet lige nu.
- Find ud af, hvor meget du selv kan købe for, hvis du ønsker at skifte bolig.
Hvor langt er der til nærmeste?
Se hvor lang tid der er mellem denne bolig og en anden adresse
Fakta om Struer Kommune
INDBYGGERE
GRUNDSKYLD
KOMMUNESKAT
SKOLER
BØRNEPASNING
Opret dig i køberkartoteket og få besked om lignende boliger.
Få direkte besked, når der kommer relevante nye boliger til salg, der matcher dine ønsker. Du ser også de boliger, vi får til salg, som vi ikke viser på Nybolig.dk.
Tilpas filtre og opret