Moderne rækkehus med privat terrasse
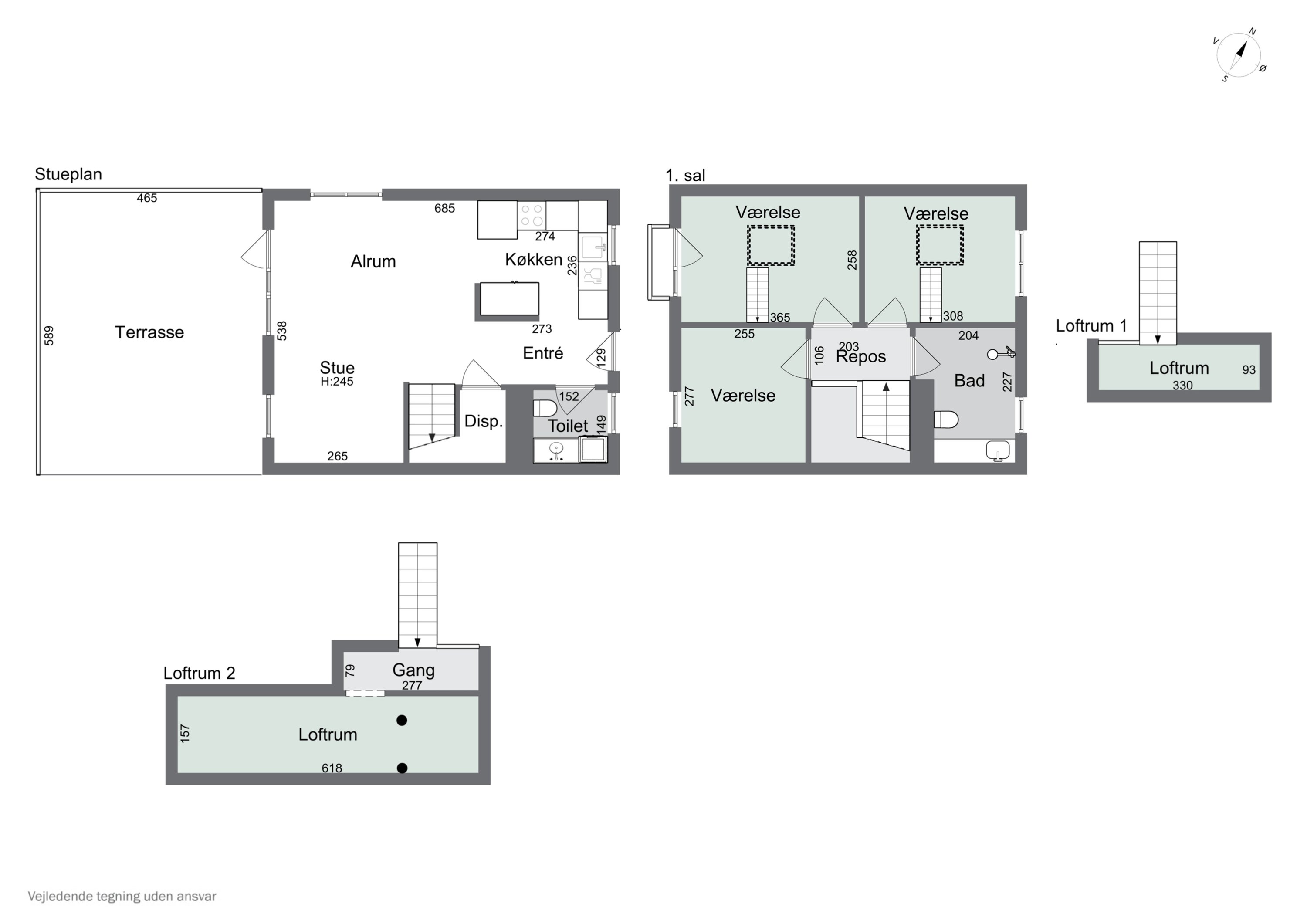
Velkommen til dette moderne rækkehus, der emmer af lys og indbydende atmosfære. Bygget i 2021, tilbyder boligen en perfekt kombination af stil og funktionalitet, ideel til den moderne familie, der ønsker et hjem med plads til både samvær og privatliv. Med sine 1280 kvadratmeter er der rigeligt med plads til at skabe minder og nyde hverdagen.Indretningen byder på en rummelig stue, der åbner op mod en dejlig terrasse, hvor det varme lys strømmer ind og skaber en hyggelig stemning. Det åbne alrum forbinder stuen med det stilfulde køkken, der er udstyret med moderne faciliteter og gode opbevaringsmuligheder. Her kan du nemt tilberede lækre måltider, mens familien samles omkring spisebordet. De tre soveværelser på første sal er lyse og indbydende, og det elegante badeværelse er designet med fokus på komfort og stil.En af de mest fremtrædende fordele ved denne bolig er den private terrasse, hvor du kan nyde morgenkaffen i solen eller tilbringe hyggelige sommeraftener med venner og familie. De store vinduer giver et fantastisk lysindfald og skaber en sammenhæng mellem inde- og udeliv. Materialerne er nøje udvalgt for at sikre en moderne og tidløs æstetik, der gør det nemt at indrette sig efter egen smag.Beliggenheden er ideel for dem, der ønsker at være tæt på både byliv og natur. I nærområdet finder du grønne områder, der indbyder til udendørs aktiviteter, samt gode indkøbsmuligheder og offentlig transport, der gør det nemt at komme rundt. Området er præget af en venlig atmosfære, hvor naboer kender hinanden, og der er plads til leg og samvær.Dette rækkehus er ikke bare en bolig; det er en mulighed for at skabe et hjem fyldt med liv og glæde. Tøv ikke med at bestille en fremvisning og oplev selv, hvordan dette hjem kan blive din nye base. Her er plads til at leve, elske og skabe minder. Velkommen hjem!
Økonomien i boligen
Skal Nykredit Bank ringe for en snak om din boligøkonomi?
Fortæl os, hvornår det passer dig, så ringer en rådgiver fra Nykredit Bank dig op til en uforpligtende snak om dine lånemuligheder. Så er du et skridt tættere på din nye bolig.
Vi bruger dine oplysninger til at forberede samtalen. Læs mere i Nykredit Banks privatlivspolitik
Kontakt

Kontakt
Jeppe Gerhardt
Skal du også sælge?
Kontakt os og få en gratis salgsvurdering, så ved du hvad din bolig er værd.
- Få et hurtigt estimat af salgspris eller en grundig vurdering.
- Få et indblik i, hvad din ejendom er værd på markedet lige nu.
- Find ud af, hvor meget du selv kan købe for, hvis du ønsker at skifte bolig.
Hvor langt er der til nærmeste?
Se hvor lang tid der er mellem denne bolig og en anden adresse
Fakta om København Kommune
INDBYGGERE
GRUNDSKYLD
KOMMUNESKAT
SKOLER
BØRNEPASNING
Opret dig i køberkartoteket og få besked om lignende boliger.
Få direkte besked, når der kommer relevante nye boliger til salg, der matcher dine ønsker. Du ser også de boliger, vi får til salg, som vi ikke viser på Nybolig.dk.
Tilpas filtre og opret