Nedlagt landbrug med særdeles naturskøn beliggenhed
Hist hvor vejen slår en bugt, finder vi Eriksdalsvej 10, beliggende særdels naturskønt med den skønnesteudsigt over marker med Horreby Lyng i baggrunden, få min. kørsel fra Horbelev by med købmand og etrigt foreningsliv og ca.10 min kørsel til Stubbekøbing med god indkøbsmuligheder, skole og lystbådehavn.
Stuehuset er opført i røde mursten og tegltag.
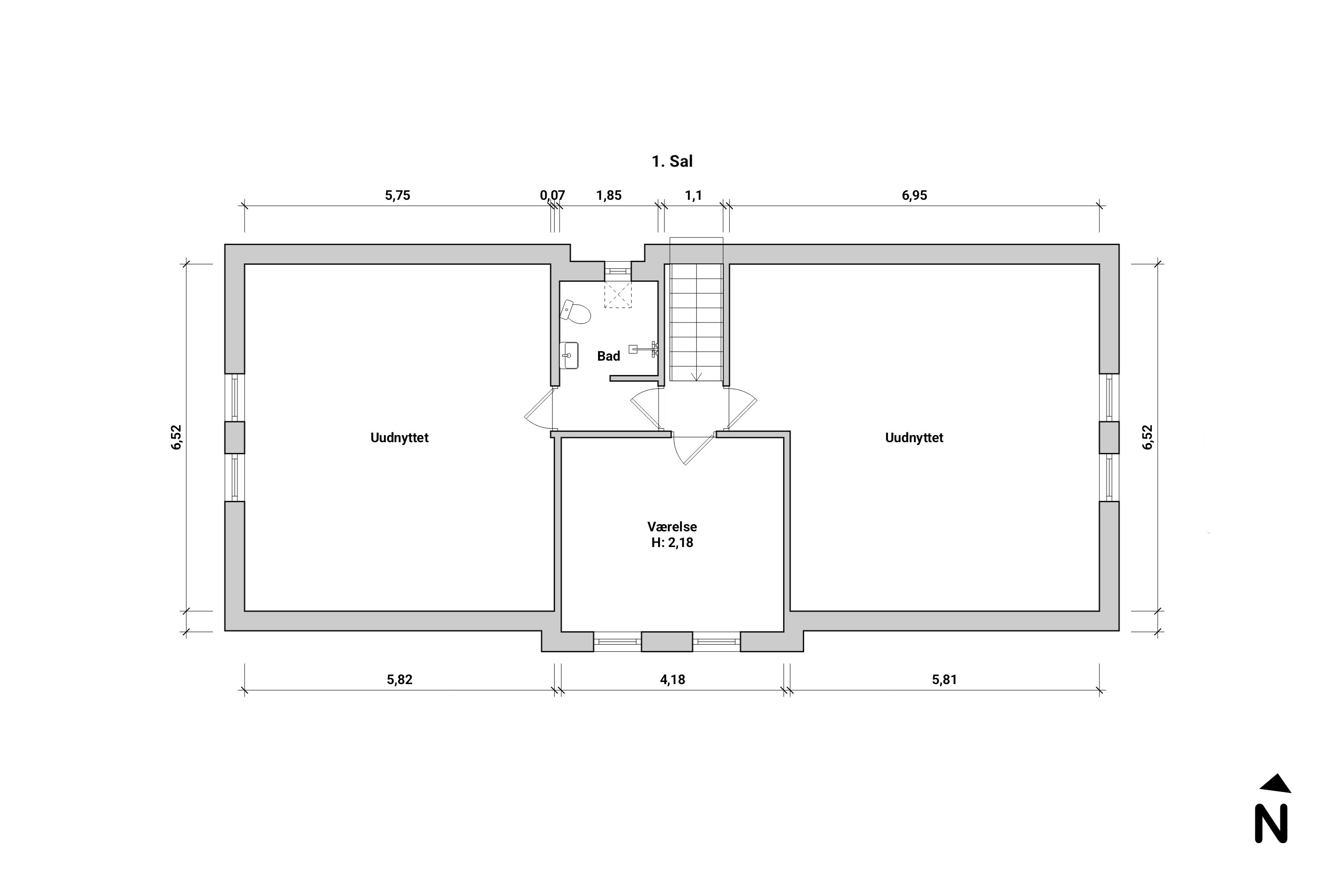
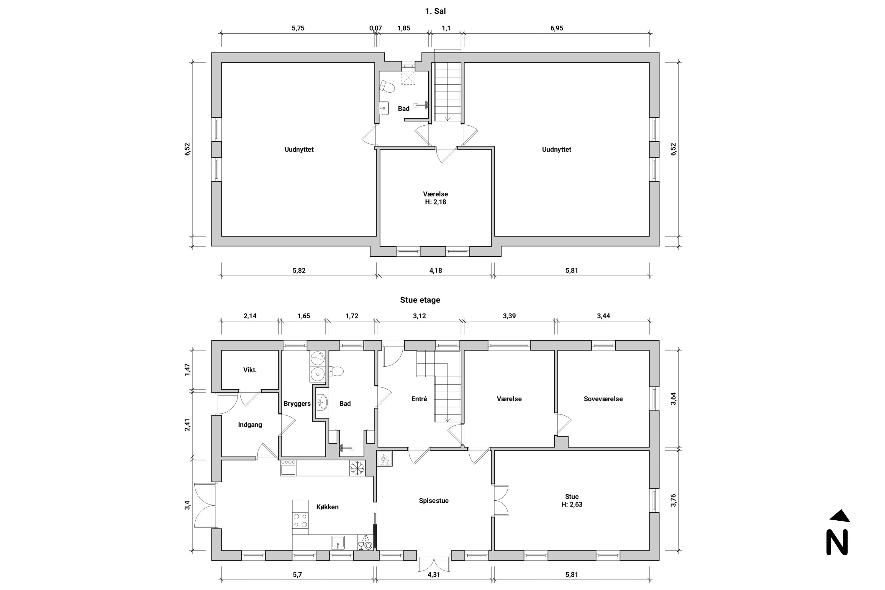
Nydelig beboelse med hovedentré med trappe til husets tagetage der er indrettet med soveværelse, toiletog 2 uudnyttede loftsrum, hvor der er god mulighed for at indrette yderligere beboelse.
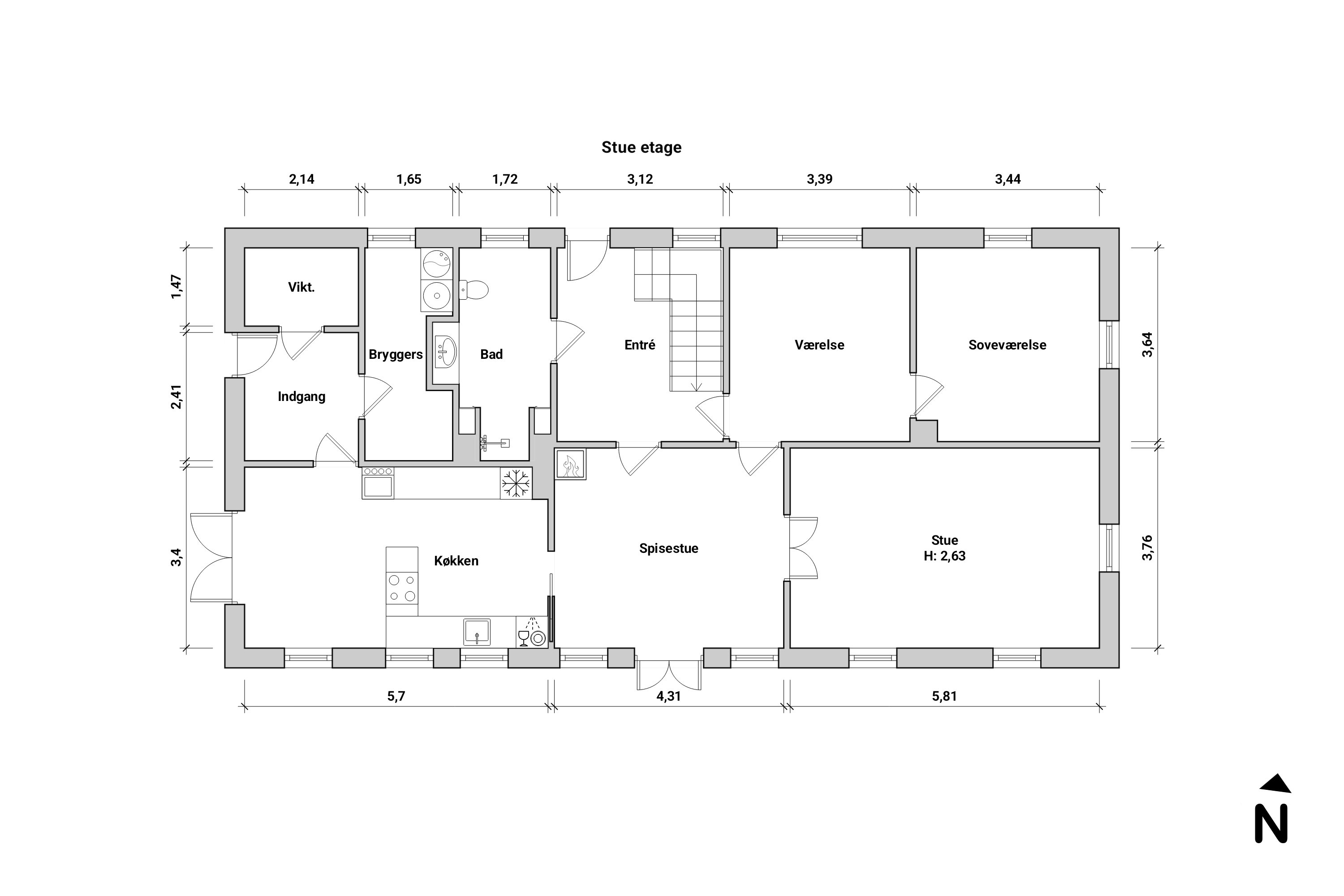
Fra husets hovedentré, er der adgang til nydeligt flisebadeværelse, ligesom der fra entré er adgang tildejlig spisestue med videre udgang til den store sydvendte baghave.
Yderligere pæn opholdsstue, stort dejligt køkken/alrum i bedste landstil med god spiseplads og udgang tilhaven mod vest - fra køkkenet er der videre udgang til bryggers, baggang og viktualierum.
Yderligere finder vi dejligt værelse/kontor samt endnu et soveværelse.
Der er pæne trægulve og hvide lofter i det meste af stuehuset.
Nogen fornyelse af stuehuset, må forventes.
Yderligere ca. 482 kvm. udbygninger med pæne hvide facader og et tegltag som på et tidspunkt erudskiftet - udbygningerne rummer et hav af muligheder, højloftet og flere gode brugbare rum.
En ejendom som i mange år har været anvendt som ejers helårsbolig men som også kan anvendes somFlex-bolig uden bopælspligt - selvom I sikkert bliver så glade for ejendom og omgivelser, at I vælger at flytte til stedet.
Bestil din fremvisning i dag og oplev selv, hvordan dette hjem kan blive ramme om dit liv.
Økonomien i boligen
Skal Nykredit Bank ringe for en snak om din boligøkonomi?
Fortæl os, hvornår det passer dig, så ringer en rådgiver fra Nykredit Bank dig op til en uforpligtende snak om dine lånemuligheder. Så er du et skridt tættere på din nye bolig.
Vi bruger dine oplysninger til at forberede samtalen. Læs mere i Nykredit Banks privatlivspolitik
Kontakt

Kontakt
Brian Jacobsen
Skal du også sælge?
Kontakt os og få en gratis salgsvurdering, så ved du hvad din bolig er værd.
- Få et hurtigt estimat af salgspris eller en grundig vurdering.
- Få et indblik i, hvad din ejendom er værd på markedet lige nu.
- Find ud af, hvor meget du selv kan købe for, hvis du ønsker at skifte bolig.
Hvor langt er der til nærmeste?
Se hvor lang tid der er mellem denne bolig og en anden adresse
Fakta om Guldborgsund Kommune
INDBYGGERE
GRUNDSKYLD
KOMMUNESKAT
SKOLER
BØRNEPASNING
Opret dig i køberkartoteket og få besked om lignende boliger.
Få direkte besked, når der kommer relevante nye boliger til salg, der matcher dine ønsker. Du ser også de boliger, vi får til salg, som vi ikke viser på Nybolig.dk.
Tilpas filtre og opret